1101 Cambourne Drive, Kissimmee, FL 34758
Local realty services provided by:Better Homes and Gardens Real Estate Synergy
Listed by: jennifer clark
Office: glory intl. real estate co
MLS#:V4945303
Source:MFRMLS
Price summary
- Price:$415,000
- Price per sq. ft.:$124.4
- Monthly HOA dues:$90
About this home
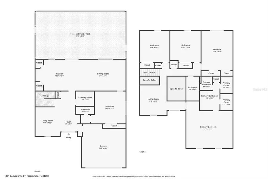
Discover your new home! Located in the sought-after Villages at Poinciana, this two-story residence sits on a generously sized, fully vinyl-fenced corner lot, offering plenty of outdoor space—including a private screened pool and extended patio perfect for relaxing or entertaining friends. Step inside to find fresh paint and new carpeting, creating a welcoming atmosphere from the start.
Inside, a bright foyer leads you to a formal dining room and a versatile guest suite with a full bath—ideal for overnight visitors or extended family. The open family room flows seamlessly into the dining area and well-equipped kitchen, featuring solid surface counters, stainless steel appliances, ample cabinetry, and a spacious pantries. Upstairs, enjoy a large loft for movie nights or a play area, three comfortable bedrooms, PLUS a roomy owner’s suite complete with space for a reading nook or desk. The primary bathroom includes a walk-in closet, double vanities, a stand-alone shower, and a soothing garden tub.
Enjoy the outdoors year-round with a covered lanai and screened-in pool just steps from your back door. Hardwood floors, downstairs block construction, a shingle roof, and a split A/C system add comfort and durability.
Amenities nearby: parks, sports fields, playgrounds, community pools, ballrooms for events, fitness centers, and several recreational parks.
Within minutes, find shopping centers, new restaurants, and major expressways for quick access to Orlando-area resorts and attractions like Walt Disney World, Universal Orlando, and SeaWorld.?
Local parks offer walking trails, picnic areas, tennis courts, pickleball, volleyball, basketball courts, and dedicated dog parks for pet owners.?
Community events are hosted regularly, along with easy access to schools serving all grade levels.?
This is a rare opportunity to own one of the largest lots in Village 2, combining privacy, modern updates, and unbeatable access to everything Poinciana offers. Schedule your tour today and see for yourself what makes this home, and neighborhood, so special.
Contact an agent
Home facts
- Year built:2003
- Listing ID #:V4945303
- Added:52 day(s) ago
- Updated:December 01, 2025 at 01:13 PM
Rooms and interior
- Bedrooms:5
- Total bathrooms:3
- Full bathrooms:3
- Living area:2,844 sq. ft.
Heating and cooling
- Cooling:Central Air
- Heating:Central
Structure and exterior
- Roof:Shingle
- Year built:2003
- Building area:2,844 sq. ft.
- Lot area:0.36 Acres
Utilities
- Water:Public
- Sewer:Public, Public Sewer
Finances and disclosures
- Price:$415,000
- Price per sq. ft.:$124.4
- Tax amount:$5,494 (2024)
New listings near 1101 Cambourne Drive
- New
$190,000Active1 beds 1 baths672 sq. ft.46 W Marbrisa Way, KISSIMMEE, FL 34743
MLS# S5139393Listed by: WATSON REALTY CORP. - New
$355,000Active1 beds 1 baths630 sq. ft.3151 Sunset Walk Drive #316, KISSIMMEE, FL 34747
MLS# O6363927Listed by: KELLER WILLIAMS LEGACY REALTY - New
$525,000Active4 beds 3 baths1,902 sq. ft.2657 Reading Trail, KISSIMMEE, FL 34746
MLS# S5139418Listed by: SUNSHINE PREMIUM PROPERTIES - New
$399,900Active3 beds 2 baths1,486 sq. ft.2416 Morgan Point Boulevard, KISSIMMEE, FL 34743
MLS# R4910312Listed by: ZAINS REALTY, LLC - New
Listed by BHGRE$275,000Active3 beds 2 baths1,842 sq. ft.107 Iguala Drive, KISSIMMEE, FL 34743
MLS# O6363866Listed by: BETTER HOMES AND GARDENS REAL ESTATE MANN GLOBAL P - New
$399,500Active3 beds 2 baths2,065 sq. ft.1427 Brentwood Drive, KISSIMMEE, FL 34746
MLS# O6363925Listed by: CHARLES RUTENBERG REALTY ORLANDO - New
$395,000Active1 beds 1 baths870 sq. ft.3151 Sunset Walk Drive #318, KISSIMMEE, FL 34747
MLS# O6363906Listed by: KELLER WILLIAMS LEGACY REALTY - New
$185,000Active2 beds 2 baths875 sq. ft.14 E Las Palmas Way, KISSIMMEE, FL 34743
MLS# S5139402Listed by: EXP REALTY LLC - New
$528,000Active3 beds 2 baths1,941 sq. ft.4461 Indigo Sky Lane, KISSIMMEE, FL 34744
MLS# S5139396Listed by: LPT REALTY, LLC - New
$475,000Active3 beds 3 baths2,120 sq. ft.2621 Palisade Boulevard, KISSIMMEE, FL 34741
MLS# O6363542Listed by: OLYMPUS EXECUTIVE REALTY INC