149 W Wilbur Avenue #109, Lake Mary, FL 32746
Local realty services provided by:Better Homes and Gardens Real Estate Synergy
149 W Wilbur Avenue #109,Lake Mary, FL 32746
$449,999
- 3 Beds
- 2 Baths
- 1,396 sq. ft.
- Condominium
- Active
Listed by: laura diss
Office: q boutique specialty realty inc
MLS#:O6379525
Source:MFRMLS
Price summary
- Price:$449,999
- Price per sq. ft.:$273.72
- Monthly HOA dues:$285
About this home
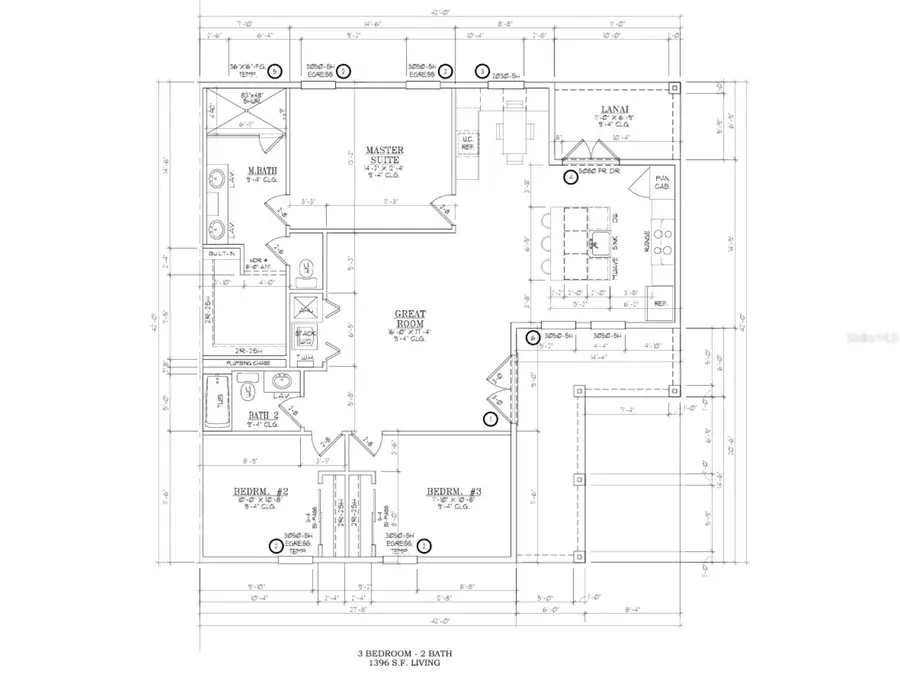
WOW! New downtown Lake Mary luxury condominium to be built! THREE-BEDROOM DOWNSTAIRS END UNIT on the corner of 4th Street, available now. Two blocks from the shops and restaurants on 4th Street, Lakeview Ave, and Country Club Rd. Enjoy easy access to the weekend Farmers ' Market, events in Central Park, and City Hall. Your home is one block from the Pickleball Court on Country Club, Events Center, and the new Playground. Quick drive to Sanford International Airport, local hospital systems, and the business districts of International Parkway at Heathrow and Colonial TownPark. SunRail is a few blocks away, no car needed. This condo is 1,396 square feet and comes standard with luxury finishes, kitchen appliances, windows with blinds in the glass, an optional butler pantry, an optional wine bar or coffee station, a French hood, a side covered patio, and a private storage closet for easy access to bikes and holiday decorations. Assigned parking, a park-like setting, and EV charging are available. Upgrade your interior aesthetic - three different curated interiors designed by Madison Snyder Design Co. She has crafted custom paint palettes, creating a modern, fresh feel, with beautiful light fixtures, undercabinet lighting, and options for flooring that include herringbone wood floors, wide vinyl planks, and ceramic tiles. Coordinate your kitchen cabinets with beautiful solid-slab granite, herringbone tile, or natural stone backsplashes. Our signature oversized kitchen islands feature extended overhangs and pedestal legs, designed for island-top dining. The oversized walk-in primary shower features an optional ombre mosaic tile, toiletry niches, and dual showerheads for a spa-like experience. Upgrade the walk-in primary closet with an optional closet system. Extra windows provide a beautiful sundrenched environment, and the second-floor units have private balconies overlooking the treetops, and the first-floor homes have covered patios. Delivery estimated for around December 2026. Call to schedule your private sales consultation today....
Contact an agent
Home facts
- Year built:2026
- Listing ID #:O6379525
- Added:51 day(s) ago
- Updated:April 10, 2026 at 12:19 PM
Rooms and interior
- Bedrooms:3
- Total bathrooms:2
- Full bathrooms:2
- Flooring:Ceramic Tile, Linoleum, Luxury Vinyl
- Kitchen Description:Dishwasher, Kitchen/Family Room Combo, Range Hood, Refrigerator
- Bedroom Description:Split Bedroom, Walk-In Closet(s)
- Living area:1,396 sq. ft.
Heating and cooling
- Cooling:Central Air
- Heating:Electric
- Central air:Yes
Structure and exterior
- Roof:Tile
- Year built:2026
- Building area:1,396 sq. ft.
- Lot area:0.35 Acres
- Lot Features:Landscaped, Level, Near Public Transit, Paved, Sidewalk
- Architectural Style:Contemporary, Mediterranean
- Construction Materials:Metal Frame, Stucco
- Exterior Features:Covered Porch/Patio, Patio, Rain Gutters, Side Porch, Sidewalk
- Foundation Description:Slab
- Levels:1 Story
Utilities
- Sewer:Public Sewer
Finances and disclosures
- Price:$449,999
- Price per sq. ft.:$273.72
- Tax amount:$1,011 (2025)
Features and amenities
- Appliances:Dishwasher, Electric Water Heater, Irrigation Equipment, Range Hood, Refrigerator, Solar Hot Water
- Laundry features:Laundry Closet
- Amenities:BB/HS Internet Available, Crown Molding, Fiber Optics, Irrigation Equipment, Kitchen/Family Room Combo, Split Bedroom, Walk-In Closet(s)
- Pool features:Public Pool
Parking
- Parking description:Alley Access, Assigned, Ground Level, On Street
New listings near 149 W Wilbur Avenue #109
- New
$425,000Active3 beds 2 baths1,575 sq. ft.120 Lakebreeze Circle, LAKE MARY, FL 32746
MLS# C7524606Listed by: SOVEREIGN REAL ESTATE GROUP - New
$225,000Active3 beds 2 baths1,466 sq. ft.406 N Plantation Boulevard, LAKE MARY, FL 32746
MLS# O6395105Listed by: DENOVO REALTY - New
$1,425,000Active5 beds 4 baths4,261 sq. ft.1811 Brackenhurst Place, LAKE MARY, FL 32746
MLS# O6397402Listed by: PREMIER SOTHEBYS INT'L REALTY - New
$730,000Active4 beds 3 baths2,897 sq. ft.279 Main Road, LAKE MARY, FL 32746
MLS# V4948083Listed by: GLOBAL REALTY OF VOLUSIA - New
$385,000Active2 beds 2 baths1,432 sq. ft.642 Whittingham Place, LAKE MARY, FL 32746
MLS# G5110707Listed by: EXP REALTY LLC - New
$355,000Active2 beds 4 baths1,618 sq. ft.112 Heron Bay Circle, LAKE MARY, FL 32746
MLS# O6396246Listed by: CENTURY 21 SUNBELT REALTY - New
$779,000Active5 beds 4 baths2,563 sq. ft.827 Chatfield Way, LAKE MARY, FL 32746
MLS# O6395880Listed by: RE/MAX CENTRAL REALTY - Open Sat, 1 to 4pmNew
$1,595,000Active5 beds 5 baths4,294 sq. ft.3955 Equine Cove, LAKE MARY, FL 32746
MLS# O6397165Listed by: FL PRO BROKERS LLC - New
$149,900Active1 beds 1 baths846 sq. ft.143 Villa Di Este Terrace #209, LAKE MARY, FL 32746
MLS# O6397206Listed by: COLDWELL BANKER REALTY - New
$419,000Active3 beds 2 baths1,506 sq. ft.866 E Charing Cross Circle, LAKE MARY, FL 32746
MLS# O6396789Listed by: CHARLES RUTENBERG REALTY ORLANDO