1008 W H Jackson Street, Melbourne, FL 32901
Local realty services provided by:Better Homes and Gardens Real Estate Atchley Properties
1008 W H Jackson Street,Melbourne, FL 32901
$770,000
- 0.17 Acres
- Lots / Land
- Active
Listed by:aisha briceno
Office:agent trust realty corporation
MLS#:S5129436
Source:MFRMLS
Price summary
- Price:$770,000
About this home
Exceptional Development Opportunity in Downtown Melbourne!
This is not just another listing — this is a rare, fully-approved, shovel-ready multifamily development in the very heart of booming Downtown Melbourne. Opportunities like this simply do not come to market often, and when they do, they move fast.
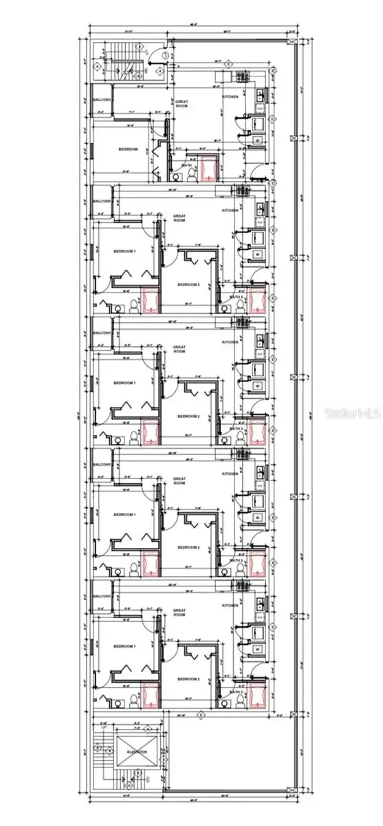
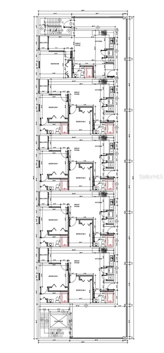
The property comes with full city approvals already in place and demolition scheduled to begin in the coming days of August 2025. The sale includes a prime lot along with a 1-year valid construction permit for a modern 10-unit apartment building featuring:
- 8 spacious units of 2 bedrooms / 2 bathrooms
- 2 units of 1 bedroom / 1 bathroom
- 14 dedicated parking spaces
- An elevator for tenant convenience
- Contemporary architectural design and professional landscaping
This is a true turnkey project — shovel-ready, with approvals completed, permits secured, and the hard part already taken care of. Avoid the long, uncertain, and costly approval process that can drag on for months (if not years). Here, you can break ground immediately and start building wealth right away.
The financials are equally compelling. With projected gross annual rental income exceeding $250,000, and Melbourne’s downtown rental demand continuing to surge, the numbers speak for themselves. Strong population growth, a thriving job market, and the increasing desirability of Melbourne as a lifestyle destination ensure consistent demand and above-market occupancy rates. Investors here can expect not just cash flow, but long-term appreciation in one of Florida’s most dynamic growth markets.
What sets this opportunity apart is that we, as the builder, are already handling the permitting process. That means you are not just buying land and plans — you are buying into a project that is ready to go. And for those investors who want a completely hands-off, hassle-free experience, we proudly provide a true turnkey delivery option. From permits to construction to the final finished product, we manage the entire build for you. At closing, you can choose whether you want to take over the project directly, or simply let us deliver a completed, income-producing asset into your portfolio — a true key-in-hand investment.
Whether you are a local builder searching for a permitted site to bring your own team onto, or an out-of-state or international investor looking for a passive, high-return opportunity, this project checks every box. Premium location. Fully approved plans. High rental income potential. Immediate readiness to build. And the option of professional, turnkey delivery by an experienced builder already on the ground.
Time is of the essence. Downtown Melbourne is exploding with growth, and prime multifamily development sites are becoming nearly impossible to secure. This property comes with every advantage you could ask for: approved permits, demolition already scheduled, and a design that matches the demand of today’s rental market.
This is more than a piece of land. It is a ready-to-build, revenue-generating machine, just waiting for the right investor to seize the moment.
All approved plans, permits, and documentation will transfer to the buyer at closing — no delays, no waiting, no red tape. Just a smooth transaction leading directly into construction and future profits.
Act now. Ready to build. Ready to profit. Ready to deliver a complete project with our turnkey option. Opportunities like this don’t wait — and neither should you. Docs on request
Contact an agent
Home facts
- Listing ID #:S5129436
- Added:49 day(s) ago
- Updated:October 04, 2025 at 11:57 AM
Structure and exterior
- Lot area:0.17 Acres
Schools
- High school:Cocoa Beach Junior/Senior High School
- Middle school:JOHN F. KENNEDY MIDDLE SCHOOL
- Elementary school:Cape View Elementary School
Utilities
- Water:Public, Water Available
- Sewer:Public, Public Sewer, Sewer Available
Finances and disclosures
- Price:$770,000
- Tax amount:$4,159 (2024)
New listings near 1008 W H Jackson Street
- New$315,000Active3 beds 2 baths1,410 sq. ft.
710 Spring Valley Drive, Melbourne, FL 32940
MLS# 1058816Listed by: RE/MAX ELITE - New$159,800Active2 beds 2 baths917 sq. ft.
3135 Shady Dell Lane #134, Melbourne, FL 32935
MLS# 1058812Listed by: WATERMAN REAL ESTATE, INC. - Open Sat, 1 to 3pmNew$350,000Active3 beds 2 baths1,333 sq. ft.
4200 Aria Drive, Melbourne, FL 32904
MLS# 1058795Listed by: LOKATION - New$134,900Active2 beds 2 baths1,107 sq. ft.
401 Poinciana Drive, Melbourne, FL 32935
MLS# 1058799Listed by: BLUE LIGHTHOUSE REALTY INC - New$134,950Active2 beds 2 baths1,014 sq. ft.
810 Juniper Ln, MELBOURNE, FL 32901
MLS# TB8433595Listed by: THE SHOP REAL ESTATE CO. - New$409,000Active4 beds 2 baths1,830 sq. ft.
4630 Amaca Bay Lane, Melbourne, FL 32935
MLS# 1058790Listed by: MISTY MORRISON REAL ESTATE - New$170,000Active2 beds 2 baths1,012 sq. ft.
4500 Gail Boulevard, Melbourne, FL 32904
MLS# 1058778Listed by: RE/MAX AEROSPACE REALTY - Open Sat, 12 to 2pmNew$287,000Active3 beds 2 baths1,250 sq. ft.
2125 Laden Road, Melbourne, FL 32935
MLS# 1058780Listed by: COLDWELL BANKER REALTY - New$335,000Active5 beds 4 baths2,100 sq. ft.
2902 Emory Street, Melbourne, FL 32901
MLS# 1058782Listed by: MISTY MORRISON REAL ESTATE - Open Sun, 1 to 3pmNew$539,000Active4 beds 2 baths2,101 sq. ft.
209 Ashbourne Court, Melbourne, FL 32940
MLS# 1058361Listed by: COMPASS FLORIDA, LLC