6019 Merril Street, North Port, FL 34287

Local realty services provided by:Better Homes and Gardens Real Estate Synergy
6019 Merril Street,North Port, FL 34287
$321,500
  • 3 Beds
  • 2 Baths
  • 1,395 sq. ft.
  • Single family
  • Active
Listed by: scott swonger
Office: homesmart
MLS#:N6143468
Source:MFRMLS

Price summary

  • Price:$321,500
  • Price per sq. ft.:$134.8

About this home

Step into a true mid-century modern time capsule at 6019 Merril St in the sought-after Hyde Park neighborhood of North Port. Built in 1959, this 3-bedroom, 2-bath home captures the character and architectural charm of an era that continues to inspire design today, while blending in the updates buyers want. From the moment you enter, the original terrazzo floors immediately stand out. These beautifully preserved floors are not only durable but are a rare and highly desirable feature that perfectly anchor the home’s mid-century aesthetic. Their clean lines and timeless appeal set the tone throughout the space and make this property truly special. The home offers a functional layout with vaulted ceilings that enhance the open feel and natural light. The updated kitchen features new cabinetry, countertops, and appliances, providing a fresh, modern touch while still complementing the home’s original character. Both bathrooms have been tastefully updated, including an ensuite primary...

Contact an agent

contact an agent

Yes, I would like more information. Please use and/or share my information with a BHGRE®  affiliated agent to contact me about my real estate needs. By clicking Send message, I request to be contacted by phone or text message and consent to being contacted by automated means. I understand that my consent to receive calls or texts is not a condition of purchasing any property, goods, or services. Alternatively, I understand that I can access real estate services by email or I can contact the agent myself.

If a BHGRE®  affiliated agent is not available in the area where I need assistance, I agree to be contacted by a real estate agent affiliated with another brand owned or licensed by Anywhere Real Estate (CENTURY 21® , Coldwell Banker® , Corcoran® , ERA® , Sotheby's International Realty® ).
 I acknowledge that I have read and agree to theTerms of useandPrivacy notice

Home facts

  • Year built:1959
  • Listing ID #:N6143468
  • Added:3 day(s) ago
  • Updated:March 24, 2026 at 04:33 PM

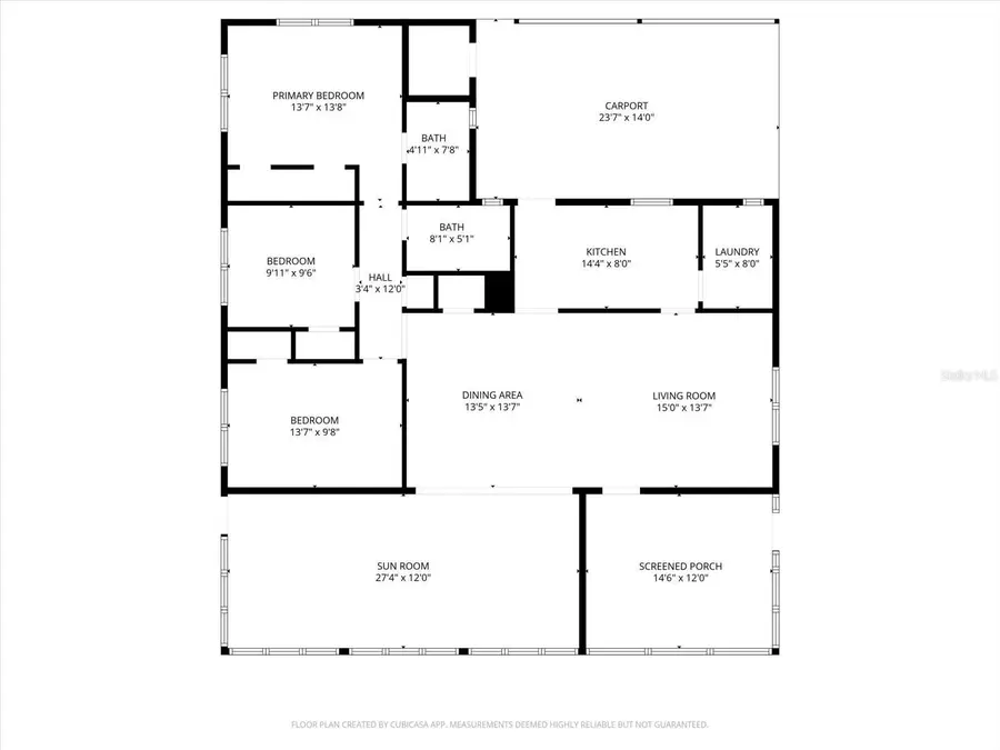
Rooms and interior

  • Bedrooms:3
  • Total bathrooms:2
  • Full bathrooms:2
  • Flooring:Terrazzo
  • Dining Description:Living Room/Dining Room Combo
  • Kitchen Description:Microwave, Range, Refrigerator, Solid Wood Cabinets, Stone Counters
  • Bedroom Description:High Ceilings, Primary Bedroom Main Floor
  • Living area:1,395 sq. ft.

Heating and cooling

  • Heating:Electric

Structure and exterior

  • Year built:1959
  • Building area:1,395 sq. ft.
  • Lot area:0.3 Acres
  • Lot Features:Flood Zone
  • Architectural Style:Mid-Century Modern
  • Construction Materials:Block
  • Exterior Features:Awning(s), Enclosed, Private Mailbox, Side Porch
  • Foundation Description:Slab
  • Levels:1 Story

Schools

  • High school:North Port High
  • Middle school:Heron Creek Middle
  • Elementary school:Lamarque Elementary

Utilities

  • Water:Public, Water Connected
  • Sewer:Public, Public Sewer, Sewer Connected

Finances and disclosures

  • Price:$321,500
  • Price per sq. ft.:$134.8
  • Tax amount:$1,977 (2025)

Features and amenities

  • Appliances:Dryer, Electric Water Heater, Microwave, Range, Refrigerator, Washer
  • Laundry features:Dryer, Laundry Room, Washer
  • Amenities:BB/HS Internet Available, Cable Available, Ceiling Fans(s), High Ceilings, Living Room/Dining Room Combo, Phone Available, Primary Bedroom Main Floor, Solid Wood Cabinets, Stone Counters
  • Pool features:Public Pool

Parking

  • Parking description:1 Car Carport
  • Carport spaces:1
MLS LogoThe information being provided by Stellar Mls is for the consumer's personal, non-commercial use and may not be used for any purpose other than to identify prospective properties consumer may be interested in purchasing. Any information relating to real estate for sale referenced on this web site comes from the Internet Data Exchange (IDX) program of the Stellar Mls. Better Homes and Gardens Real Estate Synergy is not a Multiple Listing Service (MLS), nor does it offer MLS access. This website is a service of Better Homes and Gardens Real Estate Synergy, a broker participant of Stellar Mls. This web site may reference real estate listing(s) held by a brokerage firm other than the broker and/or agent who owns this web site. The accuracy of all information, regardless of source, including but not limited to open house information, square footages and lot sizes, is deemed reliable but not guaranteed and should be personally verified through personal inspection by and/or with the appropriate professionals. The data contained herein is copyrighted by Stellar Mls and is protected by all applicable copyright laws. Any unauthorized dissemination of this information is in violation of copyright laws and is strictly prohibited. Properties in listings may have been sold or may no longer be available. Copyright 2026 Stellar Mls. All rights reserved.