240 Dama Del Mar Way, Panama City Beach, FL 32407

Local realty services provided by:Better Homes and Gardens Real Estate Historic
240 Dama Del Mar Way,Panama City Beach, FL 32407
$434,956
  • 3 Beds
  • 2 Baths
  • 1,689 sq. ft.
  • Single family
  • Active
Listed by: pamela k hawkins, paul hanlon
Office: dr horton realty of emerald coast, llc.
MLS#:784566
Source:FL_BCMLS

Price summary

  • Price:$434,956
  • Price per sq. ft.:$257.52

About this home

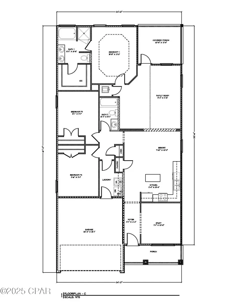
.Welcome to 240 Dama Del Mar Way at Caballeros Estates at Hombre in Panama City Beach, Florida. This pre-construction homesite offers the opportunity to secure new construction prior to groundbreaking. This property will be developed with the Oakley floorplan and built to current design standards and specifications. Buyers may have the ability to personalize select finishes depending on the stage of construction. Estimated completion timelines and build details available upon request. This floorplan has three-bedrooms and two-bathrooms with a flex space just off the entry hall. This is space illuminated by a large picture window and it could be used as a home office or a formal dining room. Continuing through the entry hall you enter an open concept living area with a kitchen and breakfast area as well as a large family room with vaulted ceiling. The kitchen is accented with upper and lower cabinetry, a center island and plenty of counter space. The white cabinetry complements the...

Contact an agent

contact an agent

Yes, I would like more information. Please use and/or share my information with a BHGRE®  affiliated agent to contact me about my real estate needs. By clicking Send message, I request to be contacted by phone or text message and consent to being contacted by automated means. I understand that my consent to receive calls or texts is not a condition of purchasing any property, goods, or services. Alternatively, I understand that I can access real estate services by email or I can contact the agent myself.

If a BHGRE®  affiliated agent is not available in the area where I need assistance, I agree to be contacted by a real estate agent affiliated with another brand owned or licensed by Anywhere Real Estate (CENTURY 21® , Coldwell Banker® , Corcoran® , ERA® , Sotheby's International Realty® ).
 I acknowledge that I have read and agree to theTerms of useandPrivacy notice

Home facts

  • Year built:2026
  • Listing ID #:784566
  • Added:52 day(s) ago
  • Updated:March 25, 2026 at 09:40 PM

Rooms and interior

  • Bedrooms:3
  • Total bathrooms:2
  • Full bathrooms:2
  • Rooms Total:6
  • Dining Description:SmartThermostat
  • Bathrooms Description:SmartHome, SmartThermostat
  • Kitchen Description:Electric Oven, Electric Range, Electric Water Heater
  • Bedroom Description:SmartHome, SmartThermostat
  • Living area:1,689 sq. ft.

Heating and cooling

  • Cooling:CeilingFans, CentralAir
  • Heating:Central, Electric
  • Central air:Yes

Structure and exterior

  • Roof:Shingle
  • Year built:2026
  • Building area:1,689 sq. ft.
  • Lot area:0.17 Acres
  • Architectural Style:Craftsman
  • Exterior Features:Porch

Schools

  • High school:Arnold
  • Middle school:Surfside
  • Elementary school:Hutchison Beach

Utilities

  • Sewer:Public Sewer

Finances and disclosures

  • Price:$434,956
  • Price per sq. ft.:$257.52

Features and amenities

  • Amenities:ElectricOven, ElectricRange, ElectricWaterHeater, SmartHome, SmartThermostat

Parking

  • Parking description:Garage
  • Garage:Yes
  • Garage spaces:2
The information being provided by Central Panhandle Association Of REALTORS® is for the consumer's personal, non-commercial use and may not be used for any purpose other than to identify prospective properties consumer may be interested in purchasing. Any information relating to real estate for sale referenced on this web site comes from the Internet Data Exchange (IDX) program of the Central Panhandle Association Of REALTORS®. Better Homes and Gardens Real Estate Historic is not a Multiple Listing Service (MLS), nor does it offer MLS access. This website is a service of Better Homes and Gardens Real Estate Historic, a broker participant of Central Panhandle Association Of REALTORS®. This web site may reference real estate listing(s) held by a brokerage firm other than the broker and/or agent who owns this web site. The accuracy of all information, regardless of source, including but not limited to open house information, square footages and lot sizes, is deemed reliable but not guaranteed and should be personally verified through personal inspection by and/or with the appropriate professionals. The data contained herein is copyrighted by Central Panhandle Association Of REALTORS® and is protected by all applicable copyright laws. Any unauthorized dissemination of this information is in violation of copyright laws and is strictly prohibited. Properties in listings may have been sold or may no longer be available. Copyright 2026 Central Panhandle Association Of REALTORS®. All rights reserved.