312 Sea Tern Lane, Port Saint Joe, FL 32456
Local realty services provided by:Better Homes and Gardens Real Estate Historic
312 Sea Tern Lane,Port St Joe, FL 32456
$359,900
- 3 Beds
- 3 Baths
- 1,460 sq. ft.
- Single family
- Active
Listed by: mark a miles, paul hanlon
Office: dr horton realty of emerald coast, llc.
MLS#:788354
Source:FL_BCMLS
Price summary
- Price:$359,900
- Price per sq. ft.:$246.51
About this home
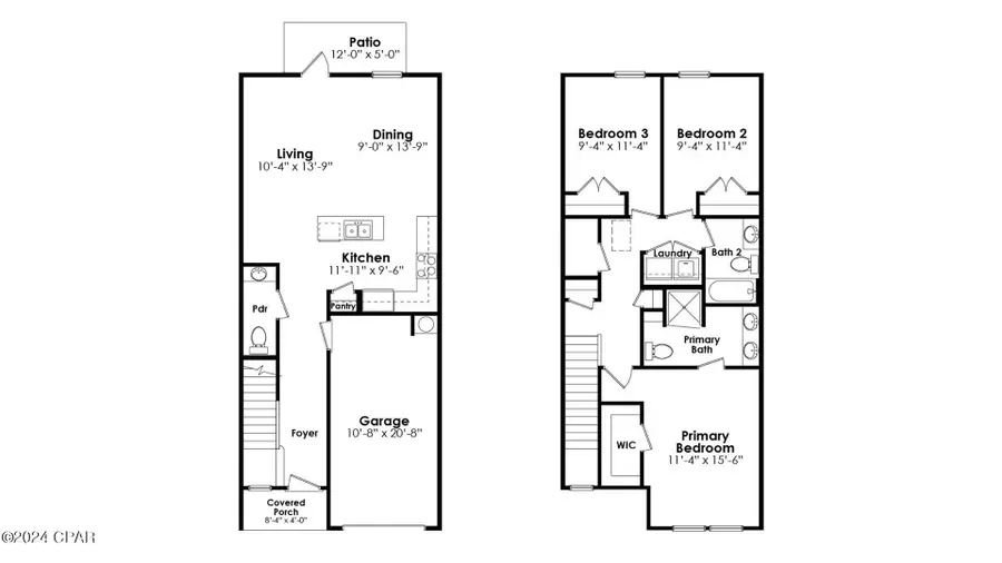
Welcome to 312 Sea Tern Lane, a new home at WindMark Townhomes located in the highly visited Port Saint Joe, Florida. The Sabal Townhome interior floorplan features 3 bedrooms and 2.5 bathrooms with a 1-car garage.
On the outside of these units, you will see quality Color-Plus Hardie Board exteriors which is uniquely engineered to stand up to the harshest elements from wind, rain, fire, freezing temperatures, and hail. Complemented by prairie-style doors and 30-year dimensional shingles. Convenience meets security with steel garage doors equipped with openers, weatherproof outlets, hose bibs, and Kwikset deadbolts on all exterior doors. The Windmark community features underground utilities making it less susceptible to damage from severe weather leading to fewer outages, quicker restoration, and more reliable service.
As you enter inside, you will feel right at home with beautiful EVP flooring at your feet, leading you to the open living room and kitchen or the spacious upstairs. In the kitchen and bathroom, you will find gorgeous quartz countertops, white cabinets with brushed nickel hardware, and stainless-steel appliances in the kitchen. Stay cool at the beach with energy-efficient cooling and heating systems, Low-E insulated windows with screens, and water-saving elongated commodes. For added security, every home comes equipped with a Safe Haven Surveillance system, Skybell doorbell, Honeywell thermostat, and DEAKO Smart Switches. Rest assured with a one-year builder's warranty from D.R. Horton and a ten-year structural warranty through RWC.
Enjoy all the amenities the WindMark Beach community has to offer complete with beautiful new homes, local food, shopping, boardwalks, and beach access! Windmark Beach amenities includes two pools, BBQ grills, 11 dedicated beach accesses, the village center, boardwalk, and is pet friendly! The community is golf cart friendly, and dogs are allowed on the beach in Windmark! Stop by our model home to experience WindMark Beach Townhomes today.
Located directly across from the Gulf, you will find beautiful beaches within walking distance, and local restaurants close by. These homes offer easy access to Tyndall Air Force Base (21.7 miles away), Panama City Beach (39 miles away), and downtown Port St. Joe (only 4 miles away)....
Contact an agent
Home facts
- Year built:2026
- Listing ID #:788354
- Added:8 day(s) ago
- Updated:April 15, 2026 at 02:48 PM
Rooms and interior
- Bedrooms:3
- Total bathrooms:3
- Full bathrooms:2
- Half bathrooms:1
- Rooms Total:4
- Dining Description:SmartThermostat
- Bathrooms Description:SmartHome, SmartThermostat
- Kitchen Description:Electric Range, Electric Water Heater, Plumbed For Ice Maker
- Bedroom Description:SmartHome, SmartThermostat
- Living area:1,460 sq. ft.
Heating and cooling
- Cooling:CeilingFans, CentralAir
- Heating:Central, Electric
- Central air:Yes
Structure and exterior
- Roof:Shingle
- Year built:2026
- Building area:1,460 sq. ft.
- Lot Features:Cul de sac
- Architectural Style:Craftsman
- Exterior Features:Patio, Porch
- Foundation Description:Slab
- Levels:2 Story
Schools
- High school:Port St. Joe
- Middle school:Port St. Joe
- Elementary school:Port St. Joe
Utilities
- Sewer:Public Sewer
Finances and disclosures
- Price:$359,900
- Price per sq. ft.:$246.51
Features and amenities
- Amenities:Beach Rights, CarbonMonoxideDetectors, DoublePaneWindows, ElectricRange, ElectricWaterHeater, Picnic Area, PlumbedForIceMaker, SecurityService, SecuritySystem, SmartHome, SmartThermostat, SmokeDetectors
- Pool features:Community
Parking
- Parking description:Additional Parking, Garage
- Garage:Yes
- Garage spaces:1
New listings near 312 Sea Tern Lane
- New
$229,900Active0.46 Acres345 Firehouse Road, Port St Joe, FL 32456
MLS# 788790Listed by: KELLER WILLIAMS SUCCESS REALTY - New
$1,699,999Active3 beds 4 baths2,295 sq. ft.4415 Wavecrest Lane, Port St Joe, FL 32456
MLS# 788788Listed by: 98 REAL ESTATE GROUP, LLC - New
$185,000Active0.37 Acres210 Driftwood Avenue, Port St Joe, FL 32456
MLS# 398977Listed by: YASMINE KHRINO - New
$1,350,000Active5 beds 3 baths2,380 sq. ft.118 Pine Street, Port St Joe, FL 32456
MLS# 788674Listed by: THINK REAL ESTATE - New
$799,900Active5 beds 4 baths2,745 sq. ft.189 Porter Drive, Port St Joe, FL 32456
MLS# 788608Listed by: DR HORTON REALTY OF EMERALD COAST, LLC - New
$289,900Active3 beds 2 baths1,580 sq. ft.616 Norris Drive, Port St Joe, FL 32456
MLS# 788617Listed by: DR HORTON REALTY OF EMERALD COAST, LLC - New
$289,900Active3 beds 2 baths1,580 sq. ft.624 Norris Drive, Port St Joe, FL 32456
MLS# 788619Listed by: DR HORTON REALTY OF EMERALD COAST, LLC - New
$499,900Active4 beds 3 baths2,324 sq. ft.112 Walkabout Court, Port St Joe, FL 32456
MLS# 788537Listed by: COASTAL CHOICE REALTY LLC - New
$279,900Active0.18 AcresLot 33 N Echo Lane, Port St Joe, FL 32456
MLS# 788473Listed by: BEACH PROPERTIES REAL ESTATE - New
$129,900Active0.11 AcresLot 26 Pinnacle Drive, Port St Joe, FL 32456
MLS# 788476Listed by: BEACH PROPERTIES REAL ESTATE