398 SW Ray Avenue, Port Saint Lucie, FL 34983
Local realty services provided by:Better Homes and Gardens Real Estate Florida 1st
398 SW Ray Avenue,Port St Lucie, FL 34983
$281,200
- 3 Beds
- 2 Baths
- - sq. ft.
- Single family
- Sold
Listed by: michele lee scherger
Office: pinnacle real estate group
MLS#:R11133810
Source:RMLS
Sorry, we are unable to map this address
Price summary
- Price:$281,200
About this home
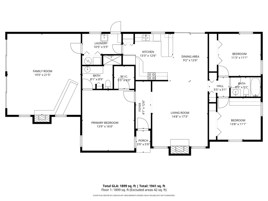
Located on a corner lot in the heart of Port St. Lucie, this frame construction pool home offers unique architectural details and incredible potential. The interior features cathedral-style cedar tongue-and-groove ceilings, two fireplaces (one in the living room and one in the converted bar/entertainment area), and a spacious kitchen perfect for future renovations and entertaining. The garage has been converted into a game room with a bar , adding flexible living space. Buyer to verify exposure all measurements are approximate NO SITE UNSEEN OFFERS
Contact an agent
Home facts
- Year built:1984
- Listing ID #:R11133810
- Added:186 day(s) ago
- Updated:April 25, 2026 at 06:35 AM
Rooms and interior
- Bedrooms:3
- Total bathrooms:2
- Full bathrooms:2
- Flooring:Carpet
Heating and cooling
- Cooling:Central Air, Electric
- Heating:Central, Electric
- Central air:Yes
Structure and exterior
- Roof:Composition, Shingle
- Year built:1984
- Architectural Style:Ranch, Rustic
- Construction Materials:Frame
- Exterior Features:Patio, Screened
- Levels:1 Story
Schools
- High school:St. Lucie West Centennial
- Middle school:Northport K-8
- Elementary school:Savanna Ridge
Utilities
- Water:Public, Water Available
- Sewer:Public Sewer, Sewer Available
Finances and disclosures
- Price:$281,200
- Tax amount:$7,074 (2025)
Features and amenities
- Pool features:Gunite, In Ground, Screen Enclosure
Parking
- Parking description:Circular Driveway
New listings near 398 SW Ray Avenue
- New
$299,900Active2 beds 2 baths1,248 sq. ft.734 SE Arton Lane, Port St Lucie, FL 34983
MLS# B26020162Listed by: D FLORIDA HOMES - New
$595,555Active5 beds 4 baths3,628 sq. ft.1188 NW Leonardo Circle, Port St Lucie, FL 34986
MLS# B26020077Listed by: KELLER WILLIAMS REALTY/P B - New
$359,900Active3 beds 2 baths1,580 sq. ft.1333 SE Bayharbor Street, Port St Lucie, FL 34983
MLS# B26020087Listed by: RE/MAX GOLD - New
$220,000Active2 beds 2 baths1,233 sq. ft.1111 NW Lombardy Drive, Port St Lucie, FL 34986
MLS# B26020104Listed by: 1ST CLASS REAL ESTATE PARADISE - New
$800,000Active3 beds 2 baths2,446 sq. ft.508 SW Bradshaw Circle, Port St Lucie, FL 34953
MLS# B26020110Listed by: KELLER WILLIAMS REALTY OF PSL - New
$589,900Active4 beds 3 baths2,486 sq. ft.5445 NW Briscoe Drive, Port St Lucie, FL 34986
MLS# B26020114Listed by: REAL ESTATE SOLUTIONS TODAY - New
$239,900Active3 beds 2 baths1,467 sq. ft.152 SW Peacock Boulevard #27101, Port St Lucie, FL 34986
MLS# B26020123Listed by: SOUTH FLORIDA REALTY PROP - New
$360,000Active3 beds 2 baths1,427 sq. ft.2534 SW Grotto Circle, Port St Lucie, FL 34953
MLS# B26020125Listed by: KW RESERVE - New
$389,900Active3 beds 2 baths1,358 sq. ft.1469 SW Leisure Lane, Port St Lucie, FL 34953
MLS# B26019929Listed by: RE/MAX GOLD - New
$489,900Active3 beds 2 baths1,309 sq. ft.417 SE Verada Avenue, Port St Lucie, FL 34983
MLS# B26019965Listed by: RE/MAX GOLD