235 Ashwood Drive, Santa Rosa Beach, FL 32459

Local realty services provided by:Better Homes and Gardens Real Estate Emerald Coast
235 Ashwood Drive,Santa Rosa Beach, FL 32459
$1,329,905
  • 4 Beds
  • 4 Baths
  • 3,175 sq. ft.
  • Single family
  • Active
Listed by: pamela k hawkins
Office: dr horton realty of emerald coast llc.
MLS#:994320
Source:FL_ECAR

Price summary

  • Price:$1,329,905
  • Price per sq. ft.:$418.87

About this home

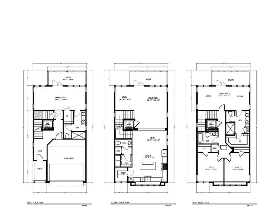
Welcome to 235 Ashwood Drive, a new coastal luxury home under construction at Parkside located in Santa Rosa Beach, Florida. Discover refined coastal luxury in this beautifully designed three-story home featuring four bedrooms, four bathrooms, and elevated living spaces on every level. Thoughtfully crafted for comfort, style, and functionality, this coastal residence offers a balcony on each floor, bringing in natural light, fresh ocean breezes, and a true indoor-outdoor lifestyle. The main level features the first of two primary bedroom suites, complete with a spacious walk-in closet and a large, spa-inspired shower. This level's private balcony creates the perfect retreat for relaxing mornings or peaceful evenings. The second level serves as the heart of the home, offering an open and inviting layout ideal for entertaining. A gourmet kitchen with premium finishes flows seamlessly into the living and dining areas, creating a bright and airy central gathering space. This level also...

Contact an agent

contact an agent

Yes, I would like more information. Please use and/or share my information with a BHGRE®  affiliated agent to contact me about my real estate needs. By clicking Send message, I request to be contacted by phone or text message and consent to being contacted by automated means. I understand that my consent to receive calls or texts is not a condition of purchasing any property, goods, or services. Alternatively, I understand that I can access real estate services by email or I can contact the agent myself.

If a BHGRE®  affiliated agent is not available in the area where I need assistance, I agree to be contacted by a real estate agent affiliated with another brand owned or licensed by Anywhere Real Estate (CENTURY 21® , Coldwell Banker® , Corcoran® , ERA® , Sotheby's International Realty® ).
 I acknowledge that I have read and agree to theTerms of useandPrivacy notice

Home facts

  • Year built:2026
  • Listing ID #:994320
  • Added:79 day(s) ago
  • Updated:April 23, 2026 at 02:45 PM

Rooms and interior

  • Bedrooms:4
  • Total bathrooms:4
  • Full bathrooms:3
  • Half bathrooms:1
  • Rooms Total:8
  • Kitchen Description:Cooktop, Dishwasher, Ice Machine, Stove/Oven Gas, Warranty Provided
  • Living area:3,175 sq. ft.

Structure and exterior

  • Year built:2026
  • Building area:3,175 sq. ft.
  • Lot area:0.09 Acres
  • Architectural Style:Beach House
  • Exterior Features:Balcony

Schools

  • High school:South Walton
  • Middle school:Emerald Coast
  • Elementary school:Dune Lakes

Utilities

  • Water:Public Water

Finances and disclosures

  • Price:$1,329,905
  • Price per sq. ft.:$418.87

Features and amenities

  • Appliances:Cooktop, Dishwasher, Stove/Oven Gas
  • Amenities:Kitchen Island

Parking

  • Garage:Yes
  • Garage spaces:2
The information being provided by Emerald Coast Association Of REALTORS® is for the consumer's personal, non-commercial use and may not be used for any purpose other than to identify prospective properties consumer may be interested in purchasing. Any information relating to real estate for sale referenced on this web site comes from the Internet Data Exchange (IDX) program of the Emerald Coast Association Of REALTORS®. Better Homes and Gardens Real Estate Emerald Coast is not a Multiple Listing Service (MLS), nor does it offer MLS access. This website is a service of Better Homes and Gardens Real Estate Emerald Coast, a broker participant of Emerald Coast Association Of REALTORS®. This web site may reference real estate listing(s) held by a brokerage firm other than the broker and/or agent who owns this web site. The accuracy of all information, regardless of source, including but not limited to open house information, square footages and lot sizes, is deemed reliable but not guaranteed and should be personally verified through personal inspection by and/or with the appropriate professionals. The data contained herein is copyrighted by Emerald Coast Association Of REALTORS® and is protected by all applicable copyright laws. Any unauthorized dissemination of this information is in violation of copyright laws and is strictly prohibited. Properties in listings may have been sold or may no longer be available. Copyright 2026 Emerald Coast Association Of REALTORS®. All rights reserved.