33 Chaste Tree Lane, Saint Augustine, FL 32092
Local realty services provided by:Better Homes and Gardens Real Estate Lifestyles Realty
33 Chaste Tree Lane,St. Augustine, FL 32092
$393,990
- 4 Beds
- 3 Baths
- 1,887 sq. ft.
- Townhouse
- Active
Listed by: nancy pruitt
Office: olympus executive realty, inc
MLS#:2111515
Source:JV
Price summary
- Price:$393,990
- Price per sq. ft.:$208.79
- Monthly HOA dues:$270
About this home
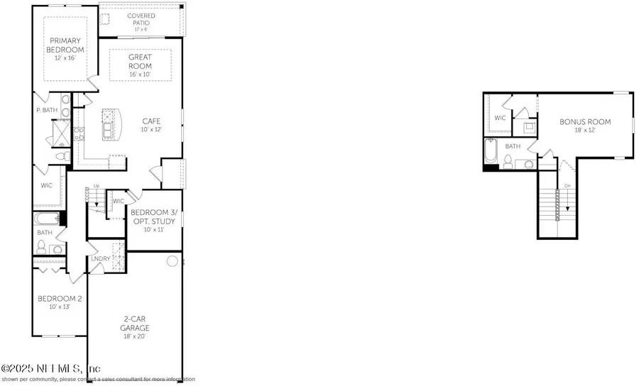
The Madison II villa offers the perfect blend of convenient main-level living with the versatile space of a second story with a full bath. This beautifully designed home provides three spacious bedrooms on the main floor, ensuring comfort and privacy. The open-concept living area flows seamlessly into a large, inviting kitchen, perfect for everyday meals or entertaining guests. Very well-appointed villa with designer upgrades throughout, such as Premium Kitchen and Bathroom cabinets, Gourmet Kitchen with Island, Stainless Steel Hood vent, Microwave / Wall Oven Combo with Gas Cooktop, premium flooring in the main living areas, quartz countertop & vanity tops just to name a few! ...Brook Forest is a Dream Finders Homes ONLY gated community with Private Amenities for residents only in addition to all of the Amenities Silverleaf has to offer. Use Preferred lender for special interest rates and closing costs - some conditions do apply.
Contact an agent
Home facts
- Year built:2026
- Listing ID #:2111515
- Added:178 day(s) ago
- Updated:March 30, 2026 at 10:18 AM
Rooms and interior
- Bedrooms:4
- Total bathrooms:3
- Full bathrooms:3
- Rooms Total:6
- Bathrooms Description:Primary Bathroom - Shower No Tub
- Kitchen Description:Breakfast Bar, Dishwasher, Disposal, Eat-in Kitchen, Gas Range, Microwave, Pantry
- Bedroom Description:Split Bedrooms
- Living area:1,887 sq. ft.
Heating and cooling
- Cooling:Central Air
- Heating:Central
- Central air:Yes
Structure and exterior
- Roof:Shingle
- Year built:2026
- Building area:1,887 sq. ft.
- Lot area:0.11 Acres
- Construction Materials:Fiber Cement, Frame
- Exterior Features:Covered
Schools
- High school:Tocoi Creek
- Middle school:Trout Creek Academy
- Elementary school:Trout Creek Academy
Utilities
- Water:Public
- Sewer:Public Sewer
Finances and disclosures
- Price:$393,990
- Price per sq. ft.:$208.79
- Tax amount:$150 (2024)
Features and amenities
- Amenities:Breakfast Bar, Children's Pool, Clubhouse, Eat-in Kitchen, Entrance Foyer, Jogging Path, Maintenance Grounds, Playground, Primary Downstairs, Split Bedrooms, Tennis Court(s), Walk-In Closet(s)
- Pool features:Children's Pool
Parking
- Parking description:Attached, Garage, Garage Door Opener
- Garage:Yes
- Garage spaces:2
New listings near 33 Chaste Tree Lane
- New
$38,000Active0.17 Acres900 W 3rd Street, ST AUGUSTINE, FL 32084
MLS# O6394277Listed by: ELITE REALTY PARTNERS, INC. - New
$395,000Active3 beds 2 baths1,463 sq. ft.4040 Red Pine Ln, St Augustine, FL 32086
MLS# 261527Listed by: LEONARDI SEASIDE REALTY - New
$1,590,000Active4 beds 4 baths3,028 sq. ft.240 Ridgeway Rd, St Augustine, FL 32080
MLS# 261523Listed by: SUNSHINE REALTY & VACATION RENTALS, LLC - New
$509,000Active3 beds 2 baths1,247 sq. ft.452 Arricola Avenue, St Augustine, FL 32080
MLS# B26008306Listed by: RE/MAX DIRECT - New
$1,375,000Active-- beds -- baths711 A1a Beach Blvd, St Augustine, FL 32080
MLS# 261522Listed by: LPT REALTY LLC - New
$429,000Active4 beds 2 baths1,775 sq. ft.448 La Mancha Drive, ST AUGUSTINE, FL 32086
MLS# FC317308Listed by: NATALE REALTORS - Open Sat, 11am to 1:30pmNew
$939,000Active4 beds 3 baths3,150 sq. ft.167 La Mesa Dr Pool Home, St Augustine, FL 32095
MLS# 261518Listed by: WATSON REALTY CORP (A1A) - New
$900,000Active4 beds 3 baths2,661 sq. ft.151 Silver Pine Drive, St. Augustine, FL 32092
MLS# 2137181Listed by: EXP REALTY LLC - Open Sat, 11am to 1pmNew
$595,000Active4 beds 3 baths2,182 sq. ft.137 Windermere Way, St. Augustine, FL 32095
MLS# 2137229Listed by: BLUEFIN REAL ESTATE GROUP - Open Sat, 12 to 2pmNew
$825,000Active4 beds 3 baths3,012 sq. ft.584 Christina Dr, St Augustine, FL 32086
MLS# 261517Listed by: BERKSHIRE HATHAWAY HOMESERVICES FLORIDA NETWORK REALTY