122 Vicksburg Drive, Saint Johns, FL 32259
Local realty services provided by:Better Homes and Gardens Real Estate Lifestyles Realty
122 Vicksburg Drive,St. Johns, FL 32259
$365,000
- 3 Beds
- 2 Baths
- 1,372 sq. ft.
- Single family
- Active
Listed by: cole slate
Office: keller williams st johns
MLS#:2137954
Source:JV
Price summary
- Price:$365,000
- Price per sq. ft.:$266.03
- Monthly HOA dues:$4.42
About this home
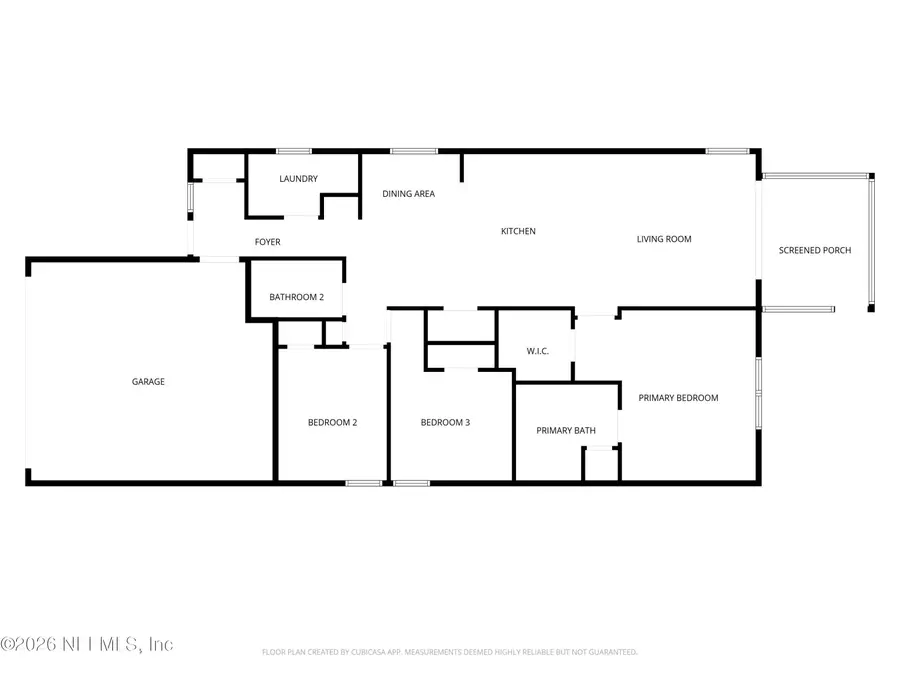
Welcome to 122 Vicksburg Drive in the RiverTown community, where thoughtful design meets everyday comfort. This home features an open floor plan that seamlessly connects the living and dining spaces, creating an inviting setting for both relaxing and entertaining. The beautifully designed kitchen is a standout, complete with a gas range, large island, stylish backsplash, and a bright breakfast nook. Step outside to a screened in back porch, perfect for enjoying Florida living year round. The primary suite offers a spacious walk in closet and a glass enclosed shower, creating a private retreat.
RiverTown residents enjoy resort style amenities including a riverfront pool, cafe and bar, tennis and basketball courts, scenic trails, dog parks, and a lazy river, creating a lifestyle where every day feels like a vacation.
Contact an agent
Home facts
- Year built:2020
- Listing ID #:2137954
- Added:2 day(s) ago
- Updated:April 11, 2026 at 12:53 PM
Rooms and interior
- Bedrooms:3
- Total bathrooms:2
- Full bathrooms:2
- Flooring:carpet, tile
- Bathrooms Description:Primary Bathroom - Shower No Tub
- Kitchen Description:Dishwasher, Disposal, Gas Range, Kitchen Island, Microwave, Refrigerator
- Living area:1,372 sq. ft.
Heating and cooling
- Cooling:Central Air
- Heating:Central
- Central air:Yes
Structure and exterior
- Roof:Shingle
- Year built:2020
- Building area:1,372 sq. ft.
- Lot area:0.1 Acres
- Exterior Features:Porch, Screened
Schools
- High school:Bartram Trail
- Middle school:Hallowes Cove Academy
- Elementary school:Hallowes Cove Academy
Utilities
- Water:Public
Finances and disclosures
- Price:$365,000
- Price per sq. ft.:$266.03
- Tax amount:$5,461 (2025)
Features and amenities
- Laundry features:Dryer, Washer
- Amenities:Basketball Court, Clubhouse, Fitness Center, Jogging Path, Playground, Tennis Court(s), Walk-In Closet(s)
Parking
- Parking description:Attached, Garage
- Garage:Yes
- Garage spaces:2
New listings near 122 Vicksburg Drive
- New
$589,000Active4 beds 3 baths2,584 sq. ft.4025 Lonicera Loop, St. Johns, FL 32259
MLS# 2139545Listed by: CHRISTIE'S INTERNATIONAL REAL ESTATE FIRST COAST - New
$819,000Active3 beds 4 baths3,164 sq. ft.228 Conquistador Road, St. Johns, FL 32259
MLS# 2139523Listed by: KELLER WILLIAMS REALTY ATLANTIC PARTNERS - New
$549,999Active4 beds 4 baths2,961 sq. ft.532 Grampian Highlands Drive, St. Johns, FL 32259
MLS# 2139511Listed by: REAL BROKER LLC - New
$465,000Active3 beds 2 baths1,906 sq. ft.408 S Elverton Place, St. Johns, FL 32259
MLS# 2139518Listed by: SERVICE REALTY, LLC
$744,054Pending4 beds 3 baths3,036 sq. ft.530 Adirondack Drive, St. Johns, FL 32259
MLS# 2139437Listed by: MATTAMY REAL ESTATE SERVICES- Open Sun, 12 to 3pmNew
$619,900Active4 beds 3 baths2,577 sq. ft.148 S Arabella Way, St. Johns, FL 32259
MLS# 2139430Listed by: COLDWELL BANKER VANGUARD REALTY - New
$529,000Active3 beds 2 baths1,290 sq. ft.1265 Whispering Pines Road, St. Johns, FL 32259
MLS# 2139440Listed by: RE/MAX SPECIALISTS PV - New
$685,999Active5 beds 4 baths2,792 sq. ft.1104 Hideaway Dr, St Johns, FL 32259
MLS# 261802Listed by: KELLER WILLIAMS REALTY ATLANTIC PARTNERS ST AUGUSTINE - Open Sat, 2 to 4pmNew
$685,999Active5 beds 4 baths2,792 sq. ft.1104 Hideaway N Drive, Jacksonville, FL 32259
MLS# 2139368Listed by: KELLER WILLIAMS REALTY ATLANTIC PARTNERS ST. AUGUSTINE - Open Sat, 1 to 4pmNew
$1,149,000Active5 beds 4 baths4,280 sq. ft.240 St Johns Forest Boulevard, St. Johns, FL 32259
MLS# 2139331Listed by: RE/MAX SPECIALISTS