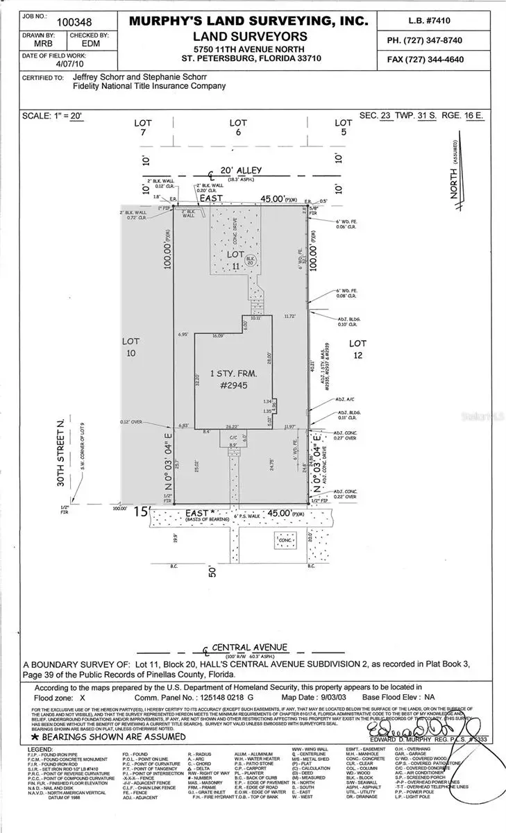
2945 Central Avenue, Saint Petersburg, FL 33713

Local realty services provided by:Better Homes and Gardens Real Estate Lifestyles Realty
2945 Central Avenue,St Petersburg, FL 33713
$695,000
  • 0.14 Acres
  • Lots / Land
  • Active
Listed by: alex caballero, bob roberts
Office: impact realty tampa bay
MLS#:TB8438727
Source:MFRMLS

Price summary

  • Price:$695,000

About this home

Optional to purchase only 4500 sqft of this lot for $630,000. BETTER THAN A CORNER- the historic property to the west will remain open for viewing of the landmark Craftsman house restoration and courtyard. Add balconies on the north side over Central and on the west side. This soon-to-be vacant lot is next door to the Historic Craftsman House. Centrally located on Central Avenue, St. Petersburg is known for its bustling atmosphere and eclectic mix of shops, cafes, and cultural destinations. Located on Central Avenue, St. Petersburg is renowned for its vibrant atmosphere and diverse mix of shops, cafes, and cultural attractions. As part of the Grand Central District, the Kenwood neighborhood, along with the Warehouse Arts District, is surrounded by a thriving community of residents and businesses. The location attracts a steady flow of foot traffic and loyal patrons. Nicknamed The Craftsman Courtyard, this will be a destination for Pinellas County visitors and a local hangout for the

Contact an agent

contact an agent

Yes, I would like more information from BHGRE®. Please use and/or share my information with an BHGRE affiliated agent to contact me about my real estate needs. By clicking Send message, I agree an BHGRE affiliated agent may contact me by phone or text message including by automated means about real estate services, and that I can access real estate services without providing my phone number. I acknowledge that I have read and agree to theTerms of useandPrivacy notice

Home facts

  • Listing ID #:TB8438727
  • Added:45 day(s) ago
  • Updated:December 01, 2025 at 01:22 PM

Structure and exterior

  • Lot area:0.14 Acres

Utilities

  • Water:Public, Water Available
  • Sewer:Public, Public Sewer, Sewer Available

Finances and disclosures

  • Price:$695,000
  • Tax amount:$1,550 (2024)
MLS LogoThe information being provided by Stellar Mls is for the consumer's personal, non-commercial use and may not be used for any purpose other than to identify prospective properties consumer may be interested in purchasing. Any information relating to real estate for sale referenced on this web site comes from the Internet Data Exchange (IDX) program of the Stellar Mls. Better Homes and Gardens Real Estate Lifestyles Realty is not a Multiple Listing Service (MLS), nor does it offer MLS access. This website is a service of Better Homes and Gardens Real Estate Lifestyles Realty, a broker participant of Stellar Mls. This web site may reference real estate listing(s) held by a brokerage firm other than the broker and/or agent who owns this web site. The accuracy of all information, regardless of source, including but not limited to open house information, square footages and lot sizes, is deemed reliable but not guaranteed and should be personally verified through personal inspection by and/or with the appropriate professionals. The data contained herein is copyrighted by Stellar Mls and is protected by all applicable copyright laws. Any unauthorized dissemination of this information is in violation of copyright laws and is strictly prohibited. Properties in listings may have been sold or may no longer be available. Copyright 2025 Stellar Mls. All rights reserved.