485 11th Avenue N, Saint Petersburg, FL 33701

Local realty services provided by:Better Homes and Gardens Real Estate Thomas Group
485 11th Avenue N,St Petersburg, FL 33701
$1,575,000
  • 4 Beds
  • 4 Baths
  • 2,789 sq. ft.
  • Single family
  • Active
Listed by: jeff thomas
Office: compass florida llc.
MLS#:TB8496850
Source:MFRMLS

Price summary

  • Price:$1,575,000
  • Price per sq. ft.:$409.94

About this home

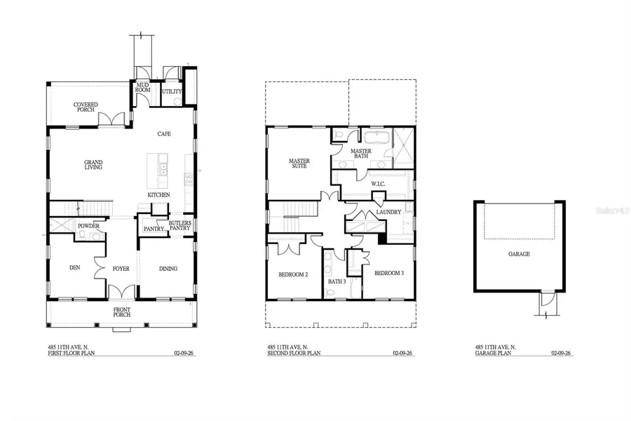
Luxury new construction by Mobley Homes Custom LLC, one of Tampa Bay’s premier builders, located near Crescent Lake and Historic Old Northeast with NO flood insurance required. Built with hurricane-rated half concrete block construction on the first floor, this home offers durability, energy efficiency, and long-term value.This 4-bedroom, 3.5-bath home features an open-concept layout with high ceilings, Level 4 smooth drywall, and abundant natural light. The gourmet kitchen includes designer cabinetry, premium countertops, a large island, and high-end stainless steel appliances. The primary suite offers a spa-like bath with 12x24 Asian Statuary Marble from TileBar. Situated on a quiet residential street just minutes from Crescent Lake Park, Downtown St. Petersburg, and Central Avenue dining, shopping, and entertainment. Easy access to I-275, St. Pete Beach, and Tampa International Airport. The backyard includes alley access, a 2-car garage, and room for a pool or outdoor living...

Contact an agent

contact an agent

Yes, I would like more information. Please use and/or share my information with a BHGRE®  affiliated agent to contact me about my real estate needs. By clicking Send message, I request to be contacted by phone or text message and consent to being contacted by automated means. I understand that my consent to receive calls or texts is not a condition of purchasing any property, goods, or services. Alternatively, I understand that I can access real estate services by email or I can contact the agent myself.

If a BHGRE®  affiliated agent is not available in the area where I need assistance, I agree to be contacted by a real estate agent affiliated with another brand owned or licensed by Anywhere Real Estate (CENTURY 21® , Coldwell Banker® , Corcoran® , ERA® , Sotheby's International Realty® ).
 I acknowledge that I have read and agree to theTerms of useandPrivacy notice

Home facts

  • Year built:2026
  • Listing ID #:TB8496850
  • Added:1 day(s) ago
  • Updated:April 16, 2026 at 02:09 AM

Rooms and interior

  • Bedrooms:4
  • Total bathrooms:4
  • Full bathrooms:3
  • Half bathrooms:1
  • Flooring:Carpet, Hardwood
  • Kitchen Description:Cooktop, Dishwasher, Freezer, Ice Maker, Kitchen/Family Room Combo, Microwave, Refrigerator
  • Bedroom Description:High Ceilings
  • Basement Description:Block, Concrete Perimeter
  • Living area:2,789 sq. ft.

Heating and cooling

  • Cooling:Central Air
  • Heating:Central, Heat Pump
  • Central air:Yes

Structure and exterior

  • Roof:Shingle
  • Year built:2026
  • Building area:2,789 sq. ft.
  • Lot area:0.15 Acres
  • Architectural Style:Craftsman
  • Construction Materials:Block, Frame, Hardi Plank Type, Stucco
  • Exterior Features:Porch, Private Mailbox, Rear Porch, Sidewalk
  • Foundation Description:Block, Concrete Perimeter, Stem Wall
  • Levels:2 Story

Utilities

  • Water:Water Connected
  • Sewer:Public Sewer, Sewer Connected

Finances and disclosures

  • Price:$1,575,000
  • Price per sq. ft.:$409.94
  • Tax amount:$8,652 (2025)

Features and amenities

  • Appliances:Cooktop, Dishwasher, Dryer, Freezer, Gas Water Heater, Ice Maker, Microwave, Refrigerator, Tankless Water Heater
  • Laundry features:Dryer, Laundry Room
  • Amenities:Cable Connected, Ceiling Fans(s), High Ceilings, Kitchen/Family Room Combo
  • Pool features:Public Pool

Parking

  • Parking description:Alley Access, Off Street
  • Garage:Yes
  • Garage spaces:2
MLS LogoThe information being provided by Stellar Mls is for the consumer's personal, non-commercial use and may not be used for any purpose other than to identify prospective properties consumer may be interested in purchasing. Any information relating to real estate for sale referenced on this web site comes from the Internet Data Exchange (IDX) program of the Stellar Mls. Better Homes and Gardens Real Estate Thomas Group is not a Multiple Listing Service (MLS), nor does it offer MLS access. This website is a service of Better Homes and Gardens Real Estate Thomas Group, a broker participant of Stellar Mls. This web site may reference real estate listing(s) held by a brokerage firm other than the broker and/or agent who owns this web site. The accuracy of all information, regardless of source, including but not limited to open house information, square footages and lot sizes, is deemed reliable but not guaranteed and should be personally verified through personal inspection by and/or with the appropriate professionals. The data contained herein is copyrighted by Stellar Mls and is protected by all applicable copyright laws. Any unauthorized dissemination of this information is in violation of copyright laws and is strictly prohibited. Properties in listings may have been sold or may no longer be available. Copyright 2026 Stellar Mls. All rights reserved.