7803 46th Avenue N #43, Saint Petersburg, FL 33709
Local realty services provided by:Better Homes and Gardens Real Estate Lifestyles Realty
Listed by:tracy cooper
Office:lpt realty, llc.
MLS#:TB8432905
Source:MFRMLS
Price summary
- Price:$100,000
- Price per sq. ft.:$92.25
- Monthly HOA dues:$180
About this home
NO LOT RENT | TURNKEY 2BR/1.5BA IN 55+ CO-OP COMMUNITY
Discover your perfect Florida retreat in this beautifully maintained 2-bedroom, 1.5-bath home located in a desirable 55+ co-op community—and yes, there’s NO LOT RENT! This move-in-ready home features a sought-after split floor plan and comes mostly furnished, so you can start enjoying the sunshine right away.
The updated kitchen shines with stainless steel appliances, including a 2023 refrigerator, 2021 stove, and brand-new 2025 microwave. The main bath was fully renovated in 2022 and includes a walk-in shower & stackable washer and dryer (2022) for added convenience. Additional updates include a 2021 electrical panel, new windows in 2024, and a 2018 heat pump providing efficient central A/C. Hurricane straps add peace of mind during storm season.
Stylish laminate flooring flows throughout, complemented by tile in the Florida room—perfect for relaxing, entertaining, or working from home. Step outside to a private patio ideal for grilling or outdoor dining. A 10x8 storage shed offers plenty of room for tools, beach gear, or hobby supplies.
Located just steps from the community pool, this home is ideal for snowbirds or year-round residents seeking a low-maintenance Florida lifestyle. One resident must be 55 or older.
The ultra-low co-op fee of just $180/month covers water, sewer, trash, common area maintenance, and use of the pool & other amenities like the shuffleboard & pool hall—plus your ownership share is included in the sale, meaning no lot rent ever! Enjoy optional social activities and friendly neighbors in this welcoming community. Home was tented in September, 2025 and comes with transferrable warranty. Co-op share included in purchase price. All appliances and most furniture stays. Cash buyers only.
Contact an agent
Home facts
- Year built:1967
- Listing ID #:TB8432905
- Added:213 day(s) ago
- Updated:October 12, 2025 at 12:07 PM
Rooms and interior
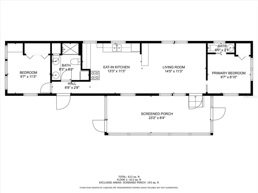
- Bedrooms:2
- Total bathrooms:2
- Full bathrooms:1
- Half bathrooms:1
- Living area:636 sq. ft.
Heating and cooling
- Cooling:Central Air
- Heating:Electric
Structure and exterior
- Roof:Membrane
- Year built:1967
- Building area:636 sq. ft.
- Lot area:10.85 Acres
Schools
- High school:Dixie Hollins High-PN
- Middle school:Azalea Middle-PN
- Elementary school:Seventy-Fourth St. Elem-PN
Utilities
- Water:Public, Water Connected
- Sewer:Public, Public Sewer, Sewer Connected
Finances and disclosures
- Price:$100,000
- Price per sq. ft.:$92.25
- Tax amount:$898 (2024)
New listings near 7803 46th Avenue N #43
- New$469,900Active3 beds 2 baths1,348 sq. ft.
4125 Barracuda Drive Se, ST PETERSBURG, FL 33705
MLS# TB8436415Listed by: FATHOM REALTY FL LLC - New$238,000Active1 beds 1 baths745 sq. ft.
4900 Brittany Drive S #905, ST PETERSBURG, FL 33715
MLS# TB8437018Listed by: ALIGN RIGHT REALTY SOUTH SHORE - New$129,900Active2 beds 2 baths960 sq. ft.
7777 46th Avenue N #33, ST PETERSBURG, FL 33709
MLS# TB8436850Listed by: FOREVER FLORIDA REAL ESTATE - New$150,000Active2 beds 1 baths805 sq. ft.
3460 32nd Avenue N #201, ST PETERSBURG, FL 33713
MLS# TB8436884Listed by: CHARLES RUTENBERG REALTY INC - New$709,000Active3 beds 2 baths1,592 sq. ft.
108 36th St N, ST PETERSBURG, FL 33713
MLS# TB8436578Listed by: COASTAL LUXURY REALTY - New$214,999Active3 beds 2 baths1,180 sq. ft.
730 S Village Drive N #101, ST PETERSBURG, FL 33716
MLS# TB8432198Listed by: MIHARA & ASSOCIATES INC. - New$1,900,000Active2 beds 3 baths2,600 sq. ft.
555 5th Avenue Ne #332, ST PETERSBURG, FL 33701
MLS# TB8435001Listed by: KELLER WILLIAMS ST PETE REALTY - Open Sun, 1 to 2pmNew$2,300,000Active5 beds 3 baths3,200 sq. ft.
224 Toledo Way Ne, ST PETERSBURG, FL 33704
MLS# TB8431721Listed by: COMPASS FLORIDA LLC - Open Sun, 11am to 1pmNew$699,900Active3 beds 2 baths1,528 sq. ft.
480 28th Avenue N, ST PETERSBURG, FL 33704
MLS# TB8435564Listed by: COMPASS FLORIDA LLC - New$579,900Active3 beds 2 baths1,550 sq. ft.
3700 14th Street N, ST PETERSBURG, FL 33704
MLS# TB8436948Listed by: LPT REALTY, LLC