9369 SE 124th Loop, Summerfield, FL 34491
Local realty services provided by:Better Homes and Gardens Real Estate Atchley Properties
Listed by:lili whittington
Office:exp realty llc.
MLS#:G5103397
Source:MFRMLS
Price summary
- Price:$369,000
- Price per sq. ft.:$145.1
- Monthly HOA dues:$211
About this home
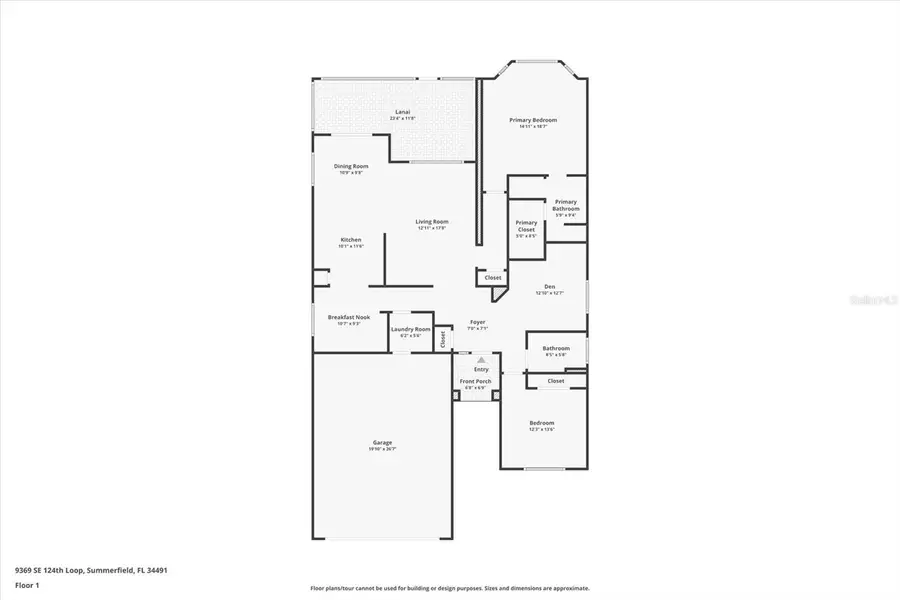
Beautifully Updated 2 Bedroom, 2 Bath + Den Ponte Vedra Designer home in Tamarron II, in the Award-Winning 55+ Del Webb Spruce Creek Golf and Country Club. Roof 2019. New electric HVAC system, Hot Water Heater and Refrigerator just this year.
This immaculate split-plan home showcases exceptional updates, energy-efficient features, and stylish finishes throughout. The stamped concrete driveway and walkway lead to a welcoming covered front porch and tiled entryway.
The open-concept living and dining areas feature wood-look laminate flooring, while the kitchen boasts newly resurfaced cabinets, quartz countertops, stainless steel appliances, pull-out cabinet shelves, pantry closet, breakfast bar, and a bright breakfast nook with additional stoRage.
The spacious primary suite includes a walk-in closet with built-in shelving and solar tube, and an updated ensuite bath featuring a step-in shower with bench, private water closet, window, and skylight for natural light. The guest bedroom offers comfort and convenience with adjacent updated bath featuring a tub/shower combo.
Enjoy year-round comfort in the temperature-controlled, carpeted lanai. Step outside to the paver patio, perfect for outdoor dining and entertaining and enjoy the private picturesque backyard with no homes behind.
Additional highlights include: an open den, 2-car garage with built-in storage cabinets and mud sink, Interior laundry room with solar tube, HVAC Trane Smart thermostat, interior freshly painted, tinted windows in baths, kitchen, and dining for energy efficiency. Ring doorbell, Transferable Massey termite contract and Broward Factory Service contract. Home is wired for gas.
Del Webb Spruce Creek Golf & Country Club Gated Community has over 70 clubs, (4) 9-hole Golf Courses, 3 pools, An Indoor Pool, Clubhouse, Fitness Center, Bocce Ball, Shuffleboard, Pickleball & Tennis Courts, Sand Volleyball, Water Volleyball, Lake Vista Gazebo, Pavilions, Walking Paths & much more! You will also find Restaurants, Dining Entertainment, Liberty Grille in the Del Webb Community. Only a short drive away from all the activity in The Villages. Easy access to restaurants, shopping and doctors. Schedule your appointment to see this home and start living your Retirement Dream!
Contact an agent
Home facts
- Year built:2003
- Listing ID #:G5103397
- Added:14 day(s) ago
- Updated:November 02, 2025 at 01:09 PM
Rooms and interior
- Bedrooms:3
- Total bathrooms:2
- Full bathrooms:2
- Living area:1,649 sq. ft.
Heating and cooling
- Cooling:Central Air
- Heating:Central
Structure and exterior
- Roof:Shingle
- Year built:2003
- Building area:1,649 sq. ft.
- Lot area:0.23 Acres
Utilities
- Water:Public, Water Connected
- Sewer:Public Sewer, Sewer Connected
Finances and disclosures
- Price:$369,000
- Price per sq. ft.:$145.1
- Tax amount:$3,597 (2024)
New listings near 9369 SE 124th Loop
- Open Sat, 11am to 2pmNew
$230,000Active3 beds 2 baths1,450 sq. ft.17870 Se 96th Court, SUMMERFIELD, FL 34491
MLS# OM711885Listed by: RE/MAX FOXFIRE - SUMMERFIELD - New
$459,999Active2 beds 3 baths2,434 sq. ft.13026 SE 97th Terrace Road, SUMMERFIELD, FL 34491
MLS# OM712699Listed by: RE/MAX PREMIER REALTY LADY LK - New
$399,500Active3 beds 2 baths2,000 sq. ft.8845 SE 132nd Loop, SUMMERFIELD, FL 34491
MLS# OM712444Listed by: JUDY L. TROUT REALTY - New
$228,900Active3 beds 2 baths1,386 sq. ft.9405 SE 140th Place, SUMMERFIELD, FL 34491
MLS# OM712666Listed by: TCT REALTY GROUP LLC - New
$130,000Active4 beds 3 baths957 sq. ft.8901 SE 144th Lane, SUMMERFIELD, FL 34491
MLS# OM712635Listed by: EXP REALTY LLC - New
$274,900Active3 beds 2 baths1,521 sq. ft.8469 SE 161st Place, SUMMERFIELD, FL 34491
MLS# G5103878Listed by: FLAMINGO REAL ESTATE & MNGMT - New
$430,000Active2 beds 2 baths1,870 sq. ft.9385 SE 125th Street, SUMMERFIELD, FL 34491
MLS# O6356461Listed by: REDFIN CORPORATION
$250,000Pending3 beds 2 baths1,448 sq. ft.15715 SE 90th Terrace, SUMMERFIELD, FL 34491
MLS# G5103934Listed by: RE/MAX FOXFIRE - LADY LAKE- New
$209,000Active2 beds 2 baths1,008 sq. ft.10339 SE 179th Street, SUMMERFIELD, FL 34491
MLS# TB8442771Listed by: KELLER WILLIAMS SUBURBAN TAMPA - New
$979,000Active3 beds 3 baths2,656 sq. ft.35 SE Chinica Drive, SUMMERFIELD, FL 34491
MLS# OM712436Listed by: MAJESTIC OAKS REALTY