2758 Deborah Drive, Tallahassee, FL 32310
Local realty services provided by:Better Homes and Gardens Real Estate Florida 1st
Listed by: suzanne mcghee
Office: mattox realty, inc
MLS#:397593
Source:FL_TBR
Price summary
- Price:$395,900
- Price per sq. ft.:$279.99
About this home
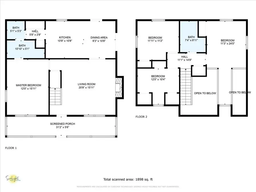
Lakefront home with a cozy living room with vaulted ceiling and wood burning fireplace. Living room opens to lakeside sunroom with mylar sliding windows (heated&cooled but is not included in total SqFt). Open kitchen/dining area. Primary BR with walk-in closet and bath on main floor. Three bedrooms and full bath on 2nd floor. Gardeners will love this yard and the flowering trees and plants. Boat house with boat lift and fishing dock! || Roof 2021, Range 2022, Refrigerator 2024, New LVP flooring. Lake Talquin Living in the beautiful Parramore Shores community, perfect for walking and biking...! This area is surrounded by Lake Talquin State Forest and the Apalachicola National Forest. Enjoy 'laidback living' just minutes from downtown Tallahassee, TLH international Airport, Ft. Braden community center, library and school... Lake Talquin is a ~8800 acre lake, enjoy fishing, water sports, an abundance of wild life and miles of shoreline to explore. Thank you for your interest in Lake Talquin Living! Boundary lines noted on photos are approximate....
Contact an agent
Home facts
- Year built:1990
- Listing ID #:397593
- Added:46 day(s) ago
- Updated:May 07, 2026 at 02:49 PM
Rooms and interior
- Bedrooms:4
- Total bathrooms:2
- Full bathrooms:2
- Kitchen Description:Dishwasher, Ice Maker, Oven, Pantry, Range, Refrigerator
- Bedroom Description:Split Bedrooms
- Living area:1,414 sq. ft.
Heating and cooling
- Cooling:Ceiling Fans, Central Air, Electric
- Heating:Central, Electric, Wood
- Central air:Yes
Structure and exterior
- Year built:1990
- Building area:1,414 sq. ft.
- Lot area:0.6 Acres
- Architectural Style:Traditional
- Construction Materials:Vinyl Siding
- Exterior Features:Porch, Screened
Schools
- High school:GODBY
- Middle school:FT. BRADEN
- Elementary school:FT. BRADEN
Utilities
- Sewer:Septic Tank
Finances and disclosures
- Price:$395,900
- Price per sq. ft.:$279.99
Features and amenities
- Laundry features:Dryer, Washer
- Amenities:Window Treatments
Parking
- Parking description:Driveway
New listings near 2758 Deborah Drive
- New
$190,000Active3 beds 2 baths1,256 sq. ft.722 Brent Drive, Tallahassee, FL 32305
MLS# 399623Listed by: KELLER WILLIAMS TOWN & COUNTRY - New
$100,000Active2 beds 3 baths1,200 sq. ft.2350 Gregory Drive, Tallahassee, FL 32303
MLS# 10759882Listed by: Federa - Open Sun, 2 to 4pmNew
$598,000Active4 beds 3 baths2,563 sq. ft.2644 Bantry Bay Drive, Tallahassee, FL 32309
MLS# 399617Listed by: ARMOR REALTY, INC - New
$249,000Active3 beds 2 baths1,227 sq. ft.1926 Maryellen Drive, Tallahassee, FL 32303
MLS# 399621Listed by: HUM REAL ESTATE - New
$445,000Active5 beds 3 baths2,471 sq. ft.1006 Longspur Lane, Tallahassee, FL 32309
MLS# 398725Listed by: XCELLENCE - New
$260,000Active3 beds 2 baths1,084 sq. ft.4024 Elder Lane, Tallahassee, FL 32303
MLS# 399615Listed by: PASSAGE REAL ESTATE - New
$699,000Active4 beds 4 baths3,754 sq. ft.5020 Centennial Oak Circle, Tallahassee, FL 32308
MLS# 399212Listed by: ARMOR REALTY, INC - New
$399,000Active5 beds 5 baths2,026 sq. ft.935 Dade Street, Tallahassee, FL 32304
MLS# 399394Listed by: KELLER WILLIAMS TOWN & COUNTRY - New
$427,500Active3 beds 2 baths1,535 sq. ft.193 Camellia Oaks Avenue, Tallahassee, FL 32317
MLS# 399600Listed by: THE NAUMANN GROUP REAL ESTATE - New
$195,000Active3 beds 3 baths1,280 sq. ft.2193 Timberwood Circle, Tallahassee, FL 32304
MLS# 399602Listed by: KELLER WILLIAMS TOWN & COUNTRY