333 Chula Vista Avenue, The Villages, FL 32159

Local realty services provided by:Better Homes and Gardens Real Estate Synergy
333 Chula Vista Avenue,The Villages, FL 32159
$435,000
  • 3 Beds
  • 2 Baths
  • 1,662 sq. ft.
  • Single family
  • Pending
Listed by: karen kamperman
Office: keller williams cornerstone re
MLS#:G5108498
Source:MFRMLS

Price summary

  • Price:$435,000
  • Price per sq. ft.:$175.83

About this home

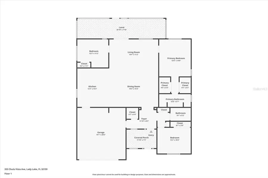
Perfectly positioned on the 3rd green of the Mera Mesa Golf Course, this beautifully appointed 3/2 Expanded Monterey Designer Home offers exceptional golf course views and luxury upgrades throughout. NO BOND, NO CDD! HVAC 2025. Only 1.2 miles to Spanish Springs Town Center and 2.5 miles to Lake Sumter Landing for dining entertainment and shopping. A screened front porch and glass storm door welcome you. Inside, you’ll find a welcoming foyer featuring a custom closet, leading to an open and split floor plan adorned with luxury vinyl plank flooring, ceiling fans with light kits, and custom closets throughout. The stunning kitchen is designed for both function and style with quartz countertops and matching backsplash, stainless steel appliances, a dual drawer dishwasher, pull-out cabinet shelves, soft-close cabinet doors, pendant lighting, and a breakfast bar. An under-sink water filtration system adds everyday convenience. The spacious master suite features custom his-and-hers walk-in...

Contact an agent

contact an agent

Yes, I would like more information. Please use and/or share my information with a BHGRE®  affiliated agent to contact me about my real estate needs. By clicking Send message, I request to be contacted by phone or text message and consent to being contacted by automated means. I understand that my consent to receive calls or texts is not a condition of purchasing any property, goods, or services. Alternatively, I understand that I can access real estate services by email or I can contact the agent myself.

If a BHGRE®  affiliated agent is not available in the area where I need assistance, I agree to be contacted by a real estate agent affiliated with another brand owned or licensed by Anywhere Real Estate (CENTURY 21® , Coldwell Banker® , Corcoran® , ERA® , Sotheby's International Realty® ).
 I acknowledge that I have read and agree to theTerms of useandPrivacy notice

Home facts

  • Year built:1993
  • Listing ID #:G5108498
  • Added:45 day(s) ago
  • Updated:April 14, 2026 at 07:51 AM

Rooms and interior

  • Bedrooms:3
  • Total bathrooms:2
  • Full bathrooms:2
  • Flooring:Luxury Vinyl
  • Kitchen Description:Dishwasher, Disposal, Microwave, Range, Refrigerator, Solid Wood Cabinets, Stone Counters, Water Filtration System
  • Bedroom Description:High Ceilings, Split Bedroom, Walk-In Closet(s)
  • Living area:1,662 sq. ft.

Heating and cooling

  • Cooling:Central Air
  • Heating:Heat Pump
  • Central air:Yes

Structure and exterior

  • Roof:Shingle
  • Year built:1993
  • Building area:1,662 sq. ft.
  • Lot area:0.12 Acres
  • Lot Features:On Golf Course
  • Architectural Style:Contemporary
  • Construction Materials:Frame, Vinyl Siding
  • Exterior Features:Awning(s), Covered Porch/Patio, Enclosed, Front Porch, Patio, Rain Gutters, Rear Porch, Sidewalk
  • Foundation Description:Slab
  • Levels:1 Story

Utilities

  • Water:Public, Water Connected
  • Sewer:Public Sewer, Sewer Connected

Finances and disclosures

  • Price:$435,000
  • Price per sq. ft.:$175.83
  • Tax amount:$2,224 (2025)

Features and amenities

  • Appliances:Dishwasher, Disposal, Dryer, Electric Water Heater, Irrigation Equipment, Microwave, Range, Refrigerator, Washer, Water Filtration System
  • Laundry features:Dryer, In Garage, Washer
  • Amenities:BB/HS Internet Available, Cable Available, Ceiling Fans(s), Fitness Center, Golf Course, High Ceilings, Irrigation Equipment, Open Floorplan, Park, Pickleball Court(s), Pool, Racquetball, Recreation Facilities, Shuffleboard Court, Solid Wood Cabinets, Split Bedroom, Stone Counters, Tennis Court(s), Walk-In Closet(s), Window Treatments
  • Pool features:Pool, Public Pool

Parking

  • Parking description:Attached Garage, Driveway, Garage Door Opener
  • Garage:Yes
  • Garage spaces:2
MLS LogoThe information being provided by Stellar Mls is for the consumer's personal, non-commercial use and may not be used for any purpose other than to identify prospective properties consumer may be interested in purchasing. Any information relating to real estate for sale referenced on this web site comes from the Internet Data Exchange (IDX) program of the Stellar Mls. Better Homes and Gardens Real Estate Synergy is not a Multiple Listing Service (MLS), nor does it offer MLS access. This website is a service of Better Homes and Gardens Real Estate Synergy, a broker participant of Stellar Mls. This web site may reference real estate listing(s) held by a brokerage firm other than the broker and/or agent who owns this web site. The accuracy of all information, regardless of source, including but not limited to open house information, square footages and lot sizes, is deemed reliable but not guaranteed and should be personally verified through personal inspection by and/or with the appropriate professionals. The data contained herein is copyrighted by Stellar Mls and is protected by all applicable copyright laws. Any unauthorized dissemination of this information is in violation of copyright laws and is strictly prohibited. Properties in listings may have been sold or may no longer be available. Copyright 2026 Stellar Mls. All rights reserved.