2100 Providence Oaks Street, Alpharetta, GA 30009
Local realty services provided by:Better Homes and Gardens Real Estate Metro Brokers
2100 Providence Oaks Street,Alpharetta, GA 30009
$750,000
- 4 Beds
- 3 Baths
- 2,628 sq. ft.
- Single family
- Pending
Listed by: alison sternfels, team 360 atl
Office: compass
MLS#:7657678
Source:FIRSTMLS
Price summary
- Price:$750,000
- Price per sq. ft.:$285.39
- Monthly HOA dues:$83.33
About this home
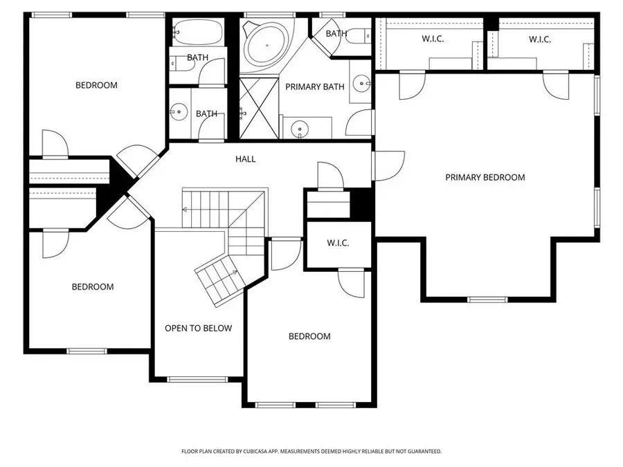
Welcome to Providence Oaks – where homes rarely come on the market! Tucked away on a quiet cul-de-sac, this 4-bedroom, 2.5-bath home offers the perfect combination of community, convenience, and comfort. Step inside to an inviting open floor plan with plenty of natural light. Gather in the spacious family room by the fireplace, enjoy casual mornings in the breakfast room, or host dinner parties in the elegant dining room. Upstairs, the oversized primary suite is a true retreat, complete with two walk-in closets and a generous bath. Three additional bedrooms provide flexibility for family, guests, or a home office. Hardwood floors on the main level add warmth and character, while the 2-car garage offers everyday practicality. Set in the highly desirable Providence Oaks swim/tennis neighborhood, this home sits just minutes from vibrant downtown Alpharetta and charming Crabapple, with top schools nearby. Whether relaxing at home, connecting with neighbors at the pool, or exploring the best of North Fulton, this property offers a lifestyle you’ll love. **Professional photos uploaded on Saturday**
Contact an agent
Home facts
- Year built:1995
- Listing ID #:7657678
- Updated:November 16, 2025 at 08:15 AM
Rooms and interior
- Bedrooms:4
- Total bathrooms:3
- Full bathrooms:2
- Half bathrooms:1
- Living area:2,628 sq. ft.
Heating and cooling
- Cooling:Ceiling Fan(s), Central Air
- Heating:Central, Forced Air
Structure and exterior
- Roof:Composition
- Year built:1995
- Building area:2,628 sq. ft.
- Lot area:0.31 Acres
Schools
- High school:Cambridge
- Middle school:Hopewell
- Elementary school:Summit Hill
Utilities
- Water:Public, Water Available
- Sewer:Public Sewer, Sewer Available
Finances and disclosures
- Price:$750,000
- Price per sq. ft.:$285.39
- Tax amount:$4,770 (2025)
New listings near 2100 Providence Oaks Street
- Coming Soon
$375,000Coming Soon3 beds 2 baths385 Birch Rill Drive, Alpharetta, GA 30022
MLS# 7680843Listed by: KELLER WILLIAMS RLTY, FIRST ATLANTA - New
$239,000Active2 beds 2 baths880 sq. ft.102 Hawkstone Way, Alpharetta, GA 30022
MLS# 10643744Listed by: Berkshire Hathaway HomeServices Georgia Properties - New
$1,250,000Active6 beds 6 baths4,203 sq. ft.1035 Lainston Court, Alpharetta, GA 30022
MLS# 7679510Listed by: PEACHTREE TOWN & COUNTRY - Coming Soon
$530,000Coming Soon2 beds 3 baths320 Snowgoose Court, Alpharetta, GA 30022
MLS# 7681176Listed by: KELLER WILLIAMS NORTH ATLANTA - New
$950,000Active4 beds 5 baths3,854 sq. ft.116 Britten Pass, Alpharetta, GA 30009
MLS# 7681480Listed by: KELLER WILLIAMS REALTY ATL NORTH - New
$975,000Active3 beds 4 baths2,648 sq. ft.11640 Folia Circle, Alpharetta, GA 30005
MLS# 7681516Listed by: ANSLEY REAL ESTATE| CHRISTIE'S INTERNATIONAL REAL ESTATE - Coming Soon
$1,799,000Coming Soon7 beds 8 baths2853 Stirling Ridge Court, Alpharetta, GA 30004
MLS# 7681355Listed by: KFORTUNA REALTY SOUTH, INC. - New
$349,900Active2 beds 3 baths1,488 sq. ft.2640 Holcomb Springs Drive, Alpharetta, GA 30022
MLS# 7680825Listed by: COMPASS - New
$849,900Active5 beds 4 baths3,878 sq. ft.1585 Spinnaker Drive, Alpharetta, GA 30005
MLS# 7681186Listed by: ATLANTA FINE HOMES SOTHEBY'S INTERNATIONAL - New
$875,000Active4 beds 4 baths3,366 sq. ft.14440 Cogburn Road, Alpharetta, GA 30004
MLS# 7678196Listed by: ATLANTA FINE HOMES SOTHEBY'S INTERNATIONAL