15 Hopkins Street Se, Atlanta, GA 30315

Local realty services provided by:Better Homes and Gardens Real Estate Metro Brokers
15 Hopkins Street Se,Atlanta, GA 30315
$95,000
  • 0.12 Acres
  • Lots / Land
  • Active
Listed by: sami mekonnen
Office: epique realty
MLS#:7748701
Source:FIRSTMLS

Price summary

  • Price:$95,000

About this home

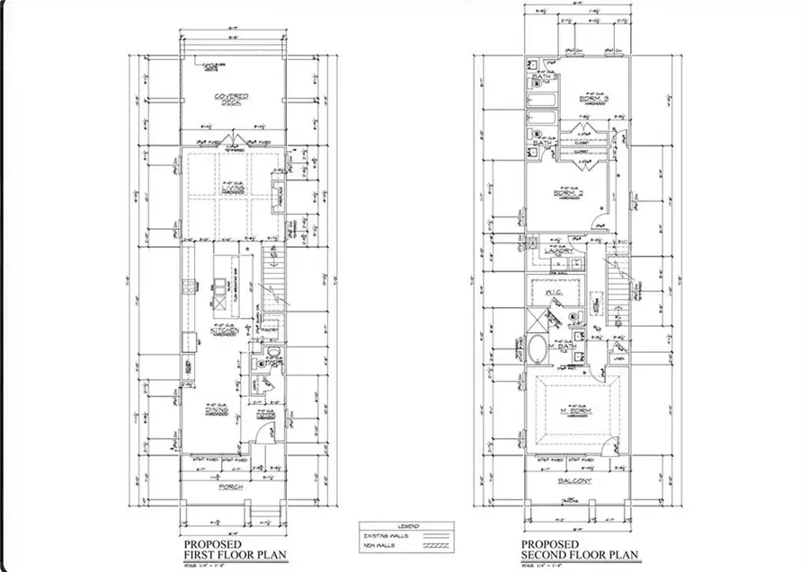
Great opportunity to build a well-designed new construction home in a growing area of Atlanta. This oversized lot is being offered with plans for a ~2,200+ square foot residence, featuring a practical two-story layout with 3 bedrooms, open-concept living space, and multiple outdoor areas including a front porch, rear deck, and private balcony. The design is efficient and market-driven, offering a clear path for a straightforward build with strong resale potential. With additional lot size and rear alley access, the property provides flexibility for site layout and parking—an advantage that supports both functionality and long-term value. Conveniently located near downtown Atlanta, major highways, and ongoing redevelopment, this is a solid opportunity for builders or investors looking for a clean, executable project.

Contact an agent

contact an agent

Yes, I would like more information. Please use and/or share my information with a BHGRE®  affiliated agent to contact me about my real estate needs. By clicking Send message, I request to be contacted by phone or text message and consent to being contacted by automated means. I understand that my consent to receive calls or texts is not a condition of purchasing any property, goods, or services. Alternatively, I understand that I can access real estate services by email or I can contact the agent myself.

If a BHGRE®  affiliated agent is not available in the area where I need assistance, I agree to be contacted by a real estate agent affiliated with another brand owned or licensed by Anywhere Real Estate (CENTURY 21® , Coldwell Banker® , Corcoran® , ERA® , Sotheby's International Realty® ).
 I acknowledge that I have read and agree to theTerms of useandPrivacy notice

Home facts

  • Listing ID #:7748701
  • Updated:April 23, 2026 at 07:46 PM

Structure and exterior

  • Lot area:0.12 Acres

Schools

  • High school:G.W. Carver
  • Middle school:Judson Price
  • Elementary school:Thomas Heathe Slater

Utilities

  • Water:Water Available

Finances and disclosures

  • Price:$95,000
  • Tax amount:$1,052 (2025)
MLS LogoListings identified with the FMLS IDX logo come from FMLS and are held by brokerage firms other than the owner of this website. The listing brokerage is identified in any listing details. Information is deemed reliable but is not guaranteed. If you believe any FMLS listing contains material that infringes your copyrighted work please click here (https://www.fmls.com/dmca) to review our DMCA policy and learn how to submit a takedown request. ©2026 First Multiple Listing Service, Inc.