186 Lake Drive, Atlanta, GA 30340
Local realty services provided by:Better Homes and Gardens Real Estate Metro Brokers
186 Lake Drive,Atlanta, GA 30340
$440,000
- - Beds
- - Baths
- - sq. ft.
- Multi-family
- Active
Listed by: rhonda duffy678-318-3613
Office: duffy realty of atlanta
MLS#:7670150
Source:FIRSTMLS
Price summary
- Price:$440,000
About this home
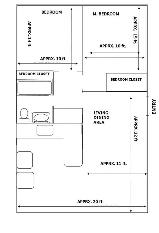
|| FULLY LEASED DUPLEX || || LONG-TERM TENANTS THROUGH MID-2027 || || STRONG CASH FLOW || || CONVENIENT LOCATION || || NO HOA & NO RENT RESTRICTIONS || 1700 SQ FT || || 2/1 ON EACH SIDE || || SELLER WILL SELL 2 DUPLEXES (186 & 188 Lake Dr) for 868,000!! || NEW ROOF NEGOTIABLE ||
** What You'll See ** A SOLID BRICK DUPLEX standing strong since 1961, freshly updated with modern touches and clean curb appeal. You'll notice TWO SEPARATE DRIVEWAYS, each leading to its own private entrance and fenced backyard ideal for privacy and low-maintenance living. Step inside and see the durability of LVP AND TILE FLOORING throughout, paired with ORIGINAL TILE BATHS that offer character and longevity. The lot's 0.24 ACRES provide just enough outdoor space for tenants to enjoy, while the STORAGE SHEDS in the carports add practical value and organization. ** What You'll Hear ** From this central Doraville location, you'll hear the hum of a thriving community neighborhood sounds, friendly chatter, and the occasional passing train connecting you to the pulse of Atlanta just minutes away. The nearby I-285 and I-85 corridors keep the city within easy reach, yet the residential setting allows for a quieter, more stable environment where tenants stay long-term and investors enjoy steady, predictable income. ** What You'll Feel ** Feel the confidence of owning a TURNKEY INVESTMENT that's already producing $2,740 PER MONTH in gross rent with tenants locked in through mid-2027. You'll appreciate the peace of mind that comes from well-maintained interiors. This property feels balanced dependable income today with room to grow equity tomorrow through thoughtful updates or future rent increases. ** What You'll Experience ** Experience the satisfaction of smart ownership in a rapidly appreciating area with an ATLANTA ADDRESS and Gwinnett County taxes. You'll enjoy a sense of momentum stable returns now, long-term upside ahead, and a portfolio strengthened by a property that performs. Whether you're an experienced investor or just expanding your holdings, this DORAVILLE DUPLEX offers a reliable, income-producing opportunity in one of metro Atlanta's most convenient, connected neighborhoods. ** Recent sale of a similar property by the same owner supports the current list price. Strong comparable value established. Due diligence is for informational purposes only, as the home is being sold As-Is. See disclosures for all the information needed. Showings will only occur after an offer has been presented. Cap on seller-paid closing costs of $6000. **
Contact an agent
Home facts
- Year built:1961
- Listing ID #:7670150
- Updated:February 14, 2026 at 02:30 PM
Heating and cooling
- Heating:Forced Air
Structure and exterior
- Roof:Composition
- Year built:1961
- Lot area:0.24 Acres
Schools
- High school:Norcross
- Middle school:Summerour
- Elementary school:Stripling
Utilities
- Water:Public
- Sewer:Public Sewer
Finances and disclosures
- Price:$440,000
- Tax amount:$4,361 (2024)
New listings near 186 Lake Drive
$409,000Active6 beds 3 baths3,975 sq. ft.2645 Brandon Road, Atlanta, GA 30337
MLS# 7711078Listed by: FATHOM REALTY GA, LLC- Coming Soon
$299,900Coming Soon6 beds 3 baths1643 Mary George Avenue Nw, Atlanta, GA 30318
MLS# 7719567Listed by: KELLER WILLIAMS REALTY METRO ATLANTA - Coming Soon
$299,900Coming Soon6 beds 3 baths1643 Mary George Avenue Nw, Atlanta, GA 30318
MLS# 10691806Listed by: Keller Williams Realty - New
$300,000Active3 beds 2 baths1,623 sq. ft.159 Elysian Way Nw, Atlanta, GA 30327
MLS# 10691799Listed by: Keller Williams Atlanta Midtown
$294,900Pending2 beds 2 baths1,160 sq. ft.3777 Peachtree Road Ne #1338, Atlanta, GA 30319
MLS# 7625917Listed by: KELLER WILLIAMS REALTY CHATTAHOOCHEE NORTH, LLC- New
$236,000Active1 beds 1 baths1,015 sq. ft.1468 Briarwood Road Ne #602, Atlanta, GA 30319
MLS# 7718102Listed by: KELLER WILLIAMS REALTY METRO ATLANTA - New
$899,000Active4 beds 3 baths3,155 sq. ft.955 Landmark Drive, Atlanta, GA 30342
MLS# 10691779Listed by: Avenues & Acres Real Estate - New
$199,500Active2 beds 2 baths1,092 sq. ft.2539 Bradford Square Ne, Atlanta, GA 30345
MLS# 7718162Listed by: AXEN REALTY, LLC - Coming Soon
$1,399,900Coming Soon2 beds 2 baths2660 Peachtree Road Nw #6H, Atlanta, GA 30305
MLS# 7718585Listed by: BEACHAM AND COMPANY - New
$375,000Active1 beds 3 baths1,275 sq. ft.3670 Ashford Creek View Ne #1204, Atlanta, GA 30319
MLS# 7719448Listed by: SELLECT REALTY OF GEORGIA, LLC.