262 Estoria Street, Atlanta, GA 30316
Local realty services provided by:Better Homes and Gardens Real Estate Metro Brokers
262 Estoria Street,Atlanta, GA 30316
$319,900
- 0.06 Acres
- Lots / Land
- Active
Listed by: chad polazzo, catherine beadles
Office: remax metro atlanta cityside
MLS#:7702759
Source:FIRSTMLS
Price summary
- Price:$319,900
About this home
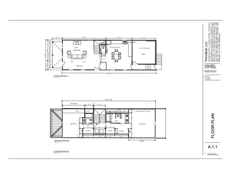
RARE CABBAGETOWN VACANT LOT - Thanks for your interest in this developed ready-to-build lot in the heart of Cabbagetown on Estoria Street. Set atop a hill overlooking the city with rear alley access, the lot is cleared, has new brick sidewalks and granite curbs, a new sewer tap, a brand new retaining wall and architectural plans for a 1960sf 2/2.5 home that is fully approved with the Urban Design Commisison and the Cabbagetown Historic Association. All a new owner needs to do is submit construction plans for final building permit at the City of Atlanta which is a straight-forward and simple process that takes 4-6 weeks. The property has approximately $50,000 of cash invested in the required sidewalks, granite curbs, sewer taps, retaining walls, surveys, architectural plans, and permitting costs. Add to that the year+ of hard work to get to the point where the homes is through the hard part of the permitting process. The value of the home, once built, will be ~1M so this is a low risk and high reward opportunity to build a dream home or to have a profitable investment project in one of the best and most central historic neighborhoods in the city....
Contact an agent
Home facts
- Listing ID #:7702759
- Updated:April 25, 2026 at 01:28 PM
Rooms and interior
- Bedrooms:2
- Total bathrooms:3
- Full bathrooms:2
- Half bathrooms:1
Structure and exterior
- Lot area:0.06 Acres
- Levels:2 Story
Schools
- High school:Maynard Jackson
- Middle school:Martin L. King Jr.
- Elementary school:Parkside
Finances and disclosures
- Price:$319,900
New listings near 262 Estoria Street
- Coming Soon
$650,000Coming Soon3 beds 3 baths2139 Mauldin St Nw, Atlanta, GA 30318
MLS# 10741125Listed by: Keller Williams Realty Buckhead - New
$2,995,000Active5 beds 8 baths9,000 sq. ft.82 Blackland Road Nw, Atlanta, GA 30342
MLS# 7759535Listed by: HOME LUXURY REAL ESTATE - New
$482,000Active3 beds 2 baths1,376 sq. ft.11 Walthall Street Se, Atlanta, GA 30317
MLS# 7759505Listed by: NORLUXE REALTY ATLANTA - New
$375,000Active3 beds 4 baths1,326 sq. ft.1232 Liberty Parkway Nw, Atlanta, GA 30318
MLS# 7759527Listed by: ATLANTA FINE HOMES SOTHEBY'S INTERNATIONAL - Coming Soon
$1,250,000Coming Soon4 beds 3 baths3902 Peachtree Dunwoody Road Ne, Atlanta, GA 30342
MLS# 7759550Listed by: KELLER WILLIAMS REALTY ATL PERIMETER - New
$325,000Active3 beds 2 baths1,559 sq. ft.2074 Morehouse Drive, Atlanta, GA 30314
MLS# 7759553Listed by: KELLER WILLIAMS REALTY METRO ATLANTA - New
$280,000Active4 beds 2 baths2,590 sq. ft.2892 Keats Drive Sw, Atlanta, GA 30311
MLS# 7759568Listed by: OPENDOOR BROKERAGE, LLC - New
$59,654Active0.73 Acres3114 Lovell Drive, Atlanta, GA 30311
MLS# 10741066Listed by: Keller Williams Realty Atl. Partners - New
$420,000Active2 beds 2 baths2,242 sq. ft.244 Peters Street #5, Atlanta, GA 30313
MLS# 10741093Listed by: Ansley RE | Christie's Int'l RE - New
$625,000Active3 beds 3 baths3,000 sq. ft.3648 Peachtree Road #4S, Atlanta, GA 30319
MLS# 7759547Listed by: CHAPMAN HALL REALTORS