4230 Hollywood Hwy, Clarkesville, GA 30523
Local realty services provided by:Better Homes and Gardens Real Estate Jackson Realty
4230 Hollywood Hwy,Clarkesville, GA 30523
$243,825
- 3.25 Acres
- Lots / Land
- Active
Listed by: wade rhodes706-968-8335, wrhodes@gonorton.com
Office: the norton agency
MLS#:10613491
Source:METROMLS
Price summary
- Price:$243,825
About this home
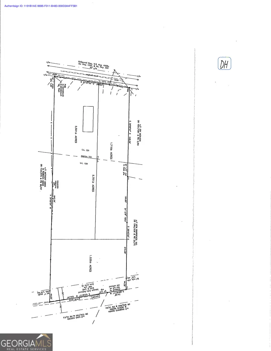
3.25+/- acres of commercial property zoned HI with potential to be split into two lots. Perfect for office/warehouse space or bring your own vision. Excellent road frontage on front lot with high visibility. Lot 1 is 1.716 acres facing Hollywood HWY. Lot 2 is 1.535 acres on back of property. Level lot on front and gently sloping to the back. Lot 2 was part of an old asbestos mine. Lots can be purchased together or separate. Property is part of a larger piece referenced on tax parcel. A new Survey to be prepared prior to closing.
Contact an agent
Home facts
- Listing ID #:10613491
- Updated:February 25, 2026 at 11:42 AM
Structure and exterior
- Lot area:3.25 Acres
Schools
- High school:Habersham Central
- Middle school:North Habersham
- Elementary school:Woodville
Utilities
- Water:Public
- Sewer:Septic Tank
Finances and disclosures
- Price:$243,825
New listings near 4230 Hollywood Hwy
- New
$456,000Active4 beds 3 baths3,300 sq. ft.182 Hardman Road, Clarkesville, GA 30523
MLS# 10697617Listed by: Virtual Properties Realty.com - New
$299,900Active2 beds 1 baths1,120 sq. ft.152 Russ Circle, Clarkesville, GA 30523
MLS# 10697527Listed by: Keller Williams Lanier Partners - New
$3,695,000Active5 beds 6 baths4,127 sq. ft.814 Summit Ridge, Clarkesville, GA 30523
MLS# 10696235Listed by: Burton Rabun Real Estate Co. - New
$425,000Active3 beds 2 baths2,076 sq. ft.142 N Quail Trail, Clarkesville, GA 30523
MLS# 10696090Listed by: Keller Williams Realty Atl. Partners - New
$429,900Active3 beds 3 baths3,128 sq. ft.416 Liberty Creek Drive, Clarkesville, GA 30523
MLS# 10694936Listed by: Keller Williams Lanier Partners - New
$2,600,000Active1.04 Acres1284 Washington Street, Clarkesville, GA 30523
MLS# 10693501Listed by: Century 21 Community Realty - New
$425,000Active3 beds 3 baths2,310 sq. ft.260 Bartley Wilbanks Road, Clarkesville, GA 30523
MLS# 10693280Listed by: Keller Williams Lanier Partners - New
$125,000Active1.78 Acres0 Lot #6a23 Pippin Circle, Clarkesville, GA 30523
MLS# 10693088Listed by: Poss Realty - New
$1,380,000Active5 beds 4 baths4,482 sq. ft.505 River Ridge Road, Clarkesville, GA 30523
MLS# 10693125Listed by: BHHS Georgia Properties - New
$14,000Active0.6 Acres0 Crabapple Road, Clarkesville, GA 30523
MLS# 10692712Listed by: The Twiggs Realty