1904 William Glen Street, Dacula, GA 30019
Local realty services provided by:Better Homes and Gardens Real Estate Metro Brokers
1904 William Glen Street,Dacula, GA 30019
$413,043
- 3 Beds
- 3 Baths
- 1,883 sq. ft.
- Single family
- Active
Listed by: samantha pino, shirley gary
Office: ansley re|christie's int'l re
MLS#:10628221
Source:METROMLS
Price summary
- Price:$413,043
- Price per sq. ft.:$219.35
- Monthly HOA dues:$125
About this home
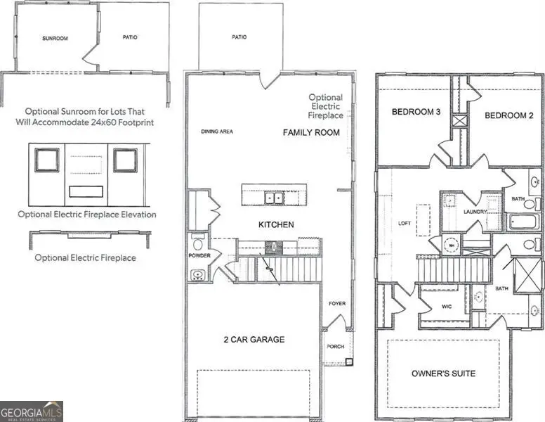
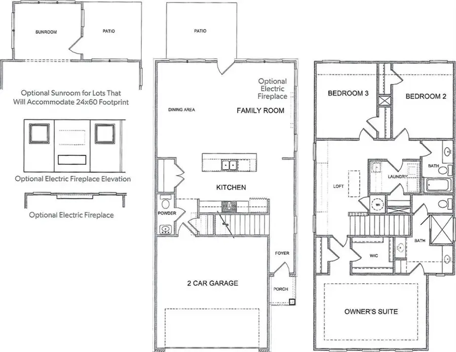
Welcome to The Enclave at Mill Creek - a charming new neighborhood nestled in the heart of Mulberry (formerly known as Dacula), proudly built by Cowart Residential. Located in the highly sought-after Mill Creek School District, this community offers both quality and convenience. The Emerson Plan is a stylish and well-designed new construction home featuring 3 bedrooms, 2.5 bathrooms, and a bright sunroom that's perfect for relaxing in natural light. The main floor features an open-concept layout with a spacious family room complete with an electric fireplace, a sleek, modern kitchen with high-end appliances, and a dining space ideal for entertaining. Upstairs, you'll find a serene owner's suite with a walk-in closet and a luxurious private bathroom. Two additional bedrooms, a full bath, and a flexible loft area provide plenty of room for family, guests, or a home office. With a two-car garage and yard maintenance covered by the HOA, you'll enjoy low-maintenance living in a beautifully kept environment. Combining comfort, functionality, and contemporary style, this home is designed for easy living in a vibrant new community....
Contact an agent
Home facts
- Year built:2025
- Listing ID #:10628221
- Updated:April 24, 2026 at 10:52 AM
Rooms and interior
- Bedrooms:3
- Total bathrooms:3
- Full bathrooms:2
- Half bathrooms:1
- Kitchen Description:Breakfast Bar, Dishwasher, Disposal, Microwave
- Living area:1,883 sq. ft.
Heating and cooling
- Cooling:Ceiling Fan(s), Central Air, Electric, Zoned
- Heating:Central, Electric, Zoned
- Central air:Yes
Structure and exterior
- Roof:Composition
- Year built:2025
- Building area:1,883 sq. ft.
- Lot area:0.06 Acres
- Architectural Style:Contemporary
- Construction Materials:Brick
- Foundation Description:Slab
- Levels:2 Story
Schools
- High school:Mill Creek
- Middle school:Frank N Osborne
- Elementary school:Fort Daniel
Utilities
- Water:Public
- Sewer:Public Sewer, Sewer Available
Finances and disclosures
- Price:$413,043
- Price per sq. ft.:$219.35
Features and amenities
- Appliances:Dishwasher, Disposal, Microwave
- Laundry features:In Hall, Upper Level
- Amenities:Carbon Monoxide Detector(s), Double Pane Windows
Parking
- Total parking spaces:2
- Parking description:Garage
- Garage:Yes
New listings near 1904 William Glen Street
- New
$350,000Active2 beds 2 baths641 Wood Hill Drive, Dacula, GA 30019
MLS# 7758903Listed by: KELLER WILLIAMS REALTY ATLANTA PARTNERS - New
$369,000Active3 beds 3 baths1,820 sq. ft.475 Tanner Road, Dacula, GA 30019
MLS# 7758457Listed by: AGENTS REALTY, LLC - Coming Soon
$485,000Coming Soon4 beds 3 baths3038 Stockbridge Way, Dacula, GA 30019
MLS# 10739662Listed by: RE/MAX Center - Coming Soon
$415,000Coming Soon4 beds 3 baths2818 Stockbridge Way, Dacula, GA 30019
MLS# 10739285Listed by: Mark Spain Real Estate
$1,100,000Active4 beds 6 baths5,321 sq. ft.3063 Bold Springs Road, Dacula, GA 30019
MLS# 7683033Listed by: KELLER WILLIAMS REALTY COMMUNITY PARTNERS- New
$850,000Active6 beds 6 baths6,935 sq. ft.1173 Forest Crest Court, Dacula, GA 30019
MLS# 7758294Listed by: KELLER WILLIAMS REALTY ATLANTA PARTNERS - New
$400,000Active4 beds 3 baths2,220 sq. ft.1529 Riesling Drive, Dacula, GA 30019
MLS# 7708212Listed by: EXTOL REALTY - Coming Soon
$415,000Coming Soon4 beds 3 baths2818 Stockbridge Way, Dacula, GA 30019
MLS# 7758207Listed by: MARK SPAIN REAL ESTATE - New
$618,000Active4 beds 4 baths4,909 sq. ft.1400 Mill Place Drive, Dacula, GA 30019
MLS# 7758154Listed by: KELLER WILLIAMS REALTY ATL PARTNERS - New
$439,000Active4 beds 2 baths2,515 sq. ft.2513 Carleton Gold Road, Dacula, GA 30019
MLS# 7758098Listed by: EXTOL REALTY