39 Floating Leaf Way, Dallas, GA 30132
Local realty services provided by:Better Homes and Gardens Real Estate Jackson Realty
39 Floating Leaf Way,Dallas, GA 30132
$486,700
- 5 Beds
- 4 Baths
- 3,424 sq. ft.
- Single family
- Active
Listed by: nicole france
Office: re/max center
MLS#:10651085
Source:METROMLS
Price summary
- Price:$486,700
- Price per sq. ft.:$142.14
- Monthly HOA dues:$70
About this home
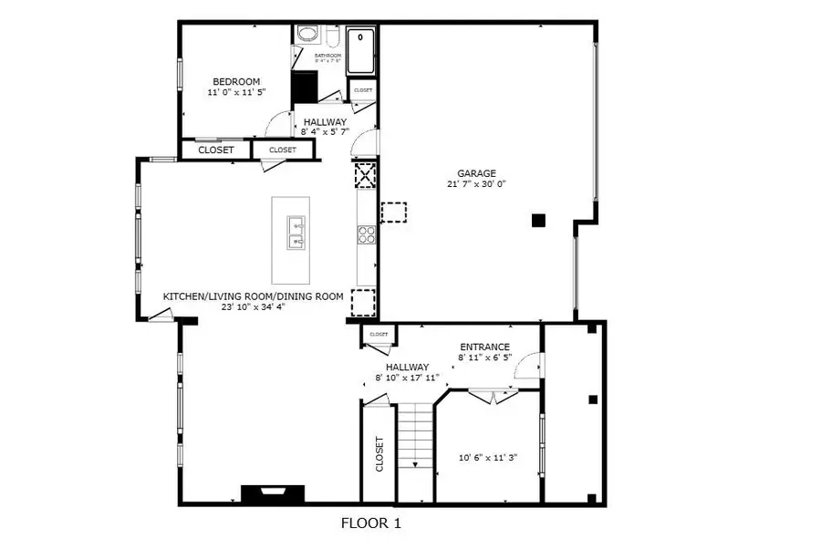
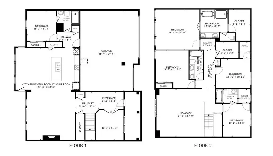
Back on Market - No Fault of Seller - Clean Inspection Report! Welcome to 39 Floating Leaf Way - Modern Comfort in the Heart of Edenwood! Set within the sought-after Edenwood community in North Paulding, this beautiful 5-bedroom, 4-bath Craftsman-style home blends classic charm with modern functionality. Built in 2017 and offering over 3,400 square feet of living space, this home has the perfect layout for today's lifestyle - with a full guest suite and bath on the main level and four additional bedrooms plus three full baths upstairs. Step inside and immediately feel at home in the light-filled foyer with hardwood floors and elegant trim details. A private office with French doors sits just off the entry, ideal for remote work or quiet study. The open-concept design flows seamlessly into a spacious family room featuring custom built-ins, a gas fireplace, and oversized windows that fill the space with natural light and serene backyard views. At the heart of the home, the chef's kitchen impresses with granite countertops, a large center island with bar seating, stainless-steel appliances, double ovens, gas cooktop, white cabinetry, and a subway tile backsplash. The kitchen opens to the family room and dining area, creating the perfect gathering space for family and friends. Upstairs, a generous loft area offers a flexible secondary living space - great for a playroom, media room, or lounge. The primary suite is a peaceful retreat with a tray ceiling, spacious layout, and spa-inspired bath featuring dual vanities, a soaking tub, separate glass-enclosed shower, and access to a large walk-in closet. Three additional upstairs bedrooms each feature ample closet space and easy access to two full baths. Step outside to a private, fenced backyard with a patio seating area, perfect for entertaining, outdoor dining, or simply enjoying Georgia's sunny days. The level yard offers plenty of room to play, garden, or unwind in your own outdoor retreat. Located in Edenwood, one of Dallas's most desirable communities, residents enjoy resort-style amenities including: A beautiful clubhouse with gathering areas Multiple swimming pools, including a splash pad and water slides Lighted tennis and pickleball courts Playgrounds, parks, and walking trails Fitness center, green spaces, and community events Zoned for highly rated North Paulding schools - Burnt Hickory Elementary, Sammy McClure Middle, and North Paulding High - this home offers the ideal blend of community, convenience, and comfort. You'll love being minutes from shopping, dining, and recreation along Cedarcrest Road and Highway 41, with easy access to Acworth, Cartersville, LakePoint Sports Complex, and Downtown Dallas. Whether you're hosting friends, working from home, or relaxing at the end of the day, 39 Floating Leaf Way delivers the perfect balance of space, style, and lifestyle in a location you'll love to call home....
Contact an agent
Home facts
- Year built:2017
- Listing ID #:10651085
- Updated:April 01, 2026 at 01:03 AM
Rooms and interior
- Bedrooms:5
- Total bathrooms:4
- Full bathrooms:4
- Flooring:Carpet, Hardwood
- Kitchen Description:Breakfast Area, Dishwasher, Disposal, Double Oven, Kitchen Island, Pantry, Solid Surface Counters
- Living area:3,424 sq. ft.
Heating and cooling
- Cooling:Ceiling Fan(s), Central Air
- Heating:Forced Air, Heat Pump
- Central air:Yes
Structure and exterior
- Roof:Composition
- Year built:2017
- Building area:3,424 sq. ft.
- Lot area:0.25 Acres
- Lot Features:Level, Private
- Architectural Style:Craftsman
- Construction Materials:Brick, Concrete
- Exterior Features:Deck/Patio
- Levels:2 Story
Schools
- High school:North Paulding
- Middle school:McClure
- Elementary school:Burnt Hickory
Utilities
- Water:Public, Water Available
- Sewer:Public Sewer, Sewer Available
Finances and disclosures
- Price:$486,700
- Price per sq. ft.:$142.14
- Tax amount:$5,143 (2024)
Features and amenities
- Appliances:Dishwasher, Disposal, Double Oven
- Laundry features:Laundry, Upper Level
- Amenities:Bookcases, Double Pane Windows, Smoke Detector(s)
Parking
- Total parking spaces:3
- Parking description:Garage, Garage Door Opener, Kitchen Level
- Garage:Yes
New listings near 39 Floating Leaf Way
- New
$551,603Active3 beds 2 baths2,132 sq. ft.108 Mill Chase Drive, Dallas, GA 30157
MLS# 10722034Listed by: Weekley Homes Realty - New
$587,744Active3 beds 3 baths2,310 sq. ft.120 Millbury Lane, Dallas, GA 30157
MLS# 10722043Listed by: Weekley Homes Realty - New
$695,000Active5 beds 4 baths2,679 sq. ft.80 Windchase Court, Dallas, GA 30132
MLS# 10722090Listed by: Outlook Realty - New
$220,000Active3 beds 1 baths960 sq. ft.7931 Cartersville Highway, Dallas, GA 30132
MLS# 10722092Listed by: Bolst, Inc. - New
$485,990Active4 beds 3 baths2,888 sq. ft.34 Park Village Bend, Dallas, GA 30157
MLS# 7744809Listed by: HMS REAL ESTATE LLC - New
$100,000Active3 beds 2 baths1,248 sq. ft.6964 Buchanan Highway, Dallas, GA 30157
MLS# 10722018Listed by: Peaches To Beaches Realty - New
$285,000Active3 beds 2 baths1,322 sq. ft.207 Johnny Lane, Dallas, GA 30132
MLS# 10721950Listed by: eXp Realty - New
$400,000Active3 beds 3 baths1,821 sq. ft.22 Arbor Oak Place, Dallas, GA 30132
MLS# 7744253Listed by: ATLANTA COMMUNITIES REAL ESTATE BROKERAGE - New
$356,000Active4 beds 3 baths2,212 sq. ft.114 Tannin Court, Dallas, GA 30132
MLS# 10721906Listed by: Opendoor Brokerage - New
$1,298,000Active3 beds 3 baths3,514 sq. ft.75 Star Wars Path, Dallas, GA 30132
MLS# 10721663Listed by: Garrett Land Company