4981 Lake Drive, Forest Park, GA 30297
Local realty services provided by:Better Homes and Gardens Real Estate Metro Brokers
4981 Lake Drive,Forest Park, GA 30297
$959,900
- 4 Beds
- 5 Baths
- 4,473 sq. ft.
- Single family
- Active
Listed by: tamara robertshodges, jeffery robinson sr.
Office: the commission luxury group llc.
MLS#:7727861
Source:FIRSTMLS
Price summary
- Price:$959,900
- Price per sq. ft.:$214.6
About this home
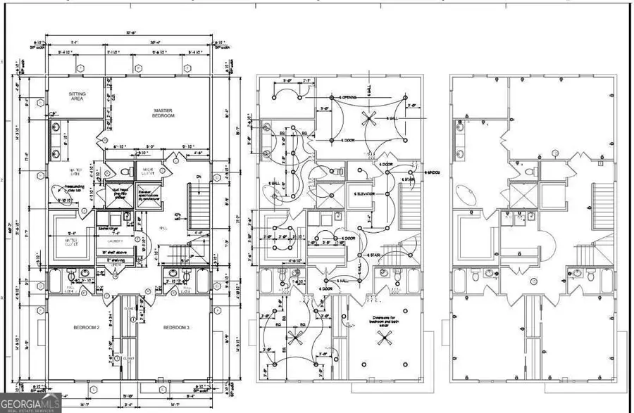
Welcome to Parkview Place, an exclusive gated enclave of just eight luxury residences in Forest Park, Georgia. Thoughtfully designed with
modern architecture and elevated finishes, each home offers the same spacious floor plan featuring 4 bedrooms and 4.5 bathrooms across
three beautifully appointed levels. With secure online and mobile access to the gated entrance, this private community blends convenience,
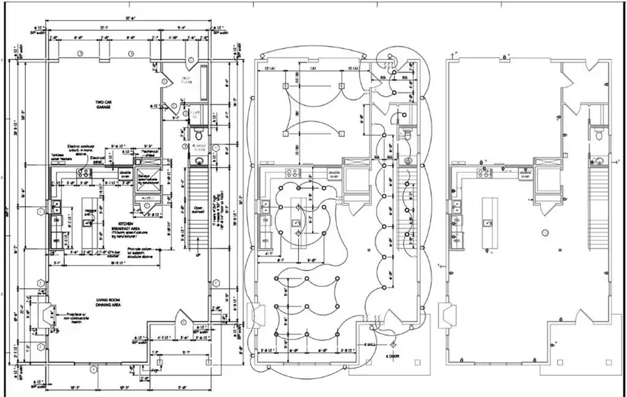
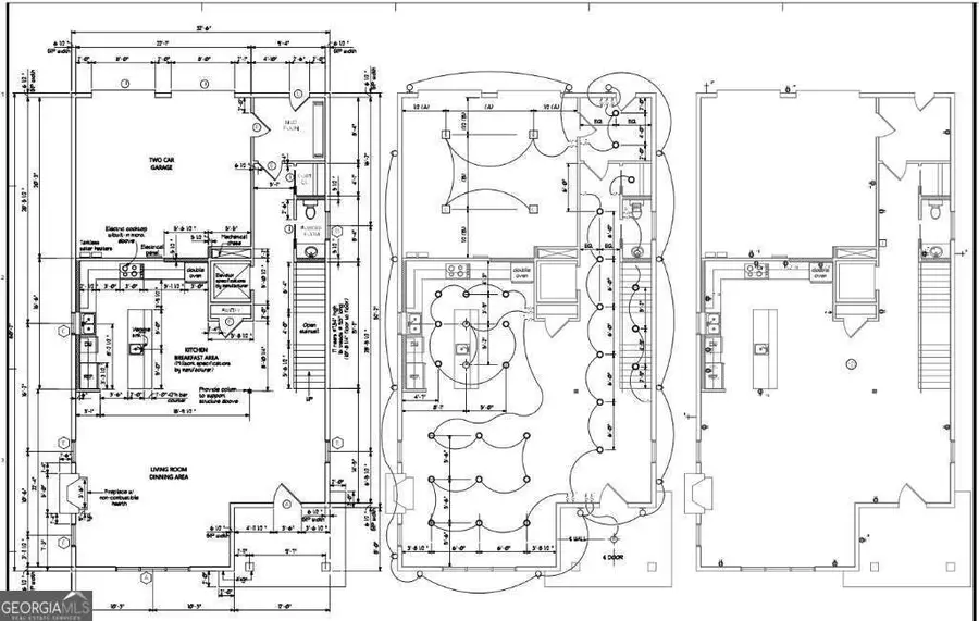
sophistication, and low-maintenance living. The first level showcases a beautifully appointed kitchen designed for both everyday living and
entertaining, serving as the central gathering space of the home. This level also provides access to the two-car garage and offers seamless
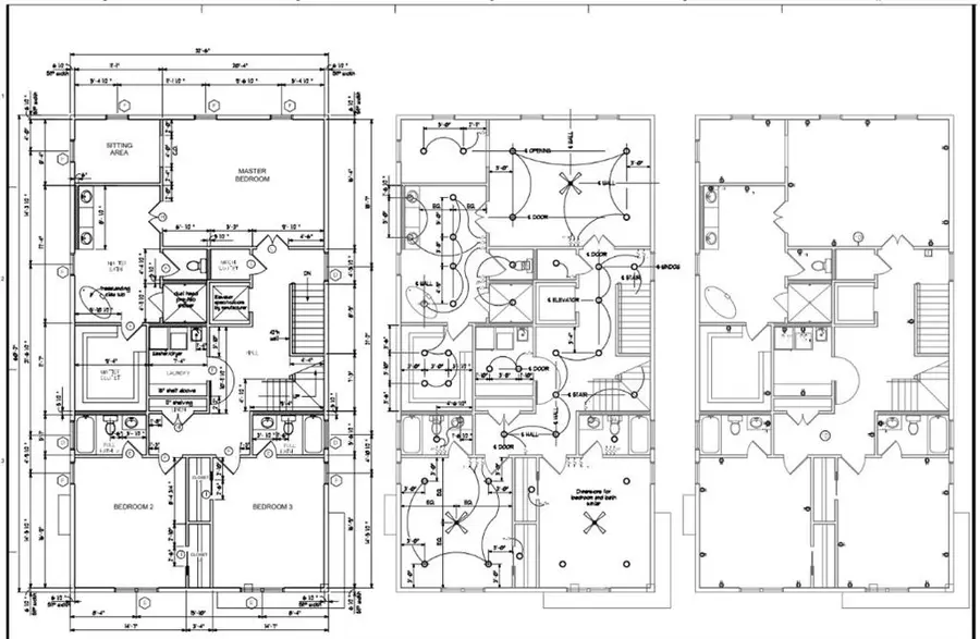
flow for modern living. The second level features three spacious bedrooms and three full bathrooms, thoughtfully designed to provide
comfort and privacy for family or guests. Well-proportioned suites and functional layout create flexible living options to meet a variety of
needs. Every residence includes a standard elevator servicing all levels, offering seamless accessibility and added luxury. The top level is
dedicated to elevated entertaining and relaxation. This floor features a private bedroom suite, an entertainment space complete with a
mini bar, and direct access to the rooftop outdoor deck with sleek glass railing. The rooftop retreat extends your living space outdoors and
provides the perfect setting for entertaining or enjoying peaceful evenings above it all. Designed with efficiency and long-term comfort in
mind, each home features two tankless water heaters, a dedicated A/C unit for every floor, and a solar energy system with solar panels
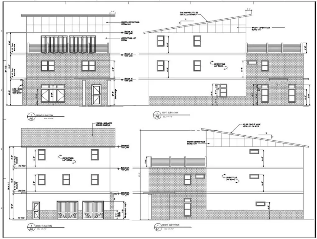
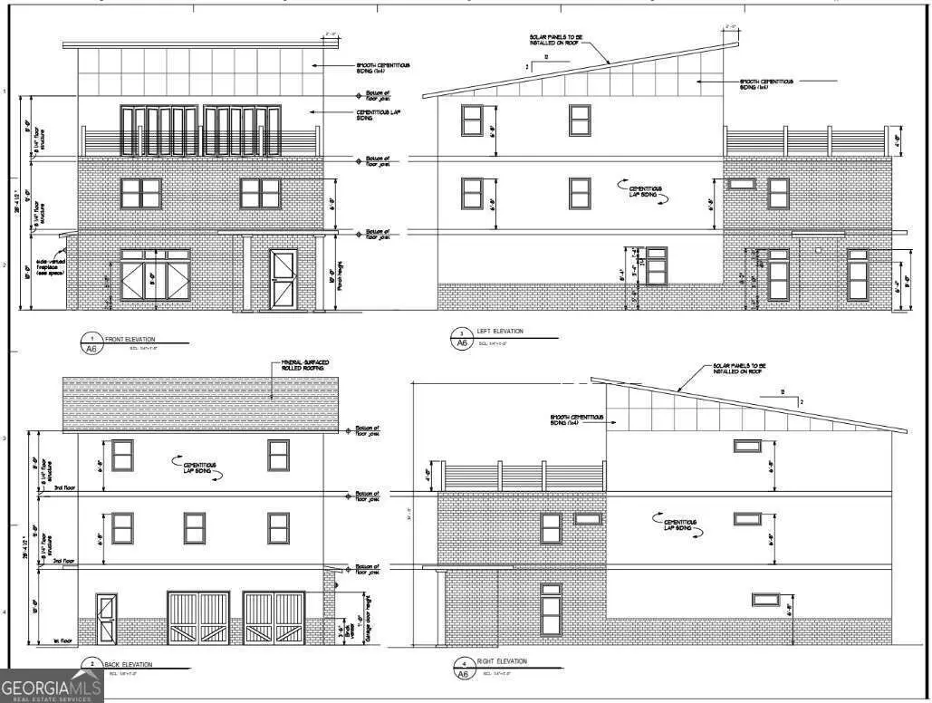
already installed. The striking exterior showcases a sophisticated 50/50 blend of brick and Hardie Plank siding, complemented by steel
front and rear doors and a built-in sprinkler system. The HOA provides landscaping, street lighting, and maintenance of the gated
entrance, ensuring a well-maintained and secure environment. Ideally located just minutes from Hartsfield-Jackson Atlanta International
Airport, Downtown Atlanta, and the Porsche Experience Center Atlanta, Parkview Place offers unmatched access to major highways,
business hubs, dining, and entertainment while maintaining a sense of privacy and exclusivity. Experience modern luxury living in one of
Forest Park’s newest and most distinctive gated communities....
Contact an agent
Home facts
- Year built:2026
- Listing ID #:7727861
- Updated:April 25, 2026 at 01:28 PM
Rooms and interior
- Bedrooms:4
- Total bathrooms:5
- Full bathrooms:4
- Half bathrooms:1
- Flooring:Ceramic Tile, Hardwood
- Dining Description:Open Concept
- Bathrooms Description:Double Vanity, Separate Tub/Shower, Soaking Tub
- Kitchen Description:Disposal, Double Oven, Electric Cooktop, Kitchen Island, Pantry Walk-In, Refrigerator, Stone Counters, View to Family Room
- Bedroom Description:Oversized Master, Sitting Room
- Living area:4,473 sq. ft.
Heating and cooling
- Cooling:Ceiling Fan(s), Central Air
- Heating:Central
- Central air:Yes
Structure and exterior
- Roof:Shingle
- Year built:2026
- Building area:4,473 sq. ft.
- Lot area:0.9 Acres
- Lot Features:Level
- Architectural Style:Traditional
- Construction Materials:HardiPlank Type
- Exterior Features:Balcony, Rooftop
- Levels:3+ Story
Schools
- High school:Forest Park
- Middle school:Babb
- Elementary school:Fountain
Utilities
- Water:Public, Water Available
- Sewer:Public Sewer, Sewer Available
Finances and disclosures
- Price:$959,900
- Price per sq. ft.:$214.6
Features and amenities
- Laundry features:Laundry Room, Mud Room
- Amenities:Elevator, High Ceilings 10 ft Main, High Ceilings 9 ft Lower, High Ceilings 9 ft Upper, Smart Home, Tankless Water Heater, Walk-In Closet(s)
Parking
- Parking description:Garage, Garage Faces Rear
- Garage spaces:2
New listings near 4981 Lake Drive
- New
$238,000Active3 beds 1 baths1,012 sq. ft.837 Northview Drive, Forest Park, GA 30297
MLS# 10740816Listed by: Mainstay Brokerage - New
$189,000Active3 beds 2 baths952 sq. ft.4681 City View Drive, Forest Park, GA 30297
MLS# 7756499Listed by: MARK SPAIN REAL ESTATE - New
$165,000Active3 beds 1 baths1,850 sq. ft.820 Vintonwoods Drive, Forest Park, GA 30297
MLS# 7757236Listed by: KELLER WMS RE ATL MIDTOWN - New
$209,900Active4 beds 2 baths1,812 sq. ft.864 Northview Drive, Forest Park, GA 30297
MLS# 10738628Listed by: 8th & Oak Realty - New
$144,900Active3 beds 1 baths1,853 sq. ft.4705 Ernest Drive, Forest Park, GA 30297
MLS# 10738412Listed by: RE/MAX Advantage - New
$213,000Active3 beds 1 baths884 sq. ft.4813 Bartlett Road, Forest Park, GA 30297
MLS# 7727809Listed by: MAINSTAY BROKERAGE LLC - New
$129,000Active3 beds 1 baths951 sq. ft.5652 Ash Street, Forest Park, GA 30297
MLS# 7756584Listed by: MAXIMUM ONE EXECUTIVE REALTORS - New
$229,900Active3 beds 2 baths1,749 sq. ft.1077 Helen Street, Morrow, GA 30260
MLS# 10736889Listed by: SouthSide, REALTORS - New
$148,000Active2 beds 1 baths1,629 sq. ft.5529 Cypress Drive, Forest Park, GA 30297
MLS# 7755994Listed by: KELLER WILLIAMS REALTY ATL PARTNERS - New
$225,000Active3 beds 3 baths1,653 sq. ft.6107 Winview Drive, Forest Park, GA 30297
MLS# 7753214Listed by: REMAX METRO ATLANTA CITYSIDE