704 Leela Court, Grovetown, GA 30813
Local realty services provided by:Better Homes and Gardens Real Estate Lifestyle Property Partners
704 Leela Court,Grovetown, GA 30813
$141,000
- 0.18 Acres
- Lots / Land
- Active
Listed by: joe edge
Office: sherman & hemstreet real estate
MLS#:544145
Source:NC_CCAR
Price summary
- Price:$141,000
About this home
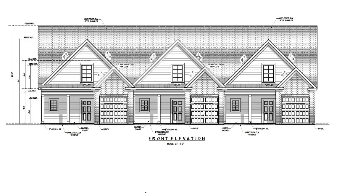
Offering consists of 3 pad ready lots in Lakeview Commons subdivision. Fully stamped and approved drawings are included in the sale. The lots must be sold together as the three townhomes are all adjoined. Lots back up to Sadie Morris Creek. New construction townhouses in Columbia County have averaged high prices per square foot.
Contact an agent
Home facts
- Listing ID #:544145
- Added:40 day(s) ago
- Updated:November 26, 2025 at 11:19 AM
Structure and exterior
- Lot area:0.18 Acres
Schools
- High school:Grovetown High
- Middle school:Grovetown
- Elementary school:Cedar Ridge
Finances and disclosures
- Price:$141,000
New listings near 704 Leela Court
- New
Listed by BHGRE$221,900Active3 beds 3 baths1,386 sq. ft.2210 Jasmine Way, Grovetown, GA 30813
MLS# 549651Listed by: BETTER HOMES & GARDENS EXECUTIVE PARTNERS - New
Listed by BHGRE$231,900Active3 beds 3 baths1,500 sq. ft.2207 Jasmine Way Way, Grovetown, GA 30813
MLS# 549652Listed by: BETTER HOMES & GARDENS EXECUTIVE PARTNERS - New
Listed by BHGRE$231,900Active3 beds 3 baths1,500 sq. ft.2209 Jasmine Way, Grovetown, GA 30813
MLS# 549653Listed by: BETTER HOMES & GARDENS EXECUTIVE PARTNERS - New
$775,000Active5 beds 4 baths5,047 sq. ft.656 Chamblin Road, Grovetown, GA 30813
MLS# 220648Listed by: KELLER WILLIAMS REALTY AIKEN PARTNERS - New
$279,900Active4 beds 3 baths1,802 sq. ft.1330 York Drive, Grovetown, GA 30813
MLS# 549610Listed by: STERLING REAL ESTATE COMPANY - New
$234,900Active4 beds 2 baths1,946 sq. ft.684 Monroe Street, Grovetown, GA 30813
MLS# 549589Listed by: FORTUNE SMART HOMES REAL ESTAT - Open Sat, 2 to 4pmNew
$399,900Active4 beds 3 baths2,124 sq. ft.420 Longmeadow Drive, Grovetown, GA 30813
MLS# 549562Listed by: SOUTHEASTERN RESIDENTIAL, LLC - New
$315,000Active3 beds 3 baths1,929 sq. ft.523 Capstone Way, Grovetown, GA 30813
MLS# 549513Listed by: EXP REALTY, LLC - New
$245,000Active3 beds 3 baths1,490 sq. ft.1218 Vail Drive #15a, Grovetown, GA 30813
MLS# 549485Listed by: IVEY REALTY ASSOCIATES, LLC - New
$212,000Active3 beds 3 baths1,162 sq. ft.1216 Vail Drive #15b, Grovetown, GA 30813
MLS# 549487Listed by: IVEY REALTY ASSOCIATES, LLC