Address Withheld By Seller, Guyton, GA 31312
Local realty services provided by:Better Homes and Gardens Real Estate Lifestyle Property Partners
Listed by: kathy ballowe, kristy theiling
Office: dr horton realty of georgia
MLS#:SA354344
Source:NC_CCAR
Sorry, we are unable to map this address
Price summary
- Price:$410,165
- Price per sq. ft.:$186.18
About this home
Special limited time pricing!!
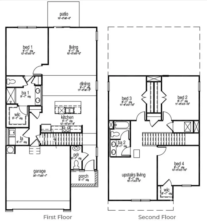
New Hardie Plank siding home in the amenity-rich community of Laurel Grove on a corner lot across from the amenity center - the perfect lot for family and social living! Located in Guyton, GA, within an award-winning school district! This community offers planned amenities including a swimming pool and large open-air pavilion, plus sidewalk-lined streets that make it easy to walk to nearby top-rated schools and enjoy the neighborhood’s peaceful setting. The Manning plan features a spacious, open floorplan with a chef’s kitchen, large central quartz island, and stainless steel appliances. The kitchen opens to the dining area and a generous family room with sliding door access to the back patio perfect for indoor-outdoor living and entertaining. The primary suite is conveniently located on the main level and boasts a double vanity bath, large walk-in shower, and a huge walk-in closet. A convenient laundry room is located just off the two-car garage for everyday ease. Laurel Grove’s ideal location provides easy access to the airport, Pooler, Rincon, Savannah, and the new Hyundai plant. Home is under construction, and features, sizes, and colors may vary. Photos are not of the subject home. More information on programs and options are available for this home....
Contact an agent
Home facts
- Year built:2026
- Listing ID #:SA354344
- Added:2 day(s) ago
- Updated:April 25, 2026 at 10:19 AM
Rooms and interior
- Bedrooms:4
- Total bathrooms:3
- Full bathrooms:2
- Half bathrooms:1
- Kitchen Description:Dishwasher, Disposal, Kitchen Island, Microwave, Pantry, Range
- Living area:2,203 sq. ft.
Heating and cooling
- Cooling:Central Air
- Heating:Electric, Heating
- Central air:Yes
Structure and exterior
- Year built:2026
- Building area:2,203 sq. ft.
- Lot area:0.3 Acres
- Architectural Style:Traditional
- Construction Materials:Concrete
- Foundation Description:Slab
Finances and disclosures
- Price:$410,165
- Price per sq. ft.:$186.18
Features and amenities
- Appliances:Dishwasher, Disposal, Range
- Laundry features:Washer Hookup
Parking
- Parking description:Attached
- Garage:Yes
- Garage spaces:2
New listings near 31312
- New
$383,690Active3 beds 2 baths1,725 sq. ft.104 Miller Chapel Boulevard, Guyton, GA 31312
MLS# SA354455Listed by: SM GEORGIA BROKERAGE LLC - New
$394,790Active4 beds 3 baths2,188 sq. ft.105 Miller Chapel Boulevard, Guyton, GA 31312
MLS# SA354479Listed by: SM GEORGIA BROKERAGE LLC - New
$433,940Active4 beds 4 baths2,686 sq. ft.118 Miller Chapel Boulevard, Guyton, GA 31312
MLS# SA354563Listed by: SM GEORGIA BROKERAGE LLC - New
$359,990Active4 beds 3 baths1,875 sq. ft.102 Miller Chapel Boulevard, Guyton, GA 31312
MLS# SA354584Listed by: SM GEORGIA BROKERAGE LLC - New
$349,900Active2 beds 2 baths406 Church Street, Guyton, GA 31312
MLS# 10740507Listed by: Next Move Real Estate - New
$350,000Active3 beds 2 baths1,947 sq. ft.512 Amsonia Circle, Guyton, GA 31312
MLS# 10740759Listed by: Coldwell Banker Southern Coast - New
$200,000Active5 Acres630 Sand Hill Road, Guyton, GA 31312
MLS# SA354331Listed by: RE/MAX SAVANNAH - New
$575,000Active4 beds 3 baths3,000 sq. ft.358 Gracen Road, Guyton, GA 31312
MLS# 10739929Listed by: Next Move Real Estate - New
$370,315Active3 beds 2 baths1,618 sq. ft.109 Sumter Street, Guyton, GA 31312
MLS# SA354472Listed by: DR HORTON REALTY OF GEORGIA - New
$488,565Active4 beds 3 baths3,128 sq. ft.181 Buckeye Road, Guyton, GA 31312
MLS# SA354475Listed by: DR HORTON REALTY OF GEORGIA