307 Friendship Oak Way, Hampton, GA 30228
Local realty services provided by:Better Homes and Gardens Real Estate Jackson Realty
307 Friendship Oak Way,Hampton, GA 30228
$382,555
- 4 Beds
- 3 Baths
- 2,724 sq. ft.
- Single family
- Active
Listed by: marissa lopez
Office: d.r.horton-crown realty prof.
MLS#:10632548
Source:METROMLS
Price summary
- Price:$382,555
- Price per sq. ft.:$140.44
- Monthly HOA dues:$41.67
About this home
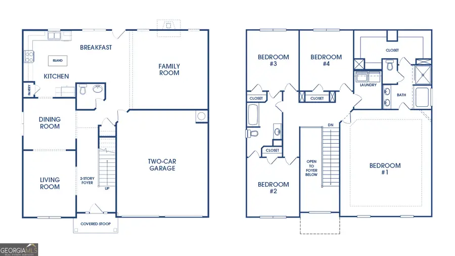
The Packard Plan by DR Horton - Step Inside Your New Home - From the moment you walk through the front door, you're greeted by a sense of openness and elegance. The foyer leads you into a beautifully designed main level where natural light fills the space, highlighting the graceful flow between each room. To your right, a formal living room offers the perfect spot for welcoming guests, while the spacious dining room nearby is ready for dinner parties and family gatherings. As you move toward the heart of the home, the kitchen island immediately stands out featuring quartz countertops, lots of cabinetry, and modern finishes. The kitchen opens effortlessly to a large family room, creating a warm and inviting atmosphere ideal for both entertaining and everyday living. Upstairs, you'll discover a luxurious owner's suite, complete with a spa like bath and double vanities. Generous walk in closets, a true private retreat designed for relaxation. The secondary bedrooms offer comfort and extra storage, with a well appointed shared bathroom conveniently located nearby. Throughout the home, Home Is Connected technology keeps you in touch with what matters most, providing an industry-leading suite of smart home products designed for modern living. Photos are for illustrative purposes only and may not depict the actual home. Henry County Schools! 100% FINANCING AVAILABLE!! Estimated completion Jan 2026. AMAZING RATES AND ALL CLOSING COST COVERED!!! INTIMATE COMMUNITY WITH NICE LOT SIZES.
Contact an agent
Home facts
- Year built:2025
- Listing ID #:10632548
- Updated:December 26, 2025 at 11:41 AM
Rooms and interior
- Bedrooms:4
- Total bathrooms:3
- Full bathrooms:2
- Half bathrooms:1
- Living area:2,724 sq. ft.
Heating and cooling
- Cooling:Central Air, Electric
- Heating:Electric
Structure and exterior
- Roof:Composition
- Year built:2025
- Building area:2,724 sq. ft.
- Lot area:0.25 Acres
Schools
- High school:Wade Hampton
- Middle school:Hampton
- Elementary school:Hampton Elementary
Utilities
- Water:Public, Water Available
- Sewer:Public Sewer, Sewer Available
Finances and disclosures
- Price:$382,555
- Price per sq. ft.:$140.44
- Tax amount:$1,609 (2024)
New listings near 307 Friendship Oak Way
- New
$379,900Active5 beds 4 baths3,736 sq. ft.541 Hamlet Drive, Hampton, GA 30228
MLS# 7695238Listed by: LEADERS REALTY, INC - New
$299,900Active4 beds 3 baths2,667 sq. ft.12237 Dickson Road, Hampton, GA 30228
MLS# 10661339Listed by: Adams Asset Mgmt., Inc. - New
$600,400Active5 beds 4 baths3,661 sq. ft.1924 Endress Circle, Hampton, GA 30228
MLS# 10661304Listed by: D.R.HORTON-CROWN REALTY PROF. - New
$343,790Active3 beds 3 baths1,933 sq. ft.1429 Trellis Court #(LOT 9), Hampton, GA 30228
MLS# 10661188Listed by: SDC Realty Central Georgia - New
$305,000Active3 beds 2 baths101 River View Court, Hampton, GA 30228
MLS# 10661190Listed by: Keller Williams Atlanta Classic - New
$699,000Active6 beds 5 baths4,405 sq. ft.244 Dodgen Road, Hampton, GA 30228
MLS# 10661005Listed by: Virtual Properties Realty.com - New
$350,000Active5 beds 3 baths3,108 sq. ft.11046 Genova Terrace, Hampton, GA 30228
MLS# 10660781Listed by: Mark Spain Real Estate - New
$278,841Active3 beds 3 baths1,579 sq. ft.11535 Kimberly Way #LOT 11, Hampton, GA 30228
MLS# 10660644Listed by: Liberty Realty Professionals - New
$278,841Active3 beds 3 baths1,579 sq. ft.11539 Kimberly Way #LOT 13, Hampton, GA 30228
MLS# 10660645Listed by: Liberty Realty Professionals - New
$278,841Active3 beds 3 baths1,579 sq. ft.11541 Kimberly Way #LOT 14, Hampton, GA 30228
MLS# 10660646Listed by: Liberty Realty Professionals