161 Ambrose Drive, Jasper, GA 30143
Local realty services provided by:Better Homes and Gardens Real Estate Metro Brokers
161 Ambrose Drive,Jasper, GA 30143
$485,000
- 4 Beds
- 3 Baths
- 1,960 sq. ft.
- Single family
- Active
Listed by: bonnie padgett
Office: keller williams elevate
MLS#:7736433
Source:FIRSTMLS
Price summary
- Price:$485,000
- Price per sq. ft.:$247.45
About this home
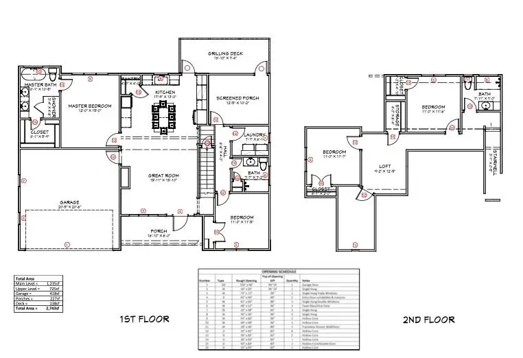
Welcome to this under-construction home in the desirable Bethany Moorings neighborhood, just a short drive from the interstate and downtown Jasper, and offering 4 bedroom, 3 bathrooms, and approximately 1,960 square feet of thoughtfully designed living space. A charming front porch invites you into a bright and airy interior featuring a sought-after split bedroom floorplan and a stunning great room anchored by a stone gas log fireplace—perfect for cozy evenings and effortless entertaining. The spacious kitchen is a true centerpiece, showcasing elegant stone countertops, soft-close cabinetry, and a large center island ideal for gathering. The primary suite on the main level provides a peaceful retreat with an ensuite bathroom complete with dual vanities, a beautifully tiled shower, a separate soaking tub, and a generous walk-in closet. A secondary bedroom on the main floor is conveniently located near a full bath and laundry room, offering flexibility for guests or a home office. Upstairs, two additional bedrooms share a well-appointed bathroom and are complemented by a versatile loft landing area and ample storage space. Enjoy outdoor living at its best with a rear main-level screened porch—perfect for relaxing year-round—along with an adjoining grilling deck ideal for entertaining and dining outdoors. A two-car garage completes this thoughtfully designed home, blending comfort, style, and functionality in a welcoming community setting. Schedule a showing to see the property and discuss options!...
Contact an agent
Home facts
- Year built:2026
- Listing ID #:7736433
- Updated:May 14, 2026 at 01:25 PM
Rooms and interior
- Bedrooms:4
- Total bathrooms:3
- Full bathrooms:3
- Dining Description:Open Concept
- Bathrooms Description:Double Vanity, Separate Tub/Shower, Soaking Tub
- Kitchen Description:Dishwasher, Eat-in Kitchen, Electric Cooktop, Electric Oven, Kitchen Island, Microwave, Pantry, Stone Counters, View to Family Room
- Bedroom Description:Master on Main, Split Bedroom Plan
- Basement Description:Crawl Space
- Living area:1,960 sq. ft.
Heating and cooling
- Cooling:Ceiling Fan(s), Central Air
- Heating:Central
- Central air:Yes
Structure and exterior
- Roof:Composition, Shingle
- Year built:2026
- Building area:1,960 sq. ft.
- Lot area:0.75 Acres
- Lot Features:Back Yard, Front Yard, Private
- Architectural Style:Craftsman, Traditional
- Construction Materials:HardiPlank Type
- Exterior Features:Covered, Deck, Front Porch, Rain Gutters, Rear Porch, Screened
- Levels:2 Story
Schools
- High school:Pickens
- Middle school:Jasper
- Elementary school:Harmony - Pickens
Utilities
- Water:Public, Water Available
- Sewer:Public Sewer, Sewer Available
Finances and disclosures
- Price:$485,000
- Price per sq. ft.:$247.45
- Tax amount:$217 (2025)
Features and amenities
- Laundry features:Laundry Room, Main Level
- Amenities:Electric Water Heater, Walk-In Closet(s)
Parking
- Parking description:Attached, Garage, Garage Faces Front
- Garage spaces:2
New listings near 161 Ambrose Drive
- New
$475,000Active4 beds 4 baths4,349 sq. ft.58 Green Forest Parkway, Jasper, GA 30143
MLS# 7769088Listed by: CENTURY 21 LINDSEY AND PAULEY - Open Sat, 11am to 1pmNew
$565,000Active3 beds 3 baths2,351 sq. ft.2336 Quail Cove Drive, Jasper, GA 30143
MLS# 7770310Listed by: EXP REALTY, LLC. - Open Sun, 1 to 3pmNew
$599,900Active4 beds 2 baths1,935 sq. ft.149 Hidden Creek Road, Jasper, GA 30143
MLS# 430594Listed by: CALL IT CLOSED INTERNATIONAL REALTY - Open Sat, 1 to 3pmNew
$379,900Active3 beds 2 baths1,714 sq. ft.208 Timberline Drive, Jasper, GA 30143
MLS# 7769685Listed by: KELLER WILLIAMS REALTY PARTNERS - New
$379,900Active3 beds 2 baths1,222 sq. ft.402 Deer Run, Jasper, GA 30143
MLS# 10763592Listed by: ERA Sunrise Realty - New
$285,960Active23.83 Acres23.83 Pine Crest Road, Jasper, GA 30143
MLS# 7763327Listed by: CENTURY 21 LINDSEY AND PAULEY - New
$340,000Active3 beds 3 baths2,797 sq. ft.2523 Tamarack Drive, Jasper, GA 30143
MLS# 10762594Listed by: Bennett Realty Partners - New
$650,000Active4 beds 5 baths3,849 sq. ft.53 Pinto Place, Jasper, GA 30143
MLS# 7769146Listed by: MARK SPAIN REAL ESTATE - New
$78,000Active1.54 Acres01 Hobson Road, Jasper, GA 30143
MLS# 7769059Listed by: ATLANTA COMMUNITIES - Coming Soon
$380,000Coming Soon4 beds 3 baths98 Ivy Ridge Drive, Jasper, GA 30143
MLS# 7768772Listed by: KELLER WILLIAMS REALTY ATL NORTH