1404-1406 Hamilton, Lagrange, GA 30241
Local realty services provided by:Better Homes and Gardens Real Estate Jackson Realty
1404-1406 Hamilton,Lagrange, GA 30241
$1,100,000
- 5.75 Acres
- Lots / Land
- Active
Listed by: phillip stribling
Office: stribling-dupree rlty & appraisal
MLS#:20006811
Source:METROMLS
Price summary
- Price:$1,100,000
About this home
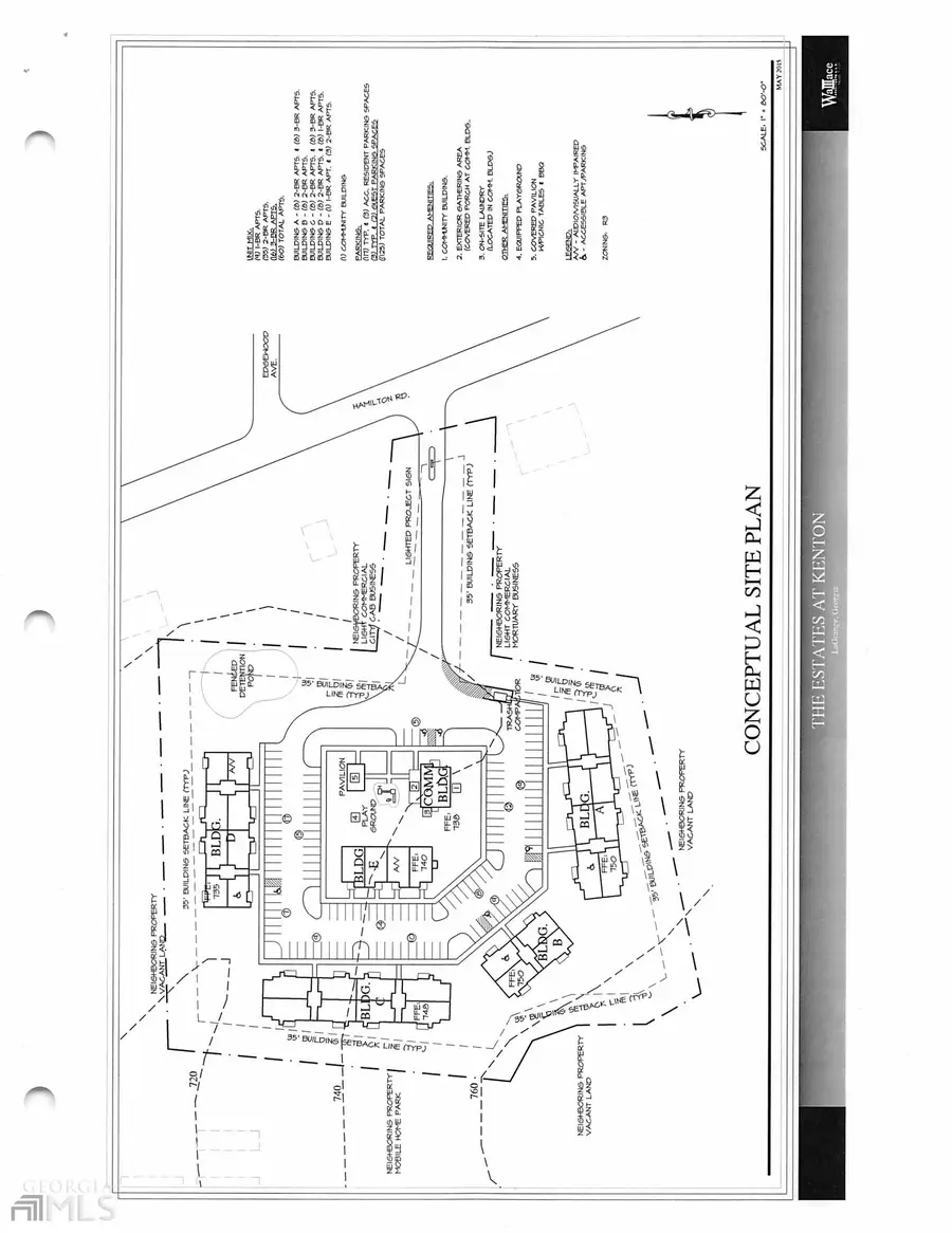
THIS PROPERTY HAS BEEN ZONED FOR MULTI FAMILY. THE SITE HAS BEEN DESIGNED WITH 60 UNITS (9@ 1 BR, 35 @ 2 BR, 16 @ 3 BR) AMENITIES 1. COMMUNITY BUILDING, 2. EXTERIOR GATHERING AREA, 3. ON SITE LAUNDRY, 4. EQUIPPED PLAYGROUNDS, 5. COVERED PAVILION WITH PICNIC TABLES & BBQ. ADDITIONAL CONTIGUIOUS ACRES CAN BE ADDED UP TO A TOTAL OF 17.5 ACRES THIS PROPERTY HAS FRONTAGE ON THE WIDENING DOT PROJECT OF HAMILTON ST AND GOES ALL THE WAY THROUGH TO WHITESVILLE ST WITH 628.77 FEET OF ROAD FRONTAGE.
Contact an agent
Home facts
- Listing ID #:20006811
- Updated:December 30, 2025 at 11:51 AM
Structure and exterior
- Lot area:5.75 Acres
Schools
- High school:Troup County
- Middle school:Long Cane
- Elementary school:Clearview
Utilities
- Water:Public, Water Available
- Sewer:Public Sewer, Sewer Available
Finances and disclosures
- Price:$1,100,000
- Tax amount:$315 (2021)
New listings near 1404-1406 Hamilton
- New
$79,900Active2 beds 2 baths1,225 sq. ft.100 Fannin Street, LAGRANGE, GA 30241
MLS# 225115Listed by: BLESSED REALTY GROUP - New
$425,000Active4 beds 3 baths2,093 sq. ft.804 Wisteria Way, Lagrange, GA 30240
MLS# 10662490Listed by: Listed Simply - New
$292,795Active4 beds 3 baths1,753 sq. ft.147 Shenandoah Lane, LaGrange, GA 30241
MLS# 10661730Listed by: Re/Max Tru, Inc. - New
$345,000Active4 beds 4 baths2,689 sq. ft.1142 Hammett Road, Lagrange, GA 30241
MLS# 10661755Listed by: Gari & Gari Realty - Open Sat, 11am to 2pmNew
$312,900Active3 beds 3 baths2,516 sq. ft.160 Lakemont Drive, Lagrange, GA 30240
MLS# 10661552Listed by: Heritage Oaks Realty Westside - New
$410,000Active3 beds 3 baths2,600 sq. ft.42 Deer Pointe Court, Lagrange, GA 30240
MLS# 10661548Listed by: Gari & Gari Realty - New
$575,000Active4 beds 4 baths3,230 sq. ft.102 Millridge Drive, Lagrange, GA 30240
MLS# 10661550Listed by: F.L.I. Properties - New
$329,999Active4 beds 2 baths1,944 sq. ft.111 Copper Creek Drive, Lagrange, GA 30240
MLS# 10661526Listed by: Go Realty - New
$30,000Active2 beds 1 baths896 sq. ft.212 Cleaveland Drive, Lagrange, GA 30241
MLS# 10661454Listed by: Swanson & Associates Realty - New
$165,000Active3 beds 2 baths1,408 sq. ft.1518 Brownwood Ave, LAGRANGE, GA 30240
MLS# 225073Listed by: COLDWELL BANKER / KENNON, PARKER, DUNCAN & DAVIS