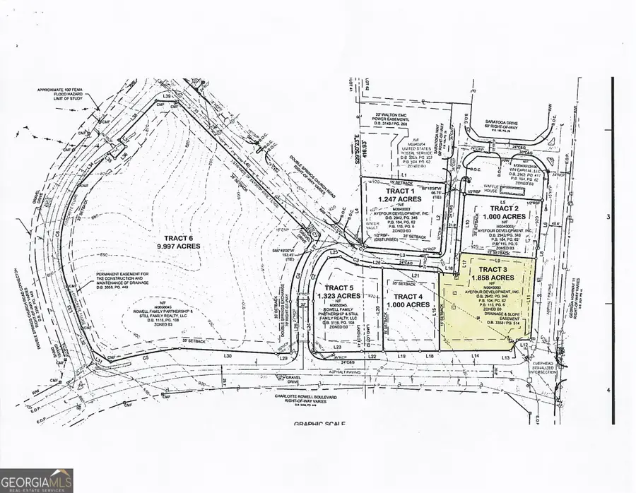
3 Saratoga Drive #AYE/3/1.858/16, Monroe, GA 30656
Local realty services provided by:Better Homes and Gardens Real Estate Jackson Realty
3 Saratoga Drive #AYE/3/1.858/16,Monroe, GA 30656
$1,618,690
- 1.86 Acres
- Lots / Land
- Active
Listed by: lee rowell
Office: landcorps, inc.
MLS#:10714299
Source:METROMLS
Price summary
- Price:$1,618,690
About this home
High traffic volume pad site. Pad graded to 1%. All Utilities: water/sewer/gas/electric and Master Detention. Ready for Construction. Next to Waffle House on GA Hwy 11. At Main Signalized intersection.
Contact an agent
Home facts
- Listing ID #:10714299
- Updated:March 21, 2026 at 10:45 AM
Structure and exterior
- Lot area:1.86 Acres
- Lot Features:Curb
Schools
- High school:Monroe Area
- Middle school:Carver
- Elementary school:Monroe
Utilities
- Water:Public, Water Available
- Sewer:Public Sewer, Sewer Available
Finances and disclosures
- Price:$1,618,690
- Tax amount:$1,000 (2020)
New listings near 3 Saratoga Drive #AYE/3/1.858/16
- New
$109,900Active3 beds 3 baths1,472 sq. ft.729 Wheel House Lane #A, Monroe, GA 30655
MLS# 10715165Listed by: Solutions First Realty LLC - New
$60,000Active0.59 Acres1405 Morgans Bluff, Monroe, GA 30656
MLS# 7720775Listed by: CHATTAHOOCHEE NORTH, LLC - New
$526,890Active6 beds 3 baths2,970 sq. ft.1293 Orwell Lane, Monroe, GA 30656
MLS# 10714935Listed by: Meritage Homes of Georgia Inc - New
$875,000Active4 beds 4 baths3,116 sq. ft.2128 Stonegate Way, Monroe, GA 30656
MLS# 10714972Listed by: The Rezerve - New
$280,000Active3 beds 2 baths1,912 sq. ft.724 Country Club Dr, Monroe, GA 30655
MLS# 10714813Listed by: eXp Realty - New
$439,900Active3 beds 2 baths1,988 sq. ft.2513 Windfield Place, Monroe, GA 30655
MLS# 7738607Listed by: ALGIN REALTY, INC. - New
$99,999Active2.05 Acres2076 Highway 138, Monroe, GA 30655
MLS# 10714621Listed by: Landmark Realty Group - New
$719,000Active4 beds 4 baths5,220 sq. ft.2732 Powell Court, Monroe, GA 30656
MLS# 10714292Listed by: Extol Realty - New
$977,748Active1.5 Acres1 Saratoga Drive #AYE/1/1.247/15, Monroe, GA 30656
MLS# 10714295Listed by: Landcorps, Inc. - New
$827,640Active1 Acres2 Saratoga Drive #AYE/2/1.00/16, Monroe, GA 30655
MLS# 10714296Listed by: Landcorps, Inc.