273 Pasture Lane, Statesboro, GA 30458
Local realty services provided by:Better Homes and Gardens Real Estate Lifestyle Property Partners
Listed by: leigh a. krosp, kathy ballowe
Office: dr horton realty of georgia
MLS#:SA346302
Source:NC_CCAR
Price summary
- Price:$268,990
- Price per sq. ft.:$182.49
About this home
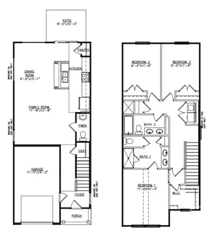
Coming Soon!Welcome to Stockyard East, where modern style meets effortless living in this beautifully designed 3-bedroom, 2.5-bath townhome offering 1,474 square feet of low-maintenance comfort. Thoughtfully crafted for today’s lifestyle, this home blends clean, contemporary finishes with functional spaces you’ll love coming home to.
Step inside to a bright, open-concept main level where the living, dining, and kitchen areas flow seamlessly—perfect for everyday living and entertaining alike. The kitchen is the heart of the home, featuring a large center island, granite countertops, and abundant cabinet space, ideal for hosting friends or enjoying quiet nights in. An attached garage and a convenient half bath complete the main floor. Smart Home technology and 2" faux wood blinds add both style and convenience throughout.
Upstairs, retreat to your private primary suite with an en-suite bath and generous closet space—your own personal haven. Two additional bedrooms, a full bathroom, and a dedicated laundry room provide comfort, convenience, and flexibility for guests, family, or a home office.
Whether you’re a first-time buyer, growing household, or downsizing into low-maintenance living, this home offers the perfect blend of space, style, and ease near the heart of Downtown Statesboro.
The home is currently under construction. Photos are for illustration purposes only and may not reflect the actual home as built. Colors, features, and finishes may vary. Additional information regarding available programs and options is available upon request.
Contact an agent
Home facts
- Year built:2026
- Listing ID #:SA346302
- Added:4 day(s) ago
- Updated:January 12, 2026 at 05:04 PM
Rooms and interior
- Bedrooms:3
- Total bathrooms:3
- Full bathrooms:2
- Half bathrooms:1
- Living area:1,474 sq. ft.
Heating and cooling
- Cooling:Central Air
- Heating:Electric, Heating
Structure and exterior
- Year built:2026
- Building area:1,474 sq. ft.
- Lot area:0.05 Acres
Schools
- High school:Statesboro
- Middle school:William James
- Elementary school:Julia P. Bryant
Finances and disclosures
- Price:$268,990
- Price per sq. ft.:$182.49
New listings near 273 Pasture Lane
- New
$375,000Active4 beds 2 baths3,233 sq. ft.116 Evergreen Drive, Statesboro, GA 30458
MLS# 10670242Listed by: Coldwell Banker Conner Realty - New
$399,000Active3 beds 3 baths2,683 sq. ft.529 Saint Andrews Circle, Statesboro, GA 30458
MLS# 10670163Listed by: Statesboro Real Estate & Investments - New
$252,150Active3 beds 2 baths1,291 sq. ft.127 Landmark Circle #LOT 14, Statesboro, GA 30458
MLS# 10669869Listed by: Coldwell Banker Conner Realty - New
$253,150Active3 beds 2 baths1,299 sq. ft.129 Landmark Circle #LOT 15, Statesboro, GA 30458
MLS# 10669585Listed by: Coldwell Banker Conner Realty - New
$430,000Active3 beds 2 baths1,510 sq. ft.1610 Clifton Road, Statesboro, GA 30458
MLS# 10669594Listed by: Cumberland Nine Realty - New
$253,150Active3 beds 2 baths1,299 sq. ft.129 Landmark Circle, Statesboro, GA 30458
MLS# SA346515Listed by: COLDWELL BANKER CONNER REALTY - New
$334,999Active4 beds 2 baths506 Delta Pine Court, Statesboro, GA 30461
MLS# 10669564Listed by: Statesboro Real Estate & Investments - New
$559,900Active4 beds 3 baths2,700 sq. ft.226 Bald Cypress Court, Statesboro, GA 30458
MLS# 10669299Listed by: Statesboro Real Estate & Investments - New
$299,900Active4 beds 2 baths2,322 sq. ft.120 N Edgewood Dr, Statesboro, GA 30458
MLS# 10669024Listed by: RE/MAX Eagle Creek Realty - Open Sat, 10am to 12pm
$509,900Pending5 beds 3 baths2,587 sq. ft.2041 Pippin Place, Statesboro, GA 30461
MLS# 10668710Listed by: Next Move Real Estate