2142 Ridgeview Drive, Thomson, GA 30824
Local realty services provided by:Better Homes and Gardens Real Estate Executive Partners
Listed by:donnie reese
Office:re/max reinvented
MLS#:547999
Source:GA_GAAR
Price summary
- Price:$199,900
- Price per sq. ft.:$93.94
About this home
Spacious 4-Bedroom Home on 2.35 Acres with Modern Comforts & Country Charm
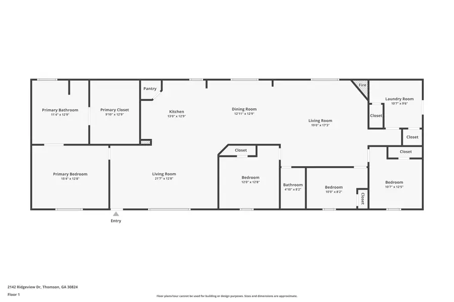
Welcome to this beautifully maintained 4-bedroom, 2-bathroom home nestled on a peaceful 2.35-acre lot—offering the perfect blend of open space and functional design.
With 2,128 square feet of living space, this home boasts an open floorplan ideal for both everyday living and entertaining. The huge living room flows seamlessly into a spacious kitchen and family room featuring a cozy fireplace, creating the perfect gathering spot for all seasons. Home features durable laminate flooring throughout, No Carpet.
The kitchen is designed for convenience and style, with a breakfast bar, pantry, and plenty of cabinetry. The primary suite is a true retreat, featuring an ensuite bathroom with a garden tub, separate shower, double sink vanity, and a humongous walk-in closet complete with a dressing island and built-in storage.
The split floorplan provides privacy, with 3 additional bedrooms and a full bathroom located on the opposite side of the home. A spacious laundry room includes a closet and enough room for an extra fridge or freezer. Permanent foundation, 12x20 Storage Building, Roof 2025, Water Heater 2023, HVAC 2022, new front entry stairs and side deck. No HOA. Close to local restaurants, shopping and hospital. Easy access to I-20 with short distance to Ft. Gordon, Amazon, and Augusta.
Contact an agent
Home facts
- Year built:2008
- Listing ID #:547999
- Added:1 day(s) ago
- Updated:October 09, 2025 at 05:43 PM
Rooms and interior
- Bedrooms:4
- Total bathrooms:2
- Full bathrooms:2
- Living area:2,128 sq. ft.
Structure and exterior
- Year built:2008
- Building area:2,128 sq. ft.
Finances and disclosures
- Price:$199,900
- Price per sq. ft.:$93.94
New listings near 2142 Ridgeview Drive
- New$238,900Active3 beds 2 baths1,897 sq. ft.
420 King Lane, Thomson, GA 30824
MLS# 547991Listed by: EXP REALTY, LLC - New$308,000Active3 beds 2 baths1,512 sq. ft.
110 Big Rock Road, Thomson, GA 30824
MLS# 547901Listed by: BLANCHARD & CALHOUN - SCOTT NIXON - New$89,900Active3 beds 2 baths
415 Stonewall Drive, Thomson, GA 30824
MLS# 7658413Listed by: DRAKE REALTY OF GREATER ATLANTA - New$289,900Active3 beds 2 baths1,795 sq. ft.
2057 April Dawn Trail, Thomson, GA 30824
MLS# 547671Listed by: MEYBOHM REAL ESTATE - EVANS - New$319,900Active4 beds 2 baths2,574 sq. ft.
1032 Debutant Drive, Thomson, GA 30824
MLS# 547628Listed by: MEYBOHM REAL ESTATE - EVANS - $269,900Pending3 beds 2 baths1,812 sq. ft.
3104 Twin Pine Road, Thomson, GA 30824
MLS# 547608Listed by: MEYBOHM REAL ESTATE - NORTH AUGUSTA - Listed by BHGRE$184,900Active4 beds 2 baths1,344 sq. ft.
1919 Ridgeview Drive, Thomson, GA 30824
MLS# 547540Listed by: BETTER HOMES & GARDENS EXECUTIVE PARTNERS - $204,900Pending4 beds 2 baths1,375 sq. ft.
301 Michael Street, Thomson, GA 30824
MLS# 547537Listed by: REEVES REALTY & INVESTMENTS, LLC - $80,000Active3 Acres
0 Cobbham Road, Thomson, GA 30824
MLS# 10601573Listed by: Waldorf Real Estate Co.