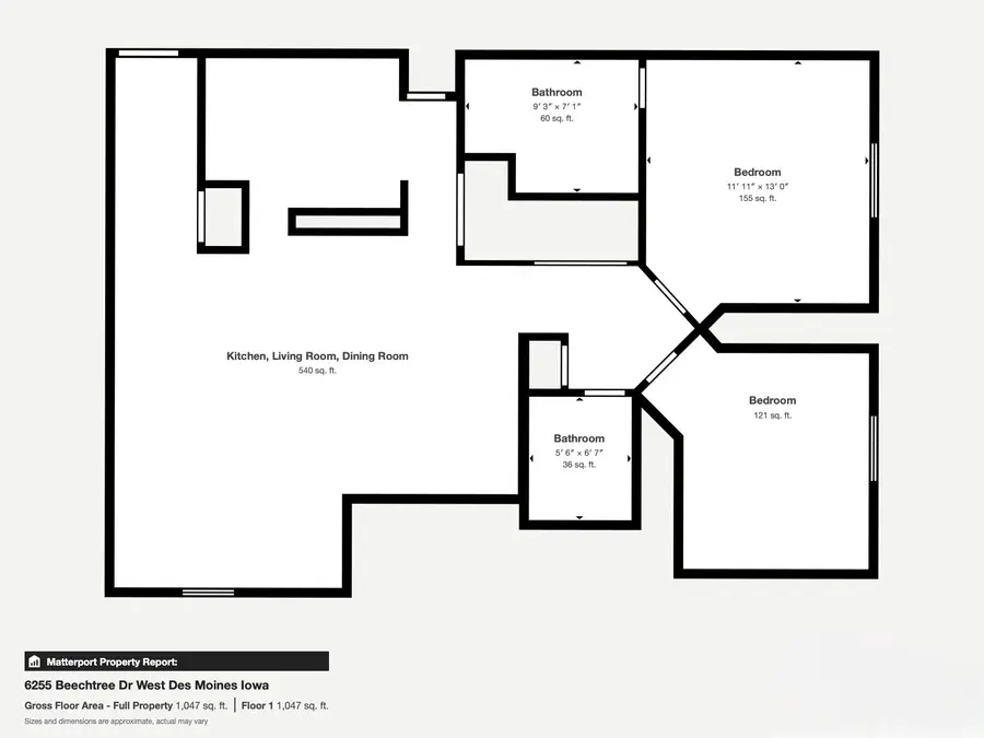
6255 Beechtree Drive #4202, West Des Moines, IA 50266
Local realty services provided by:Better Homes and Gardens Real Estate Innovations
6255 Beechtree Drive #4202,West Des Moines, IA 50266
$175,000
- 2 Beds
- 2 Baths
- 1,125 sq. ft.
- Condominium
- Active
Listed by: rich montanaro
Office: the american real estate co.
MLS#:733107
Source:IA_DMAAR
Price summary
- Price:$175,000
- Price per sq. ft.:$155.56
- Monthly HOA dues:$295
About this home
Don't miss out on this updated conveniently located condo in West Des Moines! Fall in love with this open concept floor plan with upgraded LVP flooring throughout. Kitchen offers all newer stainless steel appliances. Custom tile surround on the fireplace and modern vanities and mirrors in the baths. Conveniently located next to Jordan Creek Town Center and WDM Trail system. One of few Condos with a pool! Great view and security from the second floor. Building does have a elevator. One car garage, secured building with extra parking available.
Contact an agent
Home facts
- Year built:2004
- Listing ID #:733107
- Added:93 day(s) ago
- Updated:April 23, 2026 at 03:11 PM
Rooms and interior
- Bedrooms:2
- Total bathrooms:2
- Full bathrooms:2
- Dining Description:Dining Area
- Kitchen Description:Dishwasher, Microwave, Refrigerator, Stove
- Living area:1,125 sq. ft.
Heating and cooling
- Cooling:Central Air
- Heating:Electric, Forced Air, Natural Gas
- Central air:Yes
Structure and exterior
- Roof:Asphalt, Shingle
- Year built:2004
- Building area:1,125 sq. ft.
- Construction Materials:Stone, Vinyl Siding
- Exterior Features:Covered, Deck
- Foundation Description:Poured, Slab
Utilities
- Water:Public
- Sewer:Public Sewer
Finances and disclosures
- Price:$175,000
- Price per sq. ft.:$155.56
- Tax amount:$2,290
Features and amenities
- Appliances:Dishwasher, Dryer, Microwave, Refrigerator, Stove, Washer
- Laundry features:Dryer, Washer
- Pool features:In Ground
Parking
- Parking description:Detached, Garage, One Car Garage
- Garage:Yes
- Garage spaces:1
New listings near 6255 Beechtree Drive #4202
- New
$709,900Active4 beds 3 baths1,943 sq. ft.1220 S 100th Street, West Des Moines, IA 50266
MLS# 739029Listed by: RE/MAX PRECISION - Open Sat, 1 to 3pmNew
$325,000Active3 beds 3 baths1,610 sq. ft.1116 59th Street, West Des Moines, IA 50266
MLS# 738790Listed by: WEICHERT, MILLER & CLARK
$580,000Pending3 Acres3727 SW Meadow Rose Point, West Des Moines, IA 50266
MLS# 738988Listed by: REALTY ONE GROUP IMPACT- Open Sun, 1 to 3pmNew
$199,900Active2 beds 2 baths1,080 sq. ft.231 52nd Street, West Des Moines, IA 50265
MLS# 739062Listed by: BHHS FIRST REALTY WESTOWN - New
$335,000Active3 beds 3 baths1,286 sq. ft.495 S 51st Street #67, West Des Moines, IA 50265
MLS# 738994Listed by: LPT REALTY, LLC - Open Sun, 11:30am to 1pmNew
$289,900Active3 beds 2 baths1,116 sq. ft.627 13th Street, West Des Moines, IA 50265
MLS# 739006Listed by: RE/MAX CONCEPTS - New
$569,900Active5 beds 4 baths2,485 sq. ft.254 S 83rd Street, West Des Moines, IA 50266
MLS# 738933Listed by: EXCHANGE BROKERS - New
$315,000Active3 beds 2 baths1,209 sq. ft.528 13th Street, West Des Moines, IA 50265
MLS# 738945Listed by: KELLER WILLIAMS REALTY GDM - New
$249,900Active4 beds 3 baths1,636 sq. ft.624 5th Street, West Des Moines, IA 50265
MLS# 738956Listed by: RE/MAX CONCEPTS - New
$304,500Active2 beds 2 baths1,430 sq. ft.1725 S 50th Street #802, West Des Moines, IA 50265
MLS# 738919Listed by: IOWA REALTY MILLS CROSSING