5165 N Quinella St, Garden City, ID 83714
Local realty services provided by:Better Homes and Gardens Real Estate 43° North
5165 N Quinella St,Garden City, ID 83714
$399,900
- 0.14 Acres
- Lots / Land
- Active
Listed by:
- Better Homes and Gardens Real Estate 43° North
- Sanel Tucakovic(208) 631 - 8372Better Homes and Gardens Real Estate 43° North
MLS#:98971938
Source:ID_IMLS
Price summary
- Price:$399,900
About this home
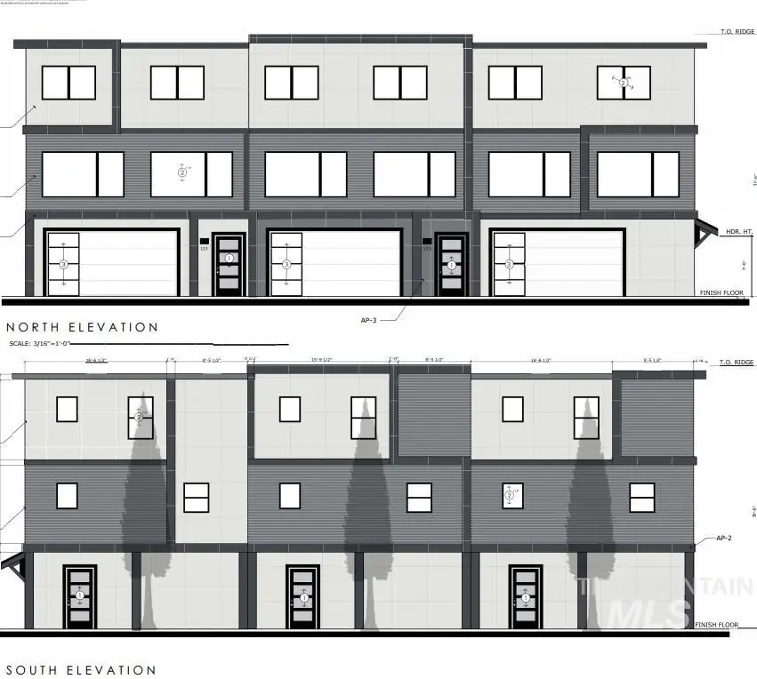
Fantastic opportunity to purchase a fully entitled triplex lot in the heart of Garden City, just blocks from the new AC Boise Soccer Stadium and the Boise River Greenbelt. This exceptional infill lot offers quick freeway access and effortless connectivity to Downtown Boise, making it ideal for both long-term rentals or future resale. The sale includes fully approved triplex plans, saving months of time and carrying costs—start building immediately. Located in one of the Treasure Valley’s fastest-growing areas, this site benefits from strong rental demand, proximity to outdoor recreation, entertainment, and major employment centers. Enjoy walkable access to the Greenbelt, nearby wineries, breweries, and river access, while remaining minutes from downtown dining, shopping, and nightlife. With entitlement in place and a highly desirable location, this property offers a compelling opportunity for developers and investors alike.
Contact an agent
Home facts
- Listing ID #:98971938
- Added:49 day(s) ago
- Updated:March 07, 2026 at 03:19 PM
Structure and exterior
- Lot area:0.14 Acres
Schools
- High school:Capital
- Middle school:River Glen Jr
- Elementary school:Pierce Pk
Utilities
- Water:City Service
- Sewer:Sewer-Exist
Finances and disclosures
- Price:$399,900
- Tax amount:$1,516 (2024)
New listings near 5165 N Quinella St
- Open Sun, 12 to 2pmNew
$450,000Active3 beds 3 baths1,346 sq. ft.9480 W Wakefield Court, Garden City, ID 83714
MLS# 98977076Listed by: FUNKHOUSER REAL ESTATE GROUP, LLC - Open Sat, 11am to 1pmNew
$835,000Active3 beds 3 baths2,387 sq. ft.9193 W Beachside Ln, Garden City, ID 83714
MLS# 98976947Listed by: KELLER WILLIAMS REALTY BOISE - Open Sun, 12 to 3pmNew
$1,100,000Active4 beds 3 baths3,200 sq. ft.9041 W Woodglade Ln, Garden City, ID 83714
MLS# 98976801Listed by: SILVERCREEK REALTY GROUP - Open Sun, 1 to 3pmNew
$545,000Active3 beds 3 baths1,281 sq. ft.291 E Thurman Mill Lane, Garden City, ID 83714
MLS# 98976750Listed by: POWERHOUSE REAL ESTATE GROUP - Open Sat, 9:45am to 12:45pmNew
$398,000Active2 beds 2 baths1,284 sq. ft.8513 N Willowdale Dr., Garden City, ID 83714
MLS# 98976670Listed by: COMPASS RE - Open Sat, 11am to 1pm
$589,000Pending3 beds 2 baths1,764 sq. ft.6161 N Pintail Way, Garden City, ID 83714
MLS# 98976549Listed by: JPAR LIVE LOCAL - New
$440,000Active0.39 Acres215 E 39th St, Garden City, ID 83714
MLS# 98976438Listed by: SILVERCREEK REALTY GROUP - New
$115,000Active2 beds 1 baths938 sq. ft.5573 Fairfax Ln, Boise, ID 83714
MLS# 98976353Listed by: 208 REAL ESTATE - New
$519,880Active3 beds 3 baths1,805 sq. ft.5782 W Avimor Dr., Boise, ID 83714
MLS# 98976357Listed by: HOMES OF IDAHO - New
$739,900Active2 beds 3 baths1,787 sq. ft.5901 N Duxbury Pier Ln, Garden City, ID 83714
MLS# 98976335Listed by: ELEVATE REALTY