2613 7th Ave N, Payette, ID 83661
Local realty services provided by:Better Homes and Gardens Real Estate 43° North
2613 7th Ave N,Payette, ID 83661
$825,000
- 3 Beds
- 2 Baths
- 2,693 sq. ft.
- Single family
- Active
Listed by: chuck jones
Office: homes of idaho
MLS#:98977288
Source:ID_IMLS
Price summary
- Price:$825,000
- Price per sq. ft.:$306.35
About this home
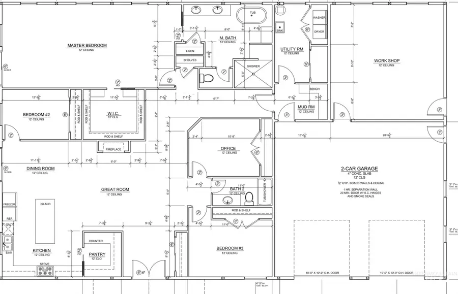
Discover your dream home—custom built on an acre! This stunning new home offers a bright, open floor plan designed for easy living and effortless entertaining. The gourmet kitchen features rich cherry wood cabinetry, solid surface countertops, and opens seamlessly to the spacious great room, where a cozy propane fireplace creates the perfect place to gather. Quality craftsmanship is evident throughout with engineered wood flooring, tile entry, cherry cabinetry in the bathrooms and utility room, solid knotty wood doors and trim, and soaring 10-foot ceilings that add style and space. Relax on the expansive wrap-around porch and enjoy peaceful mornings or beautiful sunset views. Quality 96% efficient heat pump central air design. The custom primary suite is your private retreat, complete with a luxurious ensuite bath. Additional upgrades include instant hot water, water softener, durable cedar siding, and a long-lasting metal roof. Need room for all your toys? The impressive 1,951 sq. ft. garage offers an RV bay plus space for up to five vehicles, hobbies, or a workshop. Construction is underway, and with an early offer you may still have the opportunity to choose select colors and finishing touches to personalize this incredible home. Drive by during construction—the builder is on-site and happy to answer questions. Posted plans are similar to actual plans....
Contact an agent
Home facts
- Year built:2026
- Listing ID #:98977288
- Added:49 day(s) ago
- Updated:April 27, 2026 at 03:37 PM
Rooms and interior
- Bedrooms:3
- Total bathrooms:2
- Full bathrooms:2
- Flooring:Tile
- Bathrooms Description:Bath-Master
- Kitchen Description:Pantry
- Living area:2,693 sq. ft.
Heating and cooling
- Cooling:Ductless/Mini Split
- Heating:Electric
Structure and exterior
- Roof:Metal
- Year built:2026
- Building area:2,693 sq. ft.
- Lot area:1 Acres
- Lot Features:Horses
- Construction Materials:Frame, Wood Siding
- Foundation Description:Slab
Schools
- High school:Payette
- Middle school:McCain
- Elementary school:Payette
Utilities
- Water:Well
- Sewer:Septic Tank
Finances and disclosures
- Price:$825,000
- Price per sq. ft.:$306.35
- Tax amount:$600 (2025)
Features and amenities
- Amenities:Bath-Master, Breakfast Bar, Pantry, Split Bedroom, Walk-In Closet(s)
Parking
- Parking description:Attached, RV Access/Parking, RV/Boat
- Garage:Yes
- Garage spaces:5
New listings near 2613 7th Ave N
- New
$420,000Active4 beds 3 baths1,855 sq. ft.322 N 12th. St., Parma, ID 83660
MLS# 98983634Listed by: FINDING 43 REAL ESTATE - New
$820,000Active2 beds 2 baths1,340 sq. ft.1070 Dewitt, Payette, ID 83661
MLS# 98983550Listed by: COLDWELL BANKER/CLASSIC PROPER - New
$429,900Active3 beds 2 baths1,602 sq. ft.2380 Vista Ave., Payette, ID 83661
MLS# 98983445Listed by: REAL BROKER LLC - New
$449,900Active3 beds 2 baths2,015 sq. ft.2040 Kelly Dr, Payette, ID 83661
MLS# 98983019Listed by: EXP REALTY, LLC - New
$278,500Active3 beds 2 baths1,056 sq. ft.1535 N. 6th Street, Payette, ID 83661
MLS# 98982884Listed by: MALHEUR REALTY - New
$430,000Active4 beds 2 baths1,840 sq. ft.885 S Iowa Ave, Payette, ID 83661
MLS# 98982886Listed by: SILVERCREEK REALTY GROUP
$550,000Active3 beds 2 baths1,750 sq. ft.1050 (Parcel 1) Nw 10th Ave, Payette, ID 83661
MLS# 98981484Listed by: EXP REALTY, LLC
$359,900Pending3 beds 2 baths1,372 sq. ft.395 Cutlass, Payette, ID 83661
MLS# 98982493Listed by: TRI-CITIES REAL ESTATE
$369,000Pending3 beds 2 baths1,336 sq. ft.2805 Cypress Pointe Ave, Payette, ID 83661
MLS# 98982347Listed by: HOMES OF IDAHO
$405,000Active4 beds 2 baths1,600 sq. ft.3000 Driftwood, Payette, ID 83619
MLS# 98981211Listed by: HOMES OF IDAHO