8869 W Swather Ave, Rathdrum, ID 83858
Local realty services provided by:Better Homes and Gardens Real Estate Gary Mann Realty
8869 W Swather Ave,Rathdrum, ID 83858
$542,125
- 3 Beds
- 2 Baths
- 1,437 sq. ft.
- Single family
- Pending
Listed by: bret minzghor, mariah turrell
Office: windermere/coeur d'alene realty inc
MLS#:26-1221
Source:ID_CDAR
Price summary
- Price:$542,125
- Price per sq. ft.:$377.26
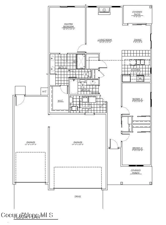
About this home
3rd Bay garage is 12 wide and 30 feet deep exterior measurement with a 10X10 garage door with opener, gas fireplace, quartz countertops throughout, covered front and rear patio, vaulted ceilings, 95% gas furnace, Nest thermostat, tankless gas water heater, gas to rear patio, gas range, LVP flooring every where except bedrooms and closets, garage door opener, garage man door and front yard landscaping and sprinkler system.
Return home to style and elegance every day when you make this beautiful abode your own. There's an impressive 1,437 sqft of living space with a bright and open-plan layout that invites you to rest and relax.
The owner's suite enjoys a private position, complete with an ensuite bath and an abundance of closet space. The two guest bedrooms are serviced by the hall bath.
When friends drop by, you can flow freely from the living room, into the dining room and the kitchen beyond. A breakfast nook set under a statement chandelier light.
Contact an agent
Home facts
- Year built:2026
- Listing ID #:26-1221
- Added:43 day(s) ago
- Updated:March 19, 2026 at 07:37 AM
Rooms and interior
- Bedrooms:3
- Total bathrooms:2
- Full bathrooms:2
- Flooring:Carpet
- Basement:Yes
- Basement Description:Crawl Space
- Living area:1,437 sq. ft.
Heating and cooling
- Heating:Forced Air, Furnace
Structure and exterior
- Roof:Composition
- Year built:2026
- Building area:1,437 sq. ft.
- Lot area:0.21 Acres
- Lot Features:Level
- Exterior Features:Covered Patio, Covered Porch, Lighting
- Foundation Description:Concrete Perimeter
Utilities
- Water:Public
- Sewer:Public Sewer
Finances and disclosures
- Price:$542,125
- Price per sq. ft.:$377.26
New listings near 8869 W Swather Ave
- Open Sat, 1 to 3pmNew
$1,499,000Active3 beds 3 baths3,022 sq. ft.24079 N McKenzie DR, Rathdrum, ID 83858
MLS# 26-2652Listed by: RE/MAX CENTENNIAL - Open Sat, 11am to 2pmNew
$524,900Active3 beds 3 baths2,068 sq. ft.6264 W Alliance ST, Rathdrum, ID 83858
MLS# 26-2658Listed by: KELLER WILLIAMS REALTY COEUR D'ALENE - New
$2,279,000Active4 beds 4 baths3,765 sq. ft.2117 E Amulet Cir, Rathdrum, ID 83858
MLS# 26-2423Listed by: EXP REALTY
$634,990Active4 beds 3 baths3,195 sq. ft.6136 W CONSTANTINE LN, Rathdrum, ID 83858
MLS# 26-920Listed by: COLDWELL BANKER SCHNEIDMILLER REALTY
$544,990Active4 beds 2 baths2,046 sq. ft.6266 W CONSTANTINE LN, Rathdrum, ID 83858
MLS# 26-922Listed by: COLDWELL BANKER SCHNEIDMILLER REALTY- New
$669,000Active3 beds 2 baths2,258 sq. ft.16152 N Hadley LOOP, Rathdrum, ID 83858
MLS# 26-2618Listed by: LOWES FLAT FEE REALTY - New
$1,295,500Active3 beds 3 baths3,242 sq. ft.2069 W DIAMOND BAR RD, Rathdrum, ID 83858
MLS# 26-2622Listed by: COLDWELL BANKER SCHNEIDMILLER REALTY
$539,761Pending4 beds 2 baths2,046 sq. ft.6447 W CONSTANTINE LN, Rathdrum, ID 83858
MLS# 26-2593Listed by: COLDWELL BANKER SCHNEIDMILLER REALTY- Open Sat, 1 to 3pmNew
$468,000Active3 beds 2 baths1,152 sq. ft.16237 N Hadley Loop, Rathdrum, ID 83858
MLS# 26-2568Listed by: BERKSHIRE HATHAWAY HOMESERVICES JACKLIN REAL ESTATE - New
$549,000Active3 beds 2 baths1,492 sq. ft.11989 N LENNON LN, Rathdrum, ID 83858
MLS# 26-2562Listed by: COLDWELL BANKER SCHNEIDMILLER REALTY