1226 W 77th Street, Chicago, IL 60620
Local realty services provided by:Better Homes and Gardens Real Estate Connections
Listed by: christopher weichselbaum
Office: fulton grace realty
MLS#:12619281
Source:MLSNI
Price summary
- Price:$359,900
About this home
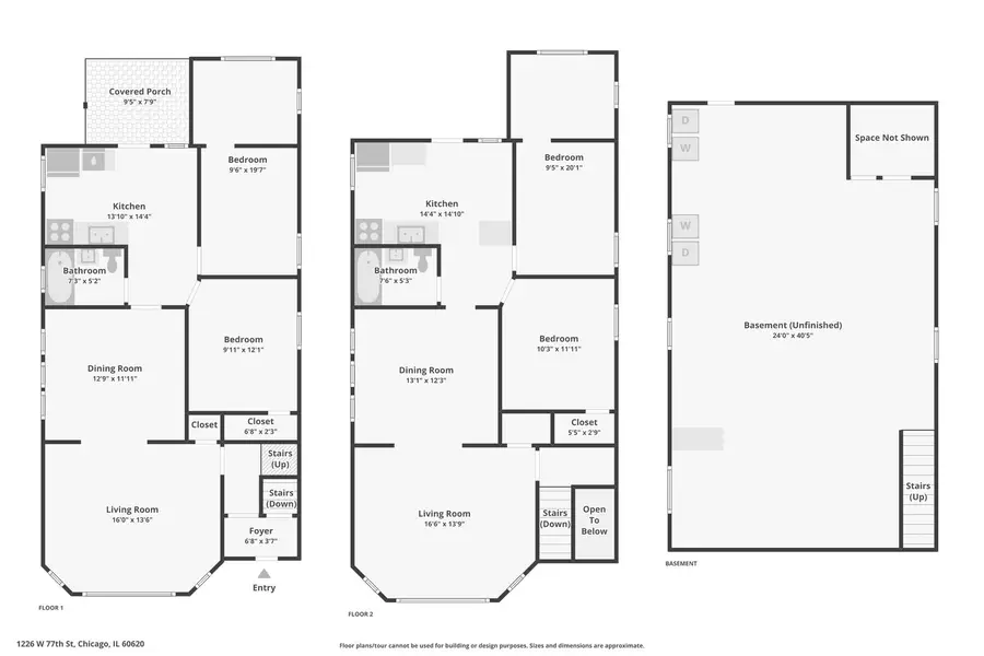
This brick 2 flat that has been well-maintained and loved by a long term owner features a full unfinished basement, backyard, and 2-car garage in a convenient location adjacent to a playground. Each unit features central air, updated windows, large bedrooms, formal dining room and newer furnaces. Unit 2 is occupied by a stable tenant, while Unit 1 is vacant and move-in ready with new appliances including a dishwasher for an owner-occupant or new tenant. Major improvements include updated electrical and plumbing, plus a tear-off roof completed approximately 5 years ago and was recently sealed for added longevity. Each unit also offers a spacious primary bedroom with a large adjacent room that can serve as a third bedroom, office, or dream walk-in closet. Great opportunity for investors or buyers looking to live in one unit and collect rental income from the other. Nothing to do but move in and enjoy owning a well-maintained piece of Chicago.
Contact an agent
Home facts
- Year built:1928
- Listing ID #:12619281
- Updated:April 15, 2026 at 02:44 PM
Rooms and interior
- Bedrooms:4
- Total bathrooms:2
- Full bathrooms:2
- Rooms Total:12
- Basement:Yes
- Basement Description:Full, Unfinished
Heating and cooling
- Heating:Natural Gas
Structure and exterior
- Year built:1928
- Foundation Description:Brick/Mortar
Utilities
- Water:Lake Michigan, Public
- Sewer:Public Sewer
Finances and disclosures
- Price:$359,900
- Tax amount:$3,324 (2024)
Parking
- Total parking spaces:2
- Parking description:Detached Garage, Garage
- Garage:Yes
- Garage spaces:2
New listings near 1226 W 77th Street
- New
$425,000Active2 beds 2 baths1,600 sq. ft.4300 N Marine Drive #1601, Chicago, IL 60613
MLS# 12603713Listed by: BAIRD & WARNER - Open Sat, 11:30am to 1pmNew
$699,900Active3 beds 3 baths1,700 sq. ft.1849 W Superior Street #1, Chicago, IL 60622
MLS# 12608128Listed by: VESTA PREFERRED LLC - New
$1,150,000Active2 beds 3 baths2,022 sq. ft.401 N Wabash Avenue #44F, Chicago, IL 60611
MLS# 12611596Listed by: KALE REALTY - Open Sat, 10 to 11:30amNew
$149,900Active3 beds 2 baths1,334 sq. ft.6836 S Calumet Avenue, Chicago, IL 60637
MLS# 12613929Listed by: URBANITAS INC. - New
$59,900Active0 AcresAddress Withheld By Seller, Chicago, IL 60621
MLS# 12614318Listed by: COMPASS - Open Sat, 1 to 3pmNew
$824,900Active4 beds 3 baths2,200 sq. ft.3518 W Wolfram Street #2, Chicago, IL 60618
MLS# 12615824Listed by: CROSS STREET REAL ESTATE - Open Sat, 1 to 3pmNew
$329,900Active1 beds 2 baths950 sq. ft.4420 N Clark Street #302, Chicago, IL 60640
MLS# 12615911Listed by: COMPASS - New
$183,900Active1 beds 1 baths800 sq. ft.6030 N Sheridan Road #1001, Chicago, IL 60660
MLS# 12618499Listed by: REAL BROKER LLC - New
$600,000Active2 beds 2 baths5340 N Lincoln Avenue #202, Chicago, IL 60625
MLS# 12618667Listed by: @PROPERTIES CHRISTIE'S INTERNATIONAL REAL ESTATE - Open Sun, 2 to 4pmNew
$600,000Active9 beds 3 baths4520 W Jackson Boulevard, Chicago, IL 60624
MLS# 12618870Listed by: REAL BROKER LLC