3057 N Clifton Avenue #2, Chicago, IL 60657
Local realty services provided by:Better Homes and Gardens Real Estate Star Homes
3057 N Clifton Avenue #2,Chicago, IL 60657
$873,057
- 3 Beds
- 3 Baths
- - sq. ft.
- Condominium
- Sold
Listed by: sophia klopas, jason stratton
Office: jameson sotheby's int'l realty
MLS#:12549367
Source:MLSNI
Sorry, we are unable to map this address
Price summary
- Price:$873,057
- Monthly HOA dues:$362
About this home
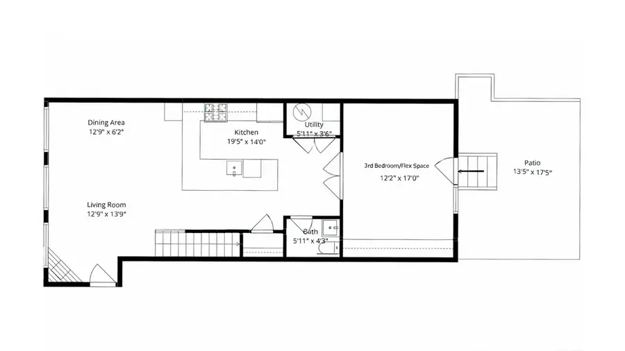
BEST AND FINAL DUE 3/8 BEFORE 8PM - NO ESCALATION CLAUSES - CLEAN CONTRACTS. SELLER WANTS 60 DAY CLOSE AND THEN 30 DAY LEASE BACK. FINANCIALS ON ADDTIONAL INOF TAB - NO PLANNED PROJECTS. WATCH 4K VIDEO WALK THRU ON ADDITIONAL INFO TAB. This stunning duplex-up is located in a beautifully renovated historic church on a quiet, tree-lined street in Lakeview, just steps from the Southport Corridor. Rich architectural details shine throughout, including exposed brick, dramatic arched windows, soaring ceilings, and a spacious open living, dining, and kitchen area anchored by a gas fireplace. The updated kitchen features white shaker cabinetry, quartz countertops, and stainless-steel appliances. The main level includes a cozy family room with custom built-ins and access to a private patio and yard, offering a rare single-family feel. Upstairs are two spacious bedrooms, including a primary suite with California Closets and an updated bath with dual vanities. Attached, heated, deeded garage parking included. Ideally located near top restaurants, boutiques, cafes, parks, the lakefront, and the Belmont El. Roof redone last 3 years. Building tuckpointed in 2019. water heater and furnace replaced 2022. HOA:$361.71/month. Taxes: unit - 12224 park - 740.35. Preffered closing - 60 day close w/ 30 day lease back. Would also do 60 day close pending on offer....
Contact an agent
Home facts
- Year built:1910
- Listing ID #:12549367
- Updated:April 23, 2026 at 06:28 PM
Rooms and interior
- Bedrooms:3
- Total bathrooms:3
- Full bathrooms:2
- Half bathrooms:1
- Rooms Total:6
- Bathrooms Description:Double Sinks, Separate Shower
- Kitchen Description:Dishwasher, Disposal, Freezer, Microwave, Range, Refrigerator, Stainless Steel Appliance(s)
- Basement:Yes
Heating and cooling
- Cooling:Central Air
- Heating:Forced Air, Natural Gas
- Central air:Yes
Structure and exterior
- Roof:Asphalt
- Year built:1910
- Foundation Description:Concrete Perimeter, Stone
Schools
- High school:Lincoln Park High School
- Middle school:Agassiz Elementary School
- Elementary school:Agassiz Elementary School
Utilities
- Water:Public
- Sewer:Public Sewer
Finances and disclosures
- Price:$873,057
- Tax amount:$12,965 (2024)
Features and amenities
- Laundry features:Dryer, Washer
- Amenities:CO Detectors, Ceiling Fan(s)
Parking
- Total parking spaces:1
- Parking description:Attached Garage, Garage
- Garage:Yes
- Garage spaces:1
New listings near 3057 N Clifton Avenue #2
$705,000Pending4 beds 4 baths2,240 sq. ft.4250 W Belmont Avenue #1, Chicago, IL 60641
MLS# 12627955Listed by: AMERICORP, LTD- Open Sat, 12 to 2pmNew
$425,000Active2 beds 2 baths1,100 sq. ft.345 W Fullerton Avenue #2406, Chicago, IL 60614
MLS# 12621040Listed by: JAMESON SOTHEBY'S INTL REALTY - New
$498,500Active5 beds 3 baths1,950 sq. ft.5013 W Bloomingdale Avenue, Chicago, IL 60639
MLS# 12621173Listed by: CHICAGOLAND BROKERS, INC. - Open Sat, 11am to 1pmNew
$450,000Active4 beds 3 baths4626 N Leclaire Avenue, Chicago, IL 60630
MLS# 12623745Listed by: COMPASS - New
$699,000Active4 beds 3 baths1,544 sq. ft.2228 N Central Park Avenue, Chicago, IL 60647
MLS# 12624493Listed by: COMPASS - Open Fri, 5 to 6:30pmNew
$589,900Active4 beds 2 baths2,400 sq. ft.5750 N Merrimac Avenue, Chicago, IL 60646
MLS# 12626094Listed by: JAMESON SOTHEBY'S INTL REALTY - Open Sun, 12 to 2pmNew
$229,000Active1 beds 1 baths900 sq. ft.360 W Wellington Avenue #3C, Chicago, IL 60657
MLS# 12626606Listed by: COMPASS - Open Sat, 12 to 2pmNew
$250,000Active1 beds 1 baths3101 N Kenmore Avenue #3, Chicago, IL 60657
MLS# 12626934Listed by: KELLER WILLIAMS ONECHICAGO - Open Sat, 12 to 2pmNew
$450,000Active2 beds 2 baths1,100 sq. ft.2700 W Belmont Avenue #507, Chicago, IL 60618
MLS# 12627061Listed by: BAIRD & WARNER - New
$1,950,000Active5 beds 4 baths4,234 sq. ft.3111 N Kenmore Avenue, Chicago, IL 60657
MLS# 12627415Listed by: COMPASS