3656 N Damen Avenue #1, Chicago, IL 60618
Local realty services provided by:Better Homes and Gardens Real Estate Star Homes
Listed by:sophia klopas
Office:jameson sotheby's int'l realty
MLS#:12478862
Source:MLSNI
Price summary
- Price:$850,000
- Price per sq. ft.:$314.81
- Monthly HOA dues:$222
About this home
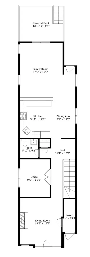
FULL 4K WALK THRU VIDEO ON MLS VIRTUAL TOUR BUTTON. 3 blocks to Audubon School. Stunning 3 Bedroom Plus Office (or 4th bedroom), Duplex Down, light filled corner Lot in the Heart of Roscoe Village. 10 ft ceilings on Both Levels Create an Abundance of Natural Light. Lives Like a Single Family Home with 3 Bedrooms all on the Same Level. Ideal Layout With a Generous Sized Kitchen, Large Peninsula, 42" Cabinets, LG Studio Appliances Including a 5 Burner Stove. Living Room Off the Kitchen Leads to oversized Sized Deck. Separate Family Room With Beautiful Fireplace & East Facing Floor to Ceiling Windows. Hardwood Floors on Main Level Plus Radiant Heat Throughout Lower Level. Crown Molding & Trim Details Abound. Master Suite Features Great Closet Space and Wonderful Spa Like Bathroom. Steam Shower. Jacuzzi Tub. Twin Vanities & Grohe Faucets. Full tear off Roof 2019. A/C 2017. Furnace & Water Heater 2018. Back Up Sump Pump & Battery. Garage Parking Included. Walking Distance to Trader Joe's, Starbucks, Addison Brown Line & All that Roscoe Village/North Center Has to Offer. HOA - 222 Taxes - 9895
Contact an agent
Home facts
- Year built:2005
- Listing ID #:12478862
- Added:5 day(s) ago
- Updated:September 29, 2025 at 12:36 AM
Rooms and interior
- Bedrooms:3
- Total bathrooms:3
- Full bathrooms:2
- Half bathrooms:1
- Living area:2,700 sq. ft.
Heating and cooling
- Cooling:Central Air
- Heating:Forced Air, Natural Gas, Radiant
Structure and exterior
- Roof:Asphalt
- Year built:2005
- Building area:2,700 sq. ft.
Schools
- High school:Lake View High School
- Middle school:Audubon Elementary School
- Elementary school:Audubon Elementary School
Utilities
- Water:Lake Michigan
Finances and disclosures
- Price:$850,000
- Price per sq. ft.:$314.81
- Tax amount:$10,483 (2023)
New listings near 3656 N Damen Avenue #1
- New$590,000Active4 beds 4 baths1,960 sq. ft.
3544 N Nagle Avenue, Chicago, IL 60634
MLS# 12477419Listed by: BAIRD & WARNER - New$975,000Active4 beds 3 baths
466 N Paulina Street #202, Chicago, IL 60622
MLS# 12481890Listed by: PRODAN REALTY INC - New$175,000Active5 beds 2 baths1,906 sq. ft.
9240 S Ada Street, Chicago, IL 60620
MLS# 12482431Listed by: THE WALLACE REAL ESTATE GROUP, INC. - New$515,000Active2 beds 2 baths
111 S Morgan Street #823, Chicago, IL 60607
MLS# 12482739Listed by: COMPASS - New$539,900Active2 beds 2 baths1,300 sq. ft.
3438 N Ashland Avenue #2N, Chicago, IL 60657
MLS# 12478979Listed by: COMPASS - New$259,900Active3 beds 2 baths1,800 sq. ft.
547 E 89th Place, Chicago, IL 60619
MLS# 12463538Listed by: ROMAN PROPERTIES, LLC. - New$489,000Active5 beds 3 baths
2841 N Melvina Avenue, Chicago, IL 60634
MLS# 12482521Listed by: KELLER WILLIAMS PREFERRED REALTY - $179,000Pending1 beds 1 baths850 sq. ft.
3550 N Lake Shore Drive #806, Chicago, IL 60657
MLS# 12482725Listed by: @PROPERTIES CHRISTIE'S INTERNATIONAL REAL ESTATE - New$359,900Active3 beds 2 baths1,180 sq. ft.
8638 S Keeler Avenue, Chicago, IL 60652
MLS# 12471110Listed by: @PROPERTIES CHRISTIE'S INTERNATIONAL REAL ESTATE - New$580,000Active2 beds 2 baths1,500 sq. ft.
1931 N Damen Avenue #2S, Chicago, IL 60647
MLS# 12477605Listed by: BERKSHIRE HATHAWAY HOMESERVICES CHICAGO