3820 N Damen Avenue #3, Chicago, IL 60618
Local realty services provided by:Better Homes and Gardens Real Estate Connections
3820 N Damen Avenue #3,Chicago, IL 60618
$1,195,000
- 3 Beds
- 3 Baths
- 1,720 sq. ft.
- Condominium
- Active
Listed by: gordon munden, mark markarian
Office: jameson sotheby's intl realty
MLS#:12608136
Source:MLSNI
Price summary
- Price:$1,195,000
- Price per sq. ft.:$694.77
- Monthly HOA dues:$248
About this home
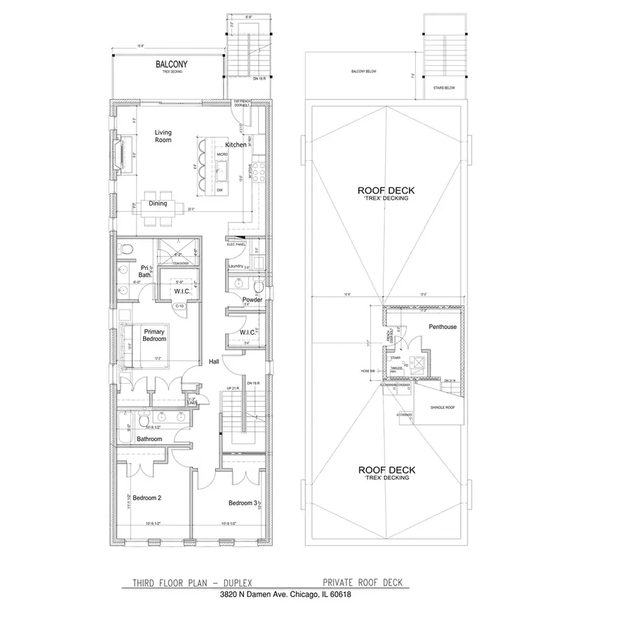
Luxury New Construction Top Floor condo on an oversize 30' wide lot in the desirable neighborhood of North Center and Bell school district set for delivery in June 2026. Brand new 4-unit development built by long standing home builder Strand Partners LLC. Masonry and limestone building with extra-wide luxury condos along with a masonry 3-car garage and Coach House. This high-end home with a timeless facade boasts premier finishes and quality throughout consisting of 3 bedrooms with 2.5 baths a private rooftop deck, penthouse and abundant natural light. Top-of-the-line finishes throughout include custom chef's kitchen featuring eat-in island, custom cabinetry, Thermador professional appliances, natural stone countertops, white oak hardwood floors, and tiled backsplash. Upscale trim includes 8' double panel solid doors with Emtek hardware, 7" base, 3.25" casing, and Kohler kitchen and bath fixtures. Separate Dining Room and bright and spacious Great Room with gas fireplace and stone mantle open to private outdoor space. Designer baths with detailed tile work, primary suite with steam shower, double vanity, and heated floor. Walk-in laundry with full size W/D, separate mechanical room, separate storage room, spacious bedrooms with generous built-out closet space, 10' ceilings, and abundant natural light. Extra insulation and sound proofing between floors, bathrooms and laundry. Weathershield casement and awning windows, a private rooftop deck on entire roof, with Penthhouse wet bar and custom cabinet. With its prime location, you'll enjoy the convenience of being just steps away from all the vibrant shops and award-winning restaurants that Roscoe Village and North Center have to offer including easy access to public transportation, along with the highly regarded Bell school district. If you are looking for extra living quarters there is a spacious one-bedroom coach house listed separately, which would make a great nanny, in-law, or office. Shown by appointment....
Contact an agent
Home facts
- Year built:2026
- Listing ID #:12608136
- Added:1 day(s) ago
- Updated:April 04, 2026 at 11:51 AM
Rooms and interior
- Bedrooms:3
- Total bathrooms:3
- Full bathrooms:2
- Half bathrooms:1
- Rooms Total:7
- Bathrooms Description:Double Sinks, Separate Shower, Soaking Tub, Steam Shower
- Kitchen Description:Dishwasher, High End Refrigerator, Microwave, Range
- Basement:Yes
- Living area:1,720 sq. ft.
Heating and cooling
- Cooling:Central Air
- Heating:Forced Air, Natural Gas, Radiant
- Central air:Yes
Structure and exterior
- Year built:2026
- Building area:1,720 sq. ft.
- Exterior Features:Balcony, Roof Deck
Schools
- Elementary school:Alexander Graham Elementary Scho
Utilities
- Water:Lake Michigan
- Sewer:Public Sewer
Finances and disclosures
- Price:$1,195,000
- Price per sq. ft.:$694.77
Parking
- Total parking spaces:1
- Parking description:Detached Garage, Garage
- Garage:Yes
- Garage spaces:1
New listings near 3820 N Damen Avenue #3
- New
$439,000Active5 beds 3 baths2,400 sq. ft.1810 S Hamlin Avenue, Chicago, IL 60623
MLS# 12586544Listed by: ONIX REALTY, INC. - New
$1,021,500Active3 beds 3 baths1,600 sq. ft.3820 N Damen Avenue #2, Chicago, IL 60618
MLS# 12608125Listed by: JAMESON SOTHEBY'S INTL REALTY - New
$149,000Active4 beds 2 baths1,522 sq. ft.9061 S Parnell Avenue, Chicago, IL 60620
MLS# 12609907Listed by: RE/MAX SUBURBAN - New
$340,000Active1 beds 1 baths858 sq. ft.155 N Harbor Drive #2205, Chicago, IL 60601
MLS# 12609942Listed by: PROSPECT EQUITIES REAL ESTATE - New
$263,500Active4 beds 3 baths1,156 sq. ft.8423 S Colfax Avenue, Chicago, IL 60617
MLS# 12570170Listed by: JMRI CORP - New
$420,000Active3 beds 1 baths1,017 sq. ft.5316 N Rutherford Avenue, Chicago, IL 60656
MLS# 12600741Listed by: MAGGIO REALTY INC. - New
$41,000Active4 beds 2 baths1,635 sq. ft.7919 S Escanaba Avenue, Chicago, IL 60617
MLS# 12609906Listed by: PREMIER MIDWEST REALTY, INC - New
$399,900Active5 beds 3 baths2,394 sq. ft.139 N Laramie Avenue, Chicago, IL 60644
MLS# 12609924Listed by: LUNA REALTY GROUP - New
$300,000Active1 beds 1 baths855 sq. ft.824 W Superior Street #306, Chicago, IL 60642
MLS# 12601154Listed by: BERKSHIRE HATHAWAY HOMESERVICES CHICAGO - New
$299,999Active3 beds 1 baths1,152 sq. ft.6029 S Artesian Avenue, Chicago, IL 60629
MLS# 12609865Listed by: SU FAMILIA REAL ESTATE INC