3613 Sandstone Circle, Elgin, IL 60124
Local realty services provided by:Better Homes and Gardens Real Estate Star Homes
3613 Sandstone Circle,Elgin, IL 60124
$611,990
- 4 Beds
- 3 Baths
- 2,437 sq. ft.
- Single family
- Active
Listed by: bill flemming
Office: homesmart connect llc.
MLS#:12589948
Source:MLSNI
Price summary
- Price:$611,990
- Price per sq. ft.:$251.12
- Monthly HOA dues:$41.67
About this home
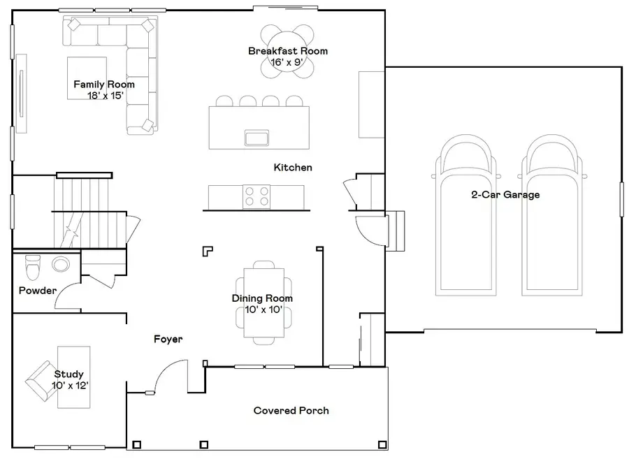
READY FOR JUNE DELIVERY! Homesite #0231. Introducing the Auburn model-a thoughtfully crafted two-story home that combines timeless elegance with everyday practicality. This spacious residence features four well-appointed bedrooms, two full baths, and a convenient powder room-ideal for family living and hosting guests. A private study and formal dining room flank the welcoming foyer, offering versatile spaces for both work and special gatherings. At the heart of the home, the kitchen-with its oversized center island, premium cabinetry, and sleek countertops-flows effortlessly into the breakfast room and the adjacent family room, creating a seamless open-concept layout perfect for daily life and entertaining. Upstairs, the owner's suite provides a serene retreat, complete with a generous walk-in closet and a spacious en-suite bathroom. Three additional bedrooms share the level, along with a second-floor laundry room-adding layout flexibility and modern convenience. With its thoughtful floor plan-formal living and dining areas, a dedicated study, open yet distinct kitchen-family spaces, and a well-equipped upper level-the Auburn model offers a perfect balance of sophistication and functional design. It's a brilliant option for today's modern families. Exterior will be James Hardie Deep Ocean color siding with Manor House exterior color brick. (pic for reference ONLY) *Photos are not this actual home* This is a corner homesite. This community features an array of great amenities, including a splash park, tot lot, picnic area and meandering multi-use trails. Situated on the Fox River, downtown Elgin is filled with historic buildings, shops and restaurants for families to enjoy. Spend time along the Elgin Riverwalk, partake in thrilling games at Grand Victoria Casino and attend lively festivities and events throughout the year....
Contact an agent
Home facts
- Year built:2025
- Listing ID #:12589948
- Added:17 day(s) ago
- Updated:March 29, 2026 at 10:48 AM
Rooms and interior
- Bedrooms:4
- Total bathrooms:3
- Full bathrooms:2
- Half bathrooms:1
- Rooms Total:9
- Dining Description:Breakfast Room
- Kitchen Description:Cooktop, Dishwasher, Disposal, Microwave, Range Hood, Stainless Steel Appliance(s)
- Basement:Yes
- Basement Description:Full, Unfinished
- Living area:2,437 sq. ft.
Heating and cooling
- Cooling:Central Air
- Heating:Forced Air, Natural Gas
- Central air:Yes
Structure and exterior
- Roof:Asphalt
- Year built:2025
- Building area:2,437 sq. ft.
- Levels:2 Story
Schools
- High school:St Charles North High School
- Middle school:Thompson Middle School
- Elementary school:Ferson Creek Elementary School
Utilities
- Water:Public
- Sewer:Public Sewer
Finances and disclosures
- Price:$611,990
- Price per sq. ft.:$251.12
Parking
- Total parking spaces:2
- Parking description:Asphalt, Attached Garage, Garage
- Garage:Yes
- Garage spaces:2
New listings near 3613 Sandstone Circle
- New
$695,000Active4 beds 3 baths2,589 sq. ft.530 Cumberland Trail, Elgin, IL 60123
MLS# 12604056Listed by: PETER DROSSOS REAL ESTATE - New
$480,000Active2 beds 2 baths1,933 sq. ft.2791 Beacon Point Circle, Elgin, IL 60124
MLS# 12593171Listed by: BAIRD & WARNER - New
$410,000Active4 beds 3 baths1,872 sq. ft.2478 Crystal Creek Lane, Elgin, IL 60124
MLS# 12593495Listed by: KELLER WILLIAMS INFINITY - New
$415,000Active4 beds 3 baths3,187 sq. ft.585 Park Street, Elgin, IL 60120
MLS# 12602532Listed by: RE/MAX ALL PRO - New
$295,000Active3 beds 3 baths1,450 sq. ft.1780 Pebble Beach Circle, Elgin, IL 60123
MLS# 12603928Listed by: LUNA REAL ESTATE INC. - Open Sun, 12 to 2pmNew
$270,000Active3 beds 2 baths1,255 sq. ft.1670 College Green Drive, Elgin, IL 60123
MLS# 12603535Listed by: MPOWER RESIDENTIAL BROKERAGE LLC - Open Sun, 12 to 2pmNew
$430,000Active4 beds 3 baths2,410 sq. ft.1932 Banks Drive, Elgin, IL 60123
MLS# 12590066Listed by: REDFIN CORPORATION - New
$593,365Active4 beds 3 baths2,536 sq. ft.552 Ayre Drive, Elgin, IL 60124
MLS# 12603409Listed by: HOMESMART CONNECT LLC - New
$599,535Active4 beds 3 baths2,662 sq. ft.589 Lismore Circle, Elgin, IL 60124
MLS# 12603434Listed by: HOMESMART CONNECT LLC - New
$529,990Active4 beds 3 baths2,235 sq. ft.549 Ayre Drive, Elgin, IL 60124
MLS# 12603395Listed by: HOMESMART CONNECT LLC