12136 Kelsey Drive, Huntley, IL 60142
Local realty services provided by:Better Homes and Gardens Real Estate Star Homes
12136 Kelsey Drive,Huntley, IL 60142
$343,490
- 3 Beds
- 3 Baths
- - sq. ft.
- Townhouse
- Sold
Listed by: bill flemming
Office: homesmart connect llc.
MLS#:12423816
Source:MLSNI
Sorry, we are unable to map this address
Price summary
- Price:$343,490
- Monthly HOA dues:$230
About this home
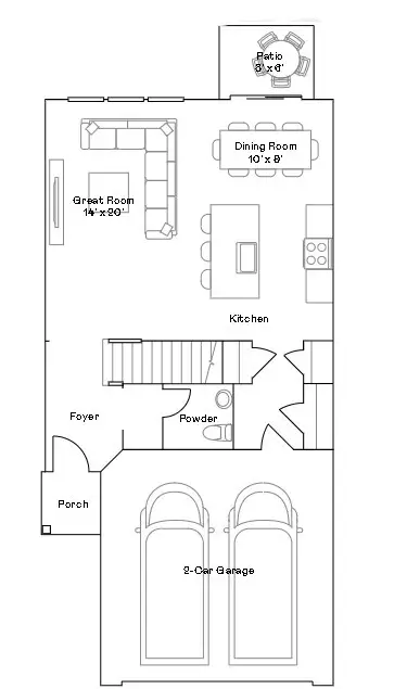
AVAILABLE NOW! Homesite #4904 Introducing the Marianne, a newly designed two-story townhome that seamlessly blends comfort and elegance. This model offers three spacious bedrooms, two full baths, a half bath, and a contemporary open-concept living space, complete with a two-car garage for added convenience. The first floor features the great room, the focal point of the home, effortlessly flowing into the dining area and the chef-inspired kitchen. The kitchen boasts a magnificent island with a breakfast bar, 42" cabinets, polished quartz countertops, and top-of-the-line stainless steel appliances. Luxury vinyl plank flooring spans the main floor, while sliding glass doors open to the patio, ideal for outdoor relaxation. On the second floor, you'll find two generously sized secondary bedrooms, along with the exquisite owner's suite-a true sanctuary to unwind after a busy day. This serene retreat includes a generous walk-in closet and a spa-inspired bath, complete with a deluxe shower for the ultimate relaxation experience. Complete with a convenient upstairs laundry room, the Marianne combines thoughtful design and modern amenities, offering both comfort and style in every corner. *Photos are not this actual home* Regency Square offers an exciting opportunity to own a new home in the heart of Huntley, just minutes from its vibrant and bustling downtown. Designed for a variety of lifestyles, this thoughtfully planned community will feature a three-acre park, dog park, and a scenic lake, all providing residents with a peaceful connection to nature and plenty of space to relax and recharge. Just around the corner, Deicke Park offers expansive green space ideal for picnics, sports, and outdoor fun. With walking trails, a serene pond, and playgrounds for all ages, it's the perfect local retreat for families and individuals alike. Downtown Huntley enhances the lifestyle with its charming small-town atmosphere, tree-lined streets, and a wide variety of boutiques, cafes, and restaurants. Whether you're exploring local artisan shops or enjoying a cozy meal at a favorite eatery, there's something to discover around every corner. For those seeking fun and adventure, the Stingray Bay Aquatic Center is just minutes away. Dive into excitement with a massive pool, thrilling water slides, and a splash park perfect for younger kids-offering a mix of relaxation and recreation for all ages. At Regency Square, you're not just finding a home-you're becoming part of a community rich in amenities, charm, and everyday convenience.
Contact an agent
Home facts
- Year built:2025
- Listing ID #:12423816
- Added:51 day(s) ago
- Updated:November 21, 2025 at 09:20 PM
Rooms and interior
- Bedrooms:3
- Total bathrooms:3
- Full bathrooms:2
- Half bathrooms:1
Heating and cooling
- Cooling:Central Air
- Heating:Forced Air, Natural Gas
Structure and exterior
- Roof:Asphalt
- Year built:2025
Schools
- High school:Huntley High School
- Middle school:Heineman Middle School
- Elementary school:Leggee Elementary School
Utilities
- Water:Public
- Sewer:Public Sewer
Finances and disclosures
- Price:$343,490
New listings near 12136 Kelsey Drive
- New
$279,900Active2 beds 2 baths1,130 sq. ft.Address Withheld By Seller, Huntley, IL 60142
MLS# 12520028Listed by: EXP REALTY - ST. CHARLES - Open Sat, 10:30am to 12:30pmNew
$369,000Active2 beds 2 baths1,604 sq. ft.13322 Arboretum Lane, Huntley, IL 60142
MLS# 12521838Listed by: HUNTLEY REALTY - New
$395,000Active2 beds 2 baths1,670 sq. ft.Address Withheld By Seller, Huntley, IL 60142
MLS# 12511674Listed by: ONE3 REALTY - New
$560,000Active4 beds 3 baths3,386 sq. ft.13116 Eakin Creek Court, Huntley, IL 60142
MLS# 12521777Listed by: KELLER WILLIAMS SUCCESS REALTY - New
$90,000Active1.01 Acres10216 Ellery Lane, Huntley, IL 60142
MLS# 12521712Listed by: BROKEROCITY - Open Sat, 11am to 1pmNew
$428,000Active2 beds 2 baths1,908 sq. ft.13515 Ivy Drive, Huntley, IL 60142
MLS# 12520211Listed by: BERKSHIRE HATHAWAY HOMESERVICES STARCK REAL ESTATE - New
$335,000Active2 beds 2 baths1,378 sq. ft.12620 Oak Grove Drive, Huntley, IL 60142
MLS# 12521294Listed by: MYSLICKI REAL ESTATE
$371,440Pending3 beds 3 baths1,717 sq. ft.12208 Dodwell Street, Huntley, IL 60142
MLS# 12521302Listed by: HOMESMART CONNECT LLC- New
$270,000Active2 beds 2 baths1,190 sq. ft.13390 Red Alder Avenue, Huntley, IL 60142
MLS# 12520834Listed by: BERKSHIRE HATHAWAY HOMESERVICES STARCK REAL ESTATE - New
$649,900Active4 beds 4 baths4,100 sq. ft.Address Withheld By Seller, Huntley, IL 60142
MLS# 12514585Listed by: 103 REALTY