12207 Dodwell Street, Huntley, IL 60142
Local realty services provided by:Better Homes and Gardens Real Estate Connections
12207 Dodwell Street,Huntley, IL 60142
$355,990
- 3 Beds
- 3 Baths
- 1,767 sq. ft.
- Townhouse
- Pending
Listed by: bill flemming
Office: homesmart connect llc.
MLS#:12502530
Source:MLSNI
Price summary
- Price:$355,990
- Price per sq. ft.:$201.47
- Monthly HOA dues:$230
About this home
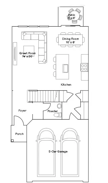
AVAILABLE NOW! Homesite #5802 Introducing the Marianne, a newly designed two-story townhome that seamlessly blends comfort and elegance. This model offers three spacious bedrooms, two full baths, a half bath, and a contemporary open-concept living space, complete with a two-car garage for added convenience. The first floor features the great room, the focal point of the home, effortlessly flowing into the dining area and the chef-inspired kitchen. The kitchen boasts a magnificent island with a breakfast bar, 42" cabinets, polished quartz countertops, and top-of-the-line stainless steel appliances. Luxury vinyl plank flooring spans the main floor, while sliding glass doors open to the patio, ideal for outdoor relaxation. On the second floor, you'll find two generously sized secondary bedrooms, along with the exquisite owner's suite-a true sanctuary to unwind after a busy day. This serene retreat includes a generous walk-in closet and a spa-inspired bath, complete with a deluxe shower for the ultimate relaxation experience. Complete with a convenient upstairs laundry room, the Marianne combines thoughtful design and modern amenities, offering both comfort and style in every corner. *Photos are not this actual home* Regency Square offers an exciting opportunity to own a new home in the heart of Huntley, just minutes from its vibrant and bustling downtown. Designed for a variety of lifestyles, this thoughtfully planned community will feature a three-acre park, dog park, and a scenic lake, all providing residents with a peaceful connection to nature and plenty of space to relax and recharge. Just around the corner, Deicke Park offers expansive green space ideal for picnics, sports, and outdoor fun. With walking trails, a serene pond, and playgrounds for all ages, it's the perfect local retreat for families and individuals alike. Downtown Huntley enhances the lifestyle with its charming small-town atmosphere, tree-lined streets, and a wide variety of boutiques, cafes, and restaurants. Whether you're exploring local artisan shops or enjoying a cozy meal at a favorite eatery, there's something to discover around every corner. For those seeking fun and adventure, the Stingray Bay Aquatic Center is just minutes away. Dive into excitement with a massive pool, thrilling water slides, and a splash park perfect for younger kids-offering a mix of relaxation and recreation for all ages. At Regency Square, you're not just finding a home-you're becoming part of a community rich in amenities, charm, and everyday convenience.
Contact an agent
Home facts
- Year built:2025
- Listing ID #:12502530
- Added:112 day(s) ago
- Updated:February 12, 2026 at 12:28 PM
Rooms and interior
- Bedrooms:3
- Total bathrooms:3
- Full bathrooms:2
- Half bathrooms:1
- Living area:1,767 sq. ft.
Heating and cooling
- Cooling:Central Air
- Heating:Forced Air, Natural Gas
Structure and exterior
- Roof:Asphalt
- Year built:2025
- Building area:1,767 sq. ft.
Schools
- High school:Huntley High School
- Middle school:Heineman Middle School
- Elementary school:Leggee Elementary School
Utilities
- Water:Public
- Sewer:Public Sewer
Finances and disclosures
- Price:$355,990
- Price per sq. ft.:$201.47
New listings near 12207 Dodwell Street
- New
$379,900Active2 beds 2 baths1,558 sq. ft.14042 Verbend Path, Huntley, IL 60142
MLS# 12566323Listed by: WORTH CLARK REALTY - Open Fri, 12 to 5pmNew
$521,300Active3 beds 2 baths1,850 sq. ft.11690 Ryann Road, Huntley, IL 60142
MLS# 12564362Listed by: PREMIER LIVING PROPERTIES - Open Sat, 1 to 3pmNew
$415,000Active2 beds 2 baths1,734 sq. ft.13962 Redmond Drive, Huntley, IL 60142
MLS# 12562217Listed by: BAIRD & WARNER FOX VALLEY - GENEVA - New
$399,900Active2 beds 2 baths1,579 sq. ft.9186 Ritz Court, Huntley, IL 60142
MLS# 12566001Listed by: COMPASS
$364,900Pending2 beds 2 baths1,512 sq. ft.12236 Barcroft Circle, Huntley, IL 60142
MLS# 12565847Listed by: HOMESMART CONNECT LLC
$395,990Pending3 beds 3 baths1,840 sq. ft.12189 Dodwell Street, Huntley, IL 60142
MLS# 12565853Listed by: HOMESMART CONNECT LLC- Open Sun, 12 to 2pmNew
$295,500Active2 beds 3 baths1,465 sq. ft.10037 Cummings Street #503, Huntley, IL 60142
MLS# 12565757Listed by: HOME SOLUTIONS REAL ESTATE - New
$599,990Active3 beds 3 baths2,470 sq. ft.10824 Saxony Street, Huntley, IL 60142
MLS# 12565586Listed by: LITTLE REALTY
$648,950Pending4 beds 3 baths2,872 sq. ft.11270 Saxony Street, Huntley, IL 60142
MLS# 12565352Listed by: LITTLE REALTY- New
$285,000Active2 beds 3 baths1,381 sq. ft.11010 Cape Cod Lane #3, Huntley, IL 60142
MLS# 12564458Listed by: COMPASS