lot 36 Ryann Road, Huntley, IL 60142
Local realty services provided by:Better Homes and Gardens Real Estate Connections
lot 36 Ryann Road,Huntley, IL 60142
$521,300
- 3 Beds
- 2 Baths
- 1,850 sq. ft.
- Single family
- Pending
Listed by: tamara o'connor
Office: premier living properties
MLS#:12607459
Source:MLSNI
Price summary
- Price:$521,300
- Price per sq. ft.:$281.78
- Monthly HOA dues:$175
About this home
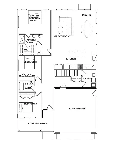
Fantastic New Construction in Huntley has model ready NOW to view! New build deliveries available in 4-6 months from contract! Welcome to Stillwell Grove-a charming enclave of only 41 detached homesites- with no neighbors behind you- just open prairie space, offering the perfect blend of privacy and community. This featured ranch, the Cedar plan offers 1850 sq ft of one-level living with a FULL BASEMENT and open staircase design, a sun-filled GREAT ROOM CONCEPT with seamless flow between the ISLAND kitchen, living, and dining areas, three bedrooms and two full baths including a relaxing primary suite with walk-in closet, dual sinks, and walk-in shower and private water closet, and a convenient AND SPACIOUS Mudroom/laundry room off the back hall. An attached 2-car garage, central air, and a host of upscale finishes are all included as standards. This neighborhood is not age-restricted and provides the ease of lawn care and snow removal included-true low-maintenance living at its best! Choose from thoughtfully designed ranches and 2-story homes, each featuring inviting covered FRONT PORCHES that set the stage for warm welcomes and outdoor relaxation. Serviced by the highly rated Huntley School District 158 and right near the booming Rt. 47 corridor-putting shopping, dining, and conveniences just steps from your door. TAKING CONTRACTS/LOT RESERVATIONS NOW-be a part of Huntley's newest community: Stillwell Grove! Location notes: I-90 to Route 47 North to Powers Rd (By the Culvers) East to Samantha Lane to Development at corner of Samantha and Ryann...
Contact an agent
Home facts
- Year built:2026
- Listing ID #:12607459
- Updated:April 09, 2026 at 07:43 AM
Rooms and interior
- Bedrooms:3
- Total bathrooms:2
- Full bathrooms:2
- Rooms Total:6
- Dining Description:Combined With Living Room
- Bathrooms Description:Double Sinks
- Kitchen Description:Dishwasher, Disposal, Microwave, Range
- Basement:Yes
- Basement Description:Full, Unfinished
- Living area:1,850 sq. ft.
Heating and cooling
- Cooling:Central Air
- Heating:Forced Air, Natural Gas
- Central air:Yes
Structure and exterior
- Roof:Asphalt
- Year built:2026
- Building area:1,850 sq. ft.
- Lot area:0.33 Acres
- Architectural Style:Ranch
- Foundation Description:Concrete Perimeter
- Levels:1 Story
Schools
- High school:Huntley High School
- Middle school:Heineman Middle School
- Elementary school:Mackeben Elementary School
Utilities
- Water:Public
- Sewer:Public Sewer
Finances and disclosures
- Price:$521,300
- Price per sq. ft.:$281.78
Parking
- Total parking spaces:2
- Parking description:Asphalt, Attached Garage, Garage
- Garage:Yes
- Garage spaces:2
New listings near lot 36 Ryann Road
- New
$337,500Active3 beds 3 baths1,764 sq. ft.8988 Dolby Street, Huntley, IL 60142
MLS# 12607184Listed by: KELLER WILLIAMS SUCCESS REALTY - Open Sun, 11am to 1pmNew
$439,900Active2 beds 2 baths1,677 sq. ft.11660 Windsor Drive, Huntley, IL 60142
MLS# 12607627Listed by: HUNTLEY REALTY - New
$391,990Active3 beds 3 baths1,840 sq. ft.12175 Dodwell Street, Huntley, IL 60142
MLS# 12613224Listed by: HOMESMART CONNECT LLC - New
$410,490Active3 beds 3 baths2,175 sq. ft.12330 Tinsley Street, Huntley, IL 60142
MLS# 12613240Listed by: HOMESMART CONNECT LLC
$401,000Pending3 beds 3 baths2,175 sq. ft.12381 Tinsley Street, Huntley, IL 60142
MLS# 12613174Listed by: HOMESMART CONNECT LLC- New
$579,990Active4 beds 3 baths2,836 sq. ft.9957 Edgebrook Lane, Huntley, IL 60142
MLS# 12613091Listed by: DAYNAE GAUDIO - Open Sat, 11am to 1pmNew
$529,900Active5 beds 4 baths3,550 sq. ft.10999 Manhattan Drive, Huntley, IL 60142
MLS# 12607841Listed by: HOMESMART CONNECT LLC
$396,590Pending3 beds 3 baths2,175 sq. ft.12300 Tinsley Street, Huntley, IL 60142
MLS# 12612072Listed by: HOMESMART CONNECT LLC- New
$346,000Active2 beds 2 baths1,261 sq. ft.12333 Black Oak Trail, Huntley, IL 60142
MLS# 12610685Listed by: HUNTLEY REALTY
$813,750Pending5 beds 4 baths3,145 sq. ft.10925 Saxony Street, Huntley, IL 60142
MLS# 12610947Listed by: LITTLE REALTY