6603-6605 Gardner, Quincy, IL 62305
Local realty services provided by:Better Homes and Gardens Real Estate Star Homes
6603-6605 Gardner,Quincy, IL 62305
$408,000
- 4 Beds
- 2 Baths
- 2,350 sq. ft.
- Single family
- Active
Listed by: diana waschenbach-gronewold
Office: zanger & associates, inc.
MLS#:QC4268826
Source:MLSNI
Price summary
- Price:$408,000
- Price per sq. ft.:$173.62
About this home
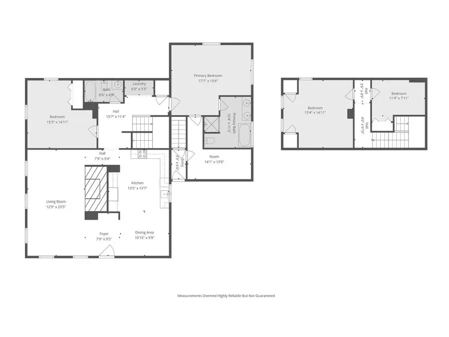
Modern Homesteaders Paradise! Discover the perfect blend of modern elegance and timeless charm in this meticulously renovated gem located on the outskirts of Quincy. Set on an expansive 5.17 acres this stunning 4-bedroom, 2-bathroom home offers a rare opportunity to enjoy serene living with contemporary comforts. Spanning 2350 square feet, every inch has been thoughtfully updated in 2025-from plumbing, electric, HVAC, insulation, custom kitchen, and baths, flooring, paint, fixtures, appliances, windows, doors, siding, patio, decking, landscaping, and pond expansion-ensuring peace of mind for years to come. Step inside to find sleek modern finishes. Other room is a 6x13master walk-in closet. The spacious layout is perfect for entertaining, featuring light-filled rooms that capture breathtaking views of your private paradise. Venture outdoors to explore winding trails bordered by lush woods, and a picturesque pond boasting nature's beauty. This remarkable property is nestled within the sought-after Quincy School District, combining rural tranquility with urban convenience. Don't miss your chance to own this extraordinary home where modern luxury meets country charm. Schedule a tour today and imagine the memories waiting to be made! One or more photos are virtually staged.
Contact an agent
Home facts
- Listing ID #:QC4268826
- Added:12 day(s) ago
- Updated:December 31, 2025 at 04:05 PM
Rooms and interior
- Bedrooms:4
- Total bathrooms:2
- Full bathrooms:2
- Living area:2,350 sq. ft.
Heating and cooling
- Cooling:Central Air
- Heating:Natural Gas
Structure and exterior
- Building area:2,350 sq. ft.
- Lot area:5.17 Acres
Schools
- High school:Quincy School District #172
- Middle school:Quincy JR High
- Elementary school:Lincoln-Douglas
Finances and disclosures
- Price:$408,000
- Price per sq. ft.:$173.62
- Tax amount:$3,339 (2024)
New listings near 6603-6605 Gardner
- New
$119,500Active2 beds 1 baths887 sq. ft.913 N 12th Street, Quincy, IL 62301
MLS# 12537922Listed by: ZANGER & ASSOCIATES, INC., REALTORS - New
$189,900Active2 beds 3 baths1,320 sq. ft.2119 Jefferson St, Quincy, IL 62301
MLS# 12537208Listed by: BOWER & ASSOCIATES, INC., REALTORS
$425,000Active3 beds 2 baths2,038 sq. ft.4919 Columbus Road, Quincy, IL 62305
MLS# 12535021Listed by: ZANGER & ASSOCIATES, INC., REALTORS
$215,000Active3 beds 2 baths2,254 sq. ft.2433 Cedar Creek Court, Quincy, IL 62305-1339
MLS# QC4259565Listed by: ZANGER & ASSOCIATES, INC.
$50,000Active1 beds 1 baths1,728 sq. ft.1715 N 4th Street, Quincy, IL 62301
MLS# QC4266557Listed by: BOWER & ASSOCIATES INC., REALTORS
$109,000Active3 beds 2 baths1,832 sq. ft.623 Payson Avenue, Quincy, IL 62301
MLS# QC4266731Listed by: ZANGER & ASSOCIATES, INC.
$45,000Active2 beds 2 baths1,357 sq. ft.324 Lind Street, Quincy, IL 62301
MLS# QC4267188Listed by: ZANGER & ASSOCIATES, INC.
$109,900Active2 beds 1 baths1,257 sq. ft.1313 Ohio Street, Quincy, IL 62301
MLS# QC4268735Listed by: BOWER & ASSOCIATES INC., REALTORS
$137,500Pending2 beds 1 baths1,504 sq. ft.614 S 22nd Street, Quincy, IL 62301
MLS# QC4269690Listed by: SWICK REALTY