1611 E Thornton Drive, Bloomington, IN 47401
Local realty services provided by:Better Homes and Gardens Real Estate Connections
Listed by: jamie morris
Office: century 21 scheetz - bloomington
MLS#:202608102
Source:Indiana Regional MLS
Price summary
- Price:$399,900
- Price per sq. ft.:$163.29
About this home
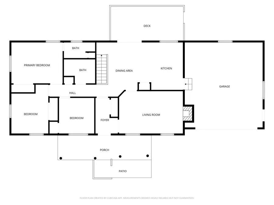
Updated and well-maintained brick ranch over a partially finished walk-out basement. New LVP flooring throughout the main level and fresh interior paint. Kitchen with new quartz counters, stainless KitchenAid appliances, double ovens, pantry, new sink, faucet, and cabinet hardware. Living room with abundant natural light and a fireplace with tile surround. Additional improvements include electrical switches, new interior doors and hardware, lighting, and a new vanity top. Modern conveniences such as remote-controlled blinds, a doorbell camera, and a whole-house generator. Walk-out basement offers flexible living space with a finished family room with new carpet and handrail, plus a large unfinished workshop with built-in workbench, pegboard, utility sink, floor drain, and dehumidifier. Maytag front-load washer and dryer included. Outdoor amenities include a large covered front porch, and rear deck overlooking the fenced yard with coated chain-link fencing. Flat driveway allows easy access and additional parking, including space for RV parking by the garage....
Contact an agent
Home facts
- Year built:1989
- Listing ID #:202608102
- Added:56 day(s) ago
- Updated:May 08, 2026 at 02:56 PM
Rooms and interior
- Bedrooms:3
- Total bathrooms:2
- Full bathrooms:2
- Rooms Total:9
- Flooring:Carpet, Concrete, Vinyl
- Dining Description:Main Level
- Kitchen Description:Dishwasher, Ice Maker, Microwave, On Main Level, Oven-Double, Range-Gas, Refrigerator
- Basement Description:Full Basement, Partially Finished, Slab, Walk-Out Basement
- Living area:1,649 sq. ft.
Heating and cooling
- Cooling:Central Air
- Heating:Gas
Structure and exterior
- Roof:Dimensional Shingles
- Year built:1989
- Building area:1,649 sq. ft.
- Lot area:0.19 Acres
- Lot Features:Irregular
- Architectural Style:One Story, Ranch
- Construction Materials:Brick, Vinyl
- Exterior Features:Deck Open, Landscaped, Porch Covered
- Levels:1 Story
Schools
- High school:Bloomington South
- Middle school:Jackson Creek
- Elementary school:Childs
Utilities
- Water:City
- Sewer:City
Finances and disclosures
- Price:$399,900
- Price per sq. ft.:$163.29
- Tax amount:$3,050
Features and amenities
- Laundry features:In Basement, Washer Hook-Up
- Amenities:Attic Storage, Ceiling Fan(s), Countertops-Solid Surf, Detector-Smoke, Garage Door Opener, Generator-Whole House, Sidewalks, Workshop
Parking
- Parking description:Attached, Concrete Driveway, Off Street Parking
- Garage spaces:2
New listings near 1611 E Thornton Drive
- Open Sun, 1:30 to 3:30pmNew
$325,000Active3 beds 2 baths1,896 sq. ft.815 S Winridge Court, Bloomington, IN 47403
MLS# 202617164Listed by: THE JUANSELLS.COM REALTY CO - New
$549,900Active4 beds 4 baths3,687 sq. ft.4186 W Boheny Drive, Bloomington, IN 47404
MLS# 202617162Listed by: RE/MAX ACCLAIMED PROPERTIES - New
$529,900Active3 beds 3 baths2,571 sq. ft.2512 E Rock Creek Drive, Bloomington, IN 47401
MLS# 202617110Listed by: RE/MAX ACCLAIMED PROPERTIES
$505,000Active4 beds 2 baths2,462 sq. ft.1315 W Dittemore Road, Bloomington, IN 47404
MLS# 202615001Listed by: FC TUCKER/BLOOMINGTON REALTORS- New
$425,000Active4 beds 4 baths2,922 sq. ft.4317 E Morningside Drive, Bloomington, IN 47408
MLS# 202617087Listed by: BECKY WANN REAL ESTATE SERVICES - New
$389,000Active3 beds 3 baths2,400 sq. ft.805 W Hedgewood Drive, Bloomington, IN 47403
MLS# 202617062Listed by: RE/MAX ACCLAIMED PROPERTIES - New
$450,000Active5 beds 3 baths3,970 sq. ft.4619 N Louden Road, Bloomington, IN 47404
MLS# 202617067Listed by: WILLIAMS CARPENTER REALTORS - New
$750,000Active4 beds 6 baths7,901 sq. ft.3264 N Ramble Road W, Bloomington, IN 47408
MLS# 22094128Listed by: CENTURY 21 SCHEETZ - New
$199,000Active2 beds 2 baths987 sq. ft.9328 S Lake Ridge Drive #62, Bloomington, IN 47401
MLS# 22100091Listed by: EAGLE POINTE REALTY - New
$775,000Active3 beds 2 baths2,747 sq. ft.705 W 4th Street, Bloomington, IN 47404
MLS# 202617027Listed by: INFINITY REALTY SOLUTIONS