18625 158 Th Street, Basehor, KS 66007
Local realty services provided by:Better Homes and Gardens Real Estate Kansas City Homes
18625 158 Th Street,Basehor, KS 66007
$2,800,000
- 0 Acres
- Lots / Land
- Active
Listed by: krishna chinnam
Office: keller williams realty partners inc.
MLS#:2603848
Source:MOKS_HL
Price summary
- Price:$2,800,000
About this home
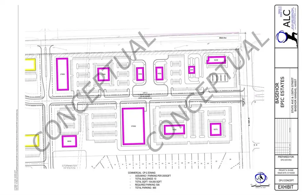
Multiple listings on-site. This listing is for the highlighted section of the plan only.
Outstanding 21.86± acre commercial development opportunity at 18625 168th Street, Basehor, KS 66007. This offering represents the highlighted commercial portion of the master plan and is positioned to become a cornerstone retail and business destination within one of Basehor’s fastest-growing corridors.
Prime Visibility & Positioning
Located directly across from the new Fareway Grocery Store, this tract benefits from strong daily traffic counts and built-in consumer activity. Immediate proximity to Basehor-Linwood schools further enhances daytime population and long-term retail demand.
Infrastructure in Place
• Water mains along north and east property lines
• Sewer extended approximately halfway into the site
• Utilities available on or immediately adjacent
• Reduced development timeline and lower upfront capital costs
Scale & Flexibility
One of the largest remaining commercially zoned tracts along the Hwy 24/40 corridor, offering the rare opportunity to design a cohesive retail center, mixed commercial campus, grocery shadow center, medical plaza, or large-format retail development.
Regional Growth Advantage
Strategically positioned within minutes of the Legends area and the greater Kansas City metro, the site captures both regional traffic and strong local rooftops. As residential growth accelerates in Basehor, this property stands to serve as a primary commercial hub for the community.
Development Ready
Preliminary site concepts have been prepared, allowing developers to move efficiently toward approvals and vertical construction.
Investment Highlights
• 21.86± acres – Commercial zoning
• Direct frontage on paved, public-maintained roads
• High-visibility corridor location
• Adjacent to new grocery anchor
• Located within an expanding residential growth market
A rare large-scale commercial opportunity with infrastructure advantages....
Contact an agent
Home facts
- Listing ID #:2603848
- Added:48 day(s) ago
- Updated:April 14, 2026 at 02:17 PM
Structure and exterior
- Lot Features:City Limits
Utilities
- Water:Rural
- Sewer:Septic Tank
Finances and disclosures
- Price:$2,800,000
New listings near 18625 158 Th Street
- Open Sat, 11am to 1pmNew
$443,950Active4 beds 3 baths2,074 sq. ft.6987 141st Street, Basehor, KS 66007
MLS# 2606490Listed by: LYNCH REAL ESTATE - Open Sun, 1 to 3pmNew
$647,000Active4 beds 5 baths3,158 sq. ft.15511 Spruce Street, Basehor, KS 66007
MLS# 2604420Listed by: REECENICHOLS PREMIER REALTY
$475,000Pending3 beds 3 baths1,937 sq. ft.18604 152nd Street, Basehor, KS 66007
MLS# 2613541Listed by: BOSS REALTY- New
$485,000Active4 beds 3 baths2,336 sq. ft.6992 141st Street, Basehor, KS 66007
MLS# 2613178Listed by: KW INTEGRITY - New
$14,300,000Active7 beds 9 baths12,189 sq. ft.19661 171st Street, Basehor, KS 66007
MLS# 2610064Listed by: SAGE SOTHEBY'S INTERNATIONAL REALTY - New
$359,900Active3 beds 2 baths1,718 sq. ft.15510 Iron Creek Court, Basehor, KS 66007
MLS# 2609618Listed by: REILLY REAL ESTATE LLC - New
$435,000Active4 beds 3 baths2,044 sq. ft.6983 141st Street, Basehor, KS 66007
MLS# 2612239Listed by: LYNCH REAL ESTATE
$375,000Pending3 beds 2 baths1,230 sq. ft.16701 Parallel Road, Basehor, KS 66007
MLS# 2611931Listed by: SPEEDWAY REALTY LLC
$649,500Pending5 beds 5 baths3,803 sq. ft.830 Evergreen Street, Basehor, KS 66007
MLS# 2606231Listed by: PLATINUM REALTY LLC
$449,950Pending3 beds 3 baths2,374 sq. ft.16719 Ruby Way, Basehor, KS 66007
MLS# 2602844Listed by: LYNCH REAL ESTATE