18625 158th. Street, Basehor, KS 66007
Local realty services provided by:Better Homes and Gardens Real Estate Kansas City Homes
18625 158th. Street,Basehor, KS 66007
$6,000,000
- 0 Acres
- Lots / Land
- Active
Listed by: krishna chinnam
Office: keller williams realty partners inc.
MLS#:2604271
Source:MOKS_HL
Price summary
- Price:$6,000,000
About this home
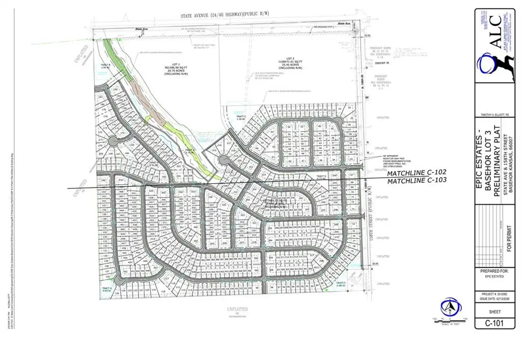
Exceptional opportunity to acquire approximately 110± acres planned for 470 single-family residential lots at 18625 168th Street, Basehor, KS 66007. Positioned within one of the fastest-growing areas in the western Kansas City metro, this property offers scale, location, and infrastructure advantages ideal for a master-planned residential community.
Development Scale & Vision
Preliminarily designed for 470 single-family lots, this tract provides the rare opportunity to control a large residential footprint in a high-demand market. The site layout supports efficient phasing, attractive lot configuration, and strong absorption potential.
Strategic Location
Located along the Hwy 24/40 corridor, the property offers convenient access to the greater Kansas City metro while maintaining the appeal of a growing suburban community. Proximity to new retail development, grocery, and Basehor-Linwood schools enhances long-term buyer demand.
Infrastructure & Accessibility
• Utilities available on-site or immediately adjacent
• Water mains nearby
• Sewer infrastructure extended into portions of the master development
• Frontage on paved, public-maintained roads
High-Growth Corridor
Surrounded by expanding residential and commercial activity, this property is ideally positioned to meet increasing housing demand in Basehor and the surrounding metro area.
Investment Highlights
• 110± acres
• 470 planned single-family lots
• Master-planned development potential
• Strong residential growth market
• Phased build-out capability
A rare large-scale residential development opportunity offering location, scale, and long-term upside in a rapidly expanding community...
Contact an agent
Home facts
- Listing ID #:2604271
- Added:46 day(s) ago
- Updated:April 14, 2026 at 02:17 PM
Structure and exterior
- Lot Features:City Limits
Utilities
- Water:Rural
- Sewer:Septic Tank
Finances and disclosures
- Price:$6,000,000
New listings near 18625 158th. Street
- Open Sat, 11am to 1pmNew
$443,950Active4 beds 3 baths2,074 sq. ft.6987 141st Street, Basehor, KS 66007
MLS# 2606490Listed by: LYNCH REAL ESTATE - Open Sun, 1 to 3pmNew
$647,000Active4 beds 5 baths3,158 sq. ft.15511 Spruce Street, Basehor, KS 66007
MLS# 2604420Listed by: REECENICHOLS PREMIER REALTY
$475,000Pending3 beds 3 baths1,937 sq. ft.18604 152nd Street, Basehor, KS 66007
MLS# 2613541Listed by: BOSS REALTY- New
$485,000Active4 beds 3 baths2,336 sq. ft.6992 141st Street, Basehor, KS 66007
MLS# 2613178Listed by: KW INTEGRITY - New
$14,300,000Active7 beds 9 baths12,189 sq. ft.19661 171st Street, Basehor, KS 66007
MLS# 2610064Listed by: SAGE SOTHEBY'S INTERNATIONAL REALTY - New
$359,900Active3 beds 2 baths1,718 sq. ft.15510 Iron Creek Court, Basehor, KS 66007
MLS# 2609618Listed by: REILLY REAL ESTATE LLC - New
$435,000Active4 beds 3 baths2,044 sq. ft.6983 141st Street, Basehor, KS 66007
MLS# 2612239Listed by: LYNCH REAL ESTATE
$375,000Pending3 beds 2 baths1,230 sq. ft.16701 Parallel Road, Basehor, KS 66007
MLS# 2611931Listed by: SPEEDWAY REALTY LLC
$649,500Pending5 beds 5 baths3,803 sq. ft.830 Evergreen Street, Basehor, KS 66007
MLS# 2606231Listed by: PLATINUM REALTY LLC
$449,950Pending3 beds 3 baths2,374 sq. ft.16719 Ruby Way, Basehor, KS 66007
MLS# 2602844Listed by: LYNCH REAL ESTATE