22117 W 94th Terrace, Lenexa, KS 66220
Local realty services provided by:Better Homes and Gardens Real Estate Kansas City Homes
22117 W 94th Terrace,Lenexa, KS 66220
$799,950
- 4 Beds
- 4 Baths
- 3,047 sq. ft.
- Single family
- Active
Listed by: teresa acklin, debbie sinclair
Office: prime development land co llc.
MLS#:2584941
Source:MOKS_HL
Price summary
- Price:$799,950
- Price per sq. ft.:$262.54
- Monthly HOA dues:$195
About this home
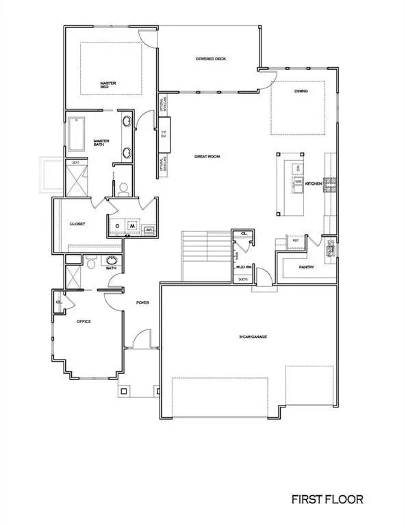
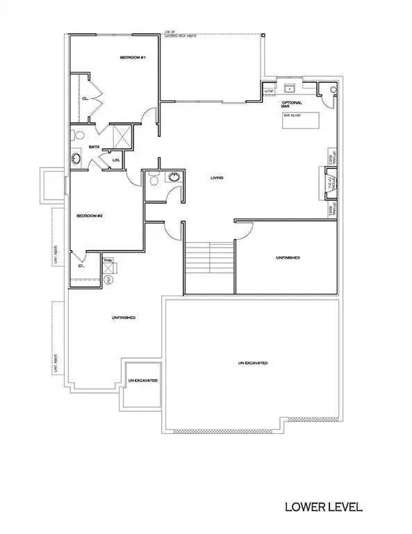
Hilmann’s new and exciting Barrington plan is loaded with upgrades! The front entry leads to a spacious family room with one of two fireplaces. The gourmet kitchen features a huge island, beautiful finishes, and a hidden coffee bar tucked inside the pantry area. The primary suite offers a spa-like bath with a free-standing tub, double vanities, and a master closet that conveniently connects to the laundry room. Second bedroom or office on the main level for flexibility. Enjoy privacy and tranquility from the covered deck backing to greenspace—no homes behind! The finished lower level includes a wet bar, second fireplace, two additional bedrooms (one with private bath), plus a half bath for guests. Located in a maintenance-provided community—no yard work or snow shoveling for a low fee of $195/month—giving you more time to enjoy what you love! Estimated completion date May 2026 please call agent to confirm completion date ** pictures are of similar home not actual ****
Contact an agent
Home facts
- Listing ID #:2584941
- Added:191 day(s) ago
- Updated:May 14, 2026 at 02:10 PM
Rooms and interior
- Bedrooms:4
- Total bathrooms:4
- Full bathrooms:3
- Half bathrooms:1
- Rooms Total:13
- Kitchen Description:Cooktop, Dishwasher, Disposal, Microwave
- Basement:Yes
- Basement Description:Egress Window(s), Finished, Full, Walk Out
- Living area:3,047 sq. ft.
Heating and cooling
- Cooling:Electric
- Heating:Forced Air Gas
Structure and exterior
- Roof:Composition
- Building area:3,047 sq. ft.
- Lot area:0.17 Acres
- Lot Features:Adjoin Greenspace, City Lot
- Architectural Style:Reverse 1.5 Story
- Construction Materials:Stone Trim, Stucco & Frame
Schools
- High school:Olathe Northwest
- Middle school:Prairie Trail
- Elementary school:Manchester Park
Utilities
- Water:City/Public
- Sewer:Public Sewer
Finances and disclosures
- Price:$799,950
- Price per sq. ft.:$262.54
Features and amenities
- Appliances:Back Flow Device, Dishwasher, Disposal, Gas Range, Microwave, Stainless Steel Appliance(s)
- Amenities:Back Flow Device, Ceiling Fan(s), Custom Cabinets, Painted Cabinets, Pantry, Trail(s), Walk-In Closet(s), Wet Bar
Parking
- Parking description:Attached
- Garage:Yes
- Garage spaces:3
New listings near 22117 W 94th Terrace
- Open Thu, 5 to 7pmNew
$515,000Active4 beds 5 baths2,887 sq. ft.13929 W 76th Circle, Lenexa, KS 66216
MLS# 2614043Listed by: REECENICHOLS - OVERLAND PARK - New
$470,000Active4 beds 3 baths3,006 sq. ft.9413 Hall Drive, Lenexa, KS 66219
MLS# 2615983Listed by: COMPASS REALTY GROUP - New
$400,000Active3 beds 3 baths1,983 sq. ft.7738 Garnett Street, Lenexa, KS 66214
MLS# 2616208Listed by: KELLER WILLIAMS REALTY PARTNERS INC. - New
$350,000Active4 beds 2 baths1,850 sq. ft.10434 Bradshaw Street, Lenexa, KS 66215
MLS# 2616691Listed by: KANSAS CITY REGIONAL HOMES INC - Open Fri, 4:30 to 6pmNew
$725,000Active4 beds 4 baths3,038 sq. ft.9926 Fountain Circle, Lenexa, KS 66220
MLS# 2617204Listed by: YOUR FUTURE ADDRESS, LLC - New
$375,000Active3 beds 3 baths2,011 sq. ft.14426 W 92nd Terrace, Lenexa, KS 66215
MLS# 2618151Listed by: REECENICHOLS - COUNTRY CLUB PLAZA - New
$535,000Active4 beds 3 baths2,279 sq. ft.9525 Shady Bend Road, Lenexa, KS 66227
MLS# 2618595Listed by: COMPASS REALTY GROUP - Open Sat, 12 to 2pmNew
$575,000Active4 beds 5 baths4,247 sq. ft.8001 Darnell Lane, Lenexa, KS 66215
MLS# 2618628Listed by: REECENICHOLS -JOHNSON COUNTY W - Open Thu, 4 to 6pmNew
$650,000Active5 beds 5 baths4,046 sq. ft.16901 W 84th Street, Lenexa, KS 66219
MLS# 2618796Listed by: REECENICHOLS- LEAWOOD TOWN CENTER - New
$1,319,000Active5 beds 7 baths5,586 sq. ft.8831 Vista Drive, Lenexa, KS 66220
MLS# 2619497Listed by: REECENICHOLS - LEAWOOD