- BHGRE®
- Louisiana
- New Orleans
- 1411 Andry Street
1411 Andry Street, New Orleans, LA 70117
Local realty services provided by:Better Homes and Gardens Real Estate Lindsey Realty
1411 Andry Street,New Orleans, LA 70117
$25,000
- 0.09 Acres
- Lots / Land
- Active
Listed by: sean-michael washington
Office: porch light realty
MLS#:2542323
Source:LA_GSREIN
Price summary
- Price:$25,000
About this home
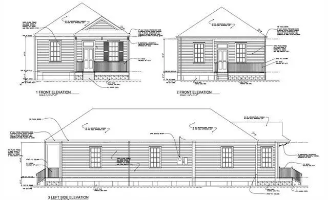
This is not just a vacant lot—it’s a head start. The property includes two custom sets of blueprints engineered specifically for the site, allowing you to choose the design that best fits your goals. A rare chance to build your home while positioning yourself as an investor at the same time, with flexibility and value already baked in.
Contact an agent
Home facts
- Listing ID #:2542323
- Added:1 day(s) ago
- Updated:February 10, 2026 at 10:49 PM
Structure and exterior
- Lot area:0.09 Acres
Utilities
- Water:Public
- Sewer:Public Sewer
Finances and disclosures
- Price:$25,000
New listings near 1411 Andry Street
- New
$49,999Active3 beds 1 baths1,020 sq. ft.7567 Avon Park Boulevard, New Orleans, LA 70128
MLS# 2537388Listed by: BAYOU BROKERAGE LLC - New
$875,000Active4 beds 3 baths2,700 sq. ft.1130 Fourth Street #1130, New Orleans, LA 70130
MLS# 2541657Listed by: WURTH REAL ESTATE SERVICES - New
$159,900Active4 beds 2 baths1,838 sq. ft.173 Cypress Grove Court, New Orleans, LA 70131
MLS# 2542256Listed by: HOMESMART REALTY SOUTH - New
$249,500Active3 beds 2 baths1,900 sq. ft.5011 Blue Ash Drive, New Orleans, LA 70128
MLS# 2542297Listed by: KELLER WILLIAMS REALTY 455-0100 - New
$545,000Active4 beds 5 baths3,430 sq. ft.4 Eagle Trace Drive, New Orleans, LA 70131
MLS# 2539349Listed by: KELLER WILLIAMS REALTY 455-0100 - New
$545,000Active4 beds 5 baths3,430 sq. ft.4 Eagle Trace Drive, New Orleans, LA 70131
MLS# NO2539349Listed by: KELLER WILLIAMS REALTY 455-0100 - New
$287,900Active1 beds 2 baths940 sq. ft.7932 Breakwater Drive #54, New Orleans, LA 70124
MLS# NO2542298Listed by: LARRY TRUNK INC. - New
$325,000Active4 beds 2 baths2,150 sq. ft.4741 Eastern Street, New Orleans, LA 70122
MLS# 2542227Listed by: KELLER WILLIAMS REALTY 455-0100 - Open Wed, 12 to 2pmNew
$189,900Active2 beds 2 baths923 sq. ft.2444 Aubry Street, New Orleans, LA 70119
MLS# 2540978Listed by: SHELNUTT REAL ESTATE ENTERPRISES - New
$379,425Active-- beds -- baths2,244 sq. ft.3010 & 3012 Baudin Street #2, New Orleans, LA 70119
MLS# BR2026002425Listed by: WANDA SIMMS PREFERRED PROPERTIES